Casa semi indipendente Via Savoia 151, Camaiore
€ 695.000
Immersa nel cuore verde di Capezzano Pianore, all'interno di un contesto residenziale esclusivo e riservato, sorge questa splendida dimora semindipendente che rappresenta la sintesi perfetta tra eleganza architettonica e benessere abitativo. Di recente costruzione e rifinita con materiali di pregio, la casa si distingue per un'esposizione solare d'eccellenza, studiata per favorire un ricircolo daria naturale che garantisce un microclima ideale e rigenerante in ogni stagione dell'anno.
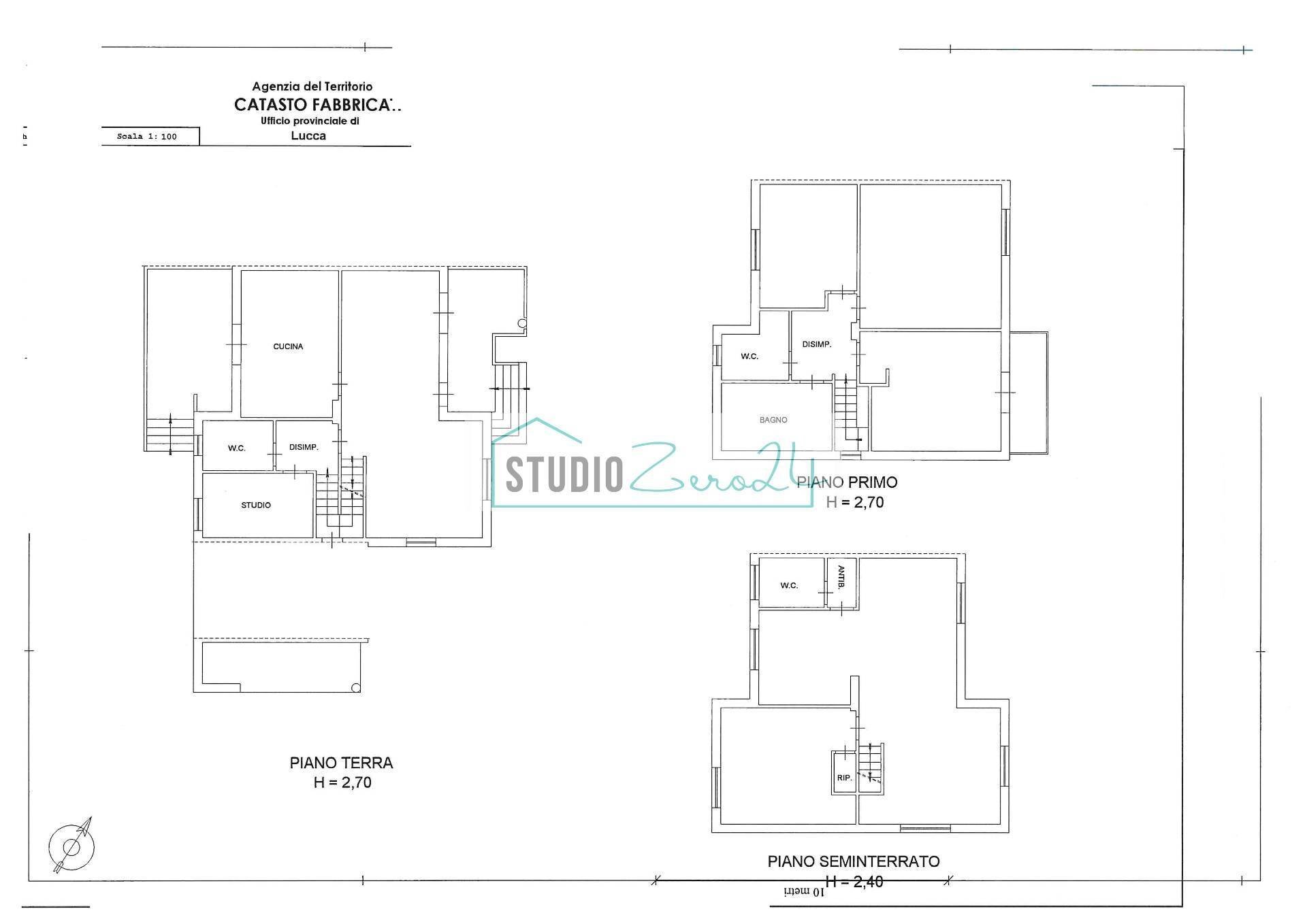
Labitazione si sviluppa con sapienza su tre livelli, accogliendo gli ospiti in una zona giorno monumentale composta da unampia sala e un soggiorno inondato di luce, che dialogano armoniosamente con una cucina abitabile affacciata su una splendida veranda, luogo delezione per cene estive e momenti di relax. La zona notte è un inno alla comodità, offrendo ben quattro camere da letto, tra cui due ampie matrimoniali, e 2 bagni curati in ogni dettaglio, uno con doccia e uno con vasca. Il vero valore aggiunto della proprietà si rivela nel piano inferiore: una taverna completamente abitabile e concepita come una seconda unità indipendente, dotata di sala, cucina, camera e bagno, ideale per accogliere ospiti, genitori o per creare unarea svago di assoluto prestigio.
Ogni centimetro di questa residenza è stato concepito per soddisfare le esigenze di nuclei familiari numerosi o di chi semplicemente non vuole rinunciare a spazi ampi e ariosi, circondati da un giardino privato che abbraccia la casa su tre lati. Completata da un comodo garage e posti auto interni, questa casa non è solo una costruzione deccellenza, ma un rifugio capace di offrire quel calore e quella funzionalità che solo una casa studiata nel minimo dettaglio può donare. Una soluzione pronta da vivere, dove la privacy e il comfort si fondono con la bellezza del paesaggio circostante.
La nostra missione è offrire unesperienza personalizzata e di qualità per ogni cliente, accompagnandolo in tutte le fasi della compravendita immobiliare.
Conosciamo profondamente il territorio e ci impegniamo a comprendere le esigenze uniche di chi si rivolge a noi, lavorando con trasparenza e passione per creare un rapporto di fiducia duraturo.
Puntiamo a migliorare costantemente i nostri servizi per essere un punto di riferimento locale affidabile e competente.
Labitazione si sviluppa con sapienza su tre livelli, accogliendo gli ospiti in una zona giorno monumentale composta da unampia sala e un soggiorno inondato di luce, che dialogano armoniosamente con una cucina abitabile affacciata su una splendida veranda, luogo delezione per cene estive e momenti di relax. La zona notte è un inno alla comodità, offrendo ben quattro camere da letto, tra cui due ampie matrimoniali, e 2 bagni curati in ogni dettaglio, uno con doccia e uno con vasca. Il vero valore aggiunto della proprietà si rivela nel piano inferiore: una taverna completamente abitabile e concepita come una seconda unità indipendente, dotata di sala, cucina, camera e bagno, ideale per accogliere ospiti, genitori o per creare unarea svago di assoluto prestigio.
Ogni centimetro di questa residenza è stato concepito per soddisfare le esigenze di nuclei familiari numerosi o di chi semplicemente non vuole rinunciare a spazi ampi e ariosi, circondati da un giardino privato che abbraccia la casa su tre lati. Completata da un comodo garage e posti auto interni, questa casa non è solo una costruzione deccellenza, ma un rifugio capace di offrire quel calore e quella funzionalità che solo una casa studiata nel minimo dettaglio può donare. Una soluzione pronta da vivere, dove la privacy e il comfort si fondono con la bellezza del paesaggio circostante.
La nostra missione è offrire unesperienza personalizzata e di qualità per ogni cliente, accompagnandolo in tutte le fasi della compravendita immobiliare.
Conosciamo profondamente il territorio e ci impegniamo a comprendere le esigenze uniche di chi si rivolge a noi, lavorando con trasparenza e passione per creare un rapporto di fiducia duraturo.
Puntiamo a migliorare costantemente i nostri servizi per essere un punto di riferimento locale affidabile e competente.
Dati principali
| Riferimento | 80562 |
| Data annuncio | 13/05/2025 |
| Contratto | Vendita |
| Tipologia | Casa semi indipendente |
| Superficie | 240 m2 |
| Locali | più di 5 (5 camere da letto, 2 altro), 4 bagni, cucina abitabile |
| Piano | Intero edificio, 3 totali |
| Tipo di costruzione | Signorile |
| Occupato | Libero |
| Box auto | Doppio |
| Numero posti auto | 3 |
| Arredamento | Parziale |
Caratteristiche
Costi
| Prezzo | 695.000 € |
| Prezzo al m2 | 2.896 €/m2 |
Efficienza energetica
| Stato | Ottimo |
| Riscaldamento | Autonomo |
| Classe energetica | G |
| Indice di prestazione energetica (IPE) | 182 kWh/m2 anno |
Planimetrie
Indirizzo e mappa
Via Savoia
151, Camaiore
Annuncio senza mappa,
prova a chiedere la posizione all'inserzionista
prova a chiedere la posizione all'inserzionista
Calcolo mutuo
Prezzo di vendita:
Anticipo
20,00
Mutuo
80,00
Tasso: -+
Rata: 1.988 al mese
I risultati sono una stima indicativa basata sui dati inseriti e non costituiscono un’offerta finanziaria.
Inserzionista

Studiozero24 Camaiore
Via del Fortino 43, Camaiore
Mostra Telefono
Mostra Cellulare
Chiama
CONTATTA

