Quadrilocale Via Enrico Fermi 1, Asolo
€ 310.000
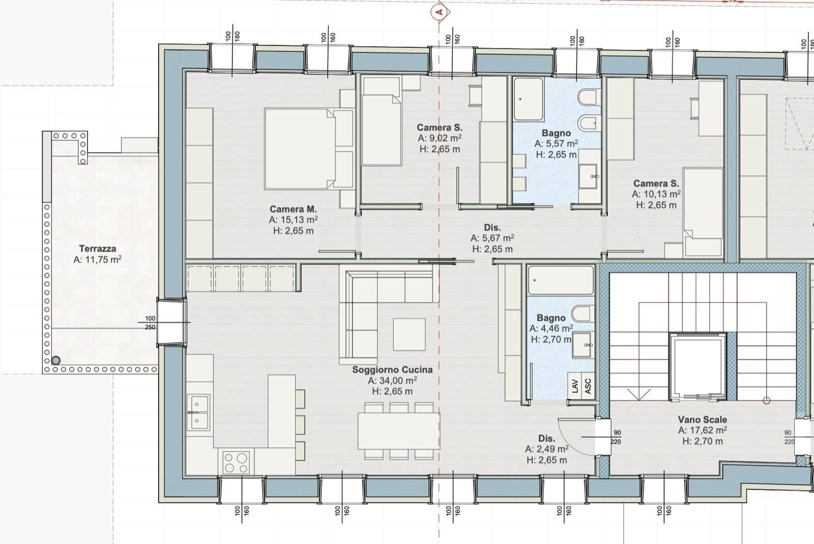
Rif.A017_3 (Per INFO DOMENICO 335.16.36.409) CASELLA D'ASOLO - NUOVO APPARTAMENTO PIANO PRIMO IN CLASSE "A4" ASOLO Loc.Casella (TV) PROSSIMA COSTRUZIONE in esclusivo residence in classe A4, frutto di attento studio di progettazione e un importante progetto immobiliare che ha come scopo principale quello di abbattere quanto più possibile i costi e gli sprechi legati ai consumi di un'abitazione tradizionale, riuscendo cosi ad avere dei bassi costi a livello di spese condominiali. L'appartamento sarà cosi composto: ingresso su ampia zona giorno e angolo cottura di 34mq, bagno con doccia, disimpegno, tre camere (di cui una matrimoniale e due singole) e bagno con doccia.Terrazza di 11,75mq di proprietà e posti auto esterni riservati. Il progetto sorge in una zona ricca di servizi, attività commerciali, scuole, mezzi di trasporto e aree verdi e in più è ben collegata alle principali arterie stradali. Per ulteriori informazioni potrete recarvi in Agenzia previo appuntamento, dove i consulenti saranno lieti di mostrarvi il progetto su carta e di accompagnarvi sempre previo appuntamento direttamente in cantiere. Per visionare l'immobile o per ricevere ulteriori informazioni contattateci senza impegno: GD IMMOBILIARE SRL- tel.0423 1922904. Puoi visionare altre proposte di immobili ad uso residenziale, agricolo, industriale-commerciale e turistico direttamente sul nostro sito. Agenti immobiliari professionali ed indipendenti Vi seguiranno in tutte le fasi dell'intermediazione immobiliare, dalla vendita, all'acquisto fino alle locazione di immobili. Professionisti in materia immobiliare Vi forniranno le proprie competenze per la la gestione e la consulenza immobiliare con analisi di investimento, valutazioni commerciali, finanziarie, assicurative e realizzazioni di progetti immobiliari. La nostra sede: Montebelluna(TV) Corte Maggiore,17.
Dati principali
| Riferimento | A017_3 |
| Data annuncio | 13/05/2025 |
| Contratto | Vendita |
| Tipologia | Appartamento |
| Superficie | 105 m2 |
| Locali | 4 (3 camere da letto, 1 altro), 2 bagni, cucina angolo cottura |
| Piano | 1 di 2 totali |
| Tipo di costruzione | Media |
| Occupato | Libero |
| Box auto | Assente |
| Arredamento | Assente |
Caratteristiche
Costi
| Prezzo | 310.000 € |
| Prezzo al m2 | 2.952 €/m2 |
Efficienza energetica
| Stato | Ottimo |
| Riscaldamento | Autonomo |
| Tipo Impianto Di Riscaldamento | a pavimento |
| Tipo Alimentazione Riscaldamento | Fotovoltaico |
| Classe energetica | A4 |
Planimetrie
Indirizzo e mappa
Via Enrico Fermi
1, Asolo
Annuncio senza mappa,
prova a chiedere la posizione all'inserzionista
prova a chiedere la posizione all'inserzionista
Calcolo mutuo
Prezzo di vendita:
Anticipo
20,00
Mutuo
80,00
Tasso: -+
Rata: 887 al mese
I risultati sono una stima indicativa basata sui dati inseriti e non costituiscono un’offerta finanziaria.
Inserzionista

GD Immobiliare srl
via Corte Maggiore 17, Montebelluna
Mostra Telefono
Mostra Cellulare
Chiama
CONTATTA

