Ufficio Via Ricasoli 5, Livorno
€ 800 al mese
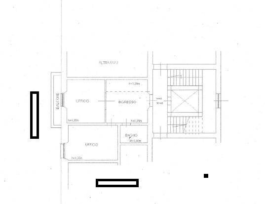
Affittasi ufficio con finiture di pregio - Zona Centrale DISPONIBILE DA GENNAIO 2024 Rif. 2023Li118 - L'immobile di circa 60 mq posto al primo piano con ascensore, composto da tre locali, più bagno con doccia. Parquet, aria condizionata. Spese condominiali comprensive di riscaldamento e acqua. L'immobilesi trova in una zona centrale della città. Per maggori informazioni contattare l'agenzia di Livorno.
Dati principali
| Riferimento | 2023Li118 |
| Data annuncio | 13/05/2025 |
| Contratto | Affitto |
| Tipologia | Ufficio |
| Superficie | 68 m2 |
| Locali | 3 (3 altro), 1 bagno, cucina non presente |
| Piano | 1 di 3 totali |
| Occupato | Libero |
| Box auto | Assente |
| Arredamento | Completo |
Caratteristiche
Costi
| Prezzo | 800 € al mese |
Efficienza energetica
| Stato | Ottimo |
| Riscaldamento | Autonomo |
| Tipo Impianto Di Riscaldamento | ad aria |
| Tipo Alimentazione Riscaldamento | Elettrico |
| Classe energetica | G |
| Indice di prestazione energetica (IPE) | 177 kWh/m2 anno |
Video
Indirizzo e mappa
Via Ricasoli
5, Livorno
Annuncio senza mappa,
prova a chiedere la posizione all'inserzionista
prova a chiedere la posizione all'inserzionista
Inserzionista

Megaron Immobiliare Livorno
Via Montebello 2, Livorno
Mostra Telefono
Mostra Cellulare
Chiama
CONTATTA

