Attività Commerciale via provinciale vicarese, Vicopisano
€ 1.500 al mese
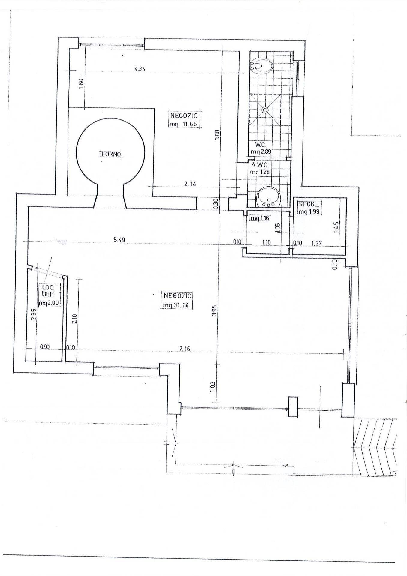
fondo commerciale con forno a legna affittasi. Rif.2023003 fondo commerciale adibito a pizzeria dotato di forno a legna bagno disabile con antibagno e bagno per il personale è dotato di api spazzi esterni sia per tavoli che per parcheggio mezzi, per ulteriori informazioni contattare l'agenzia riportando il codice di riferimento
Dati principali
| Riferimento | 2023003 |
| Data annuncio | 13/05/2025 |
| Contratto | Affitto |
| Tipologia | Attività Commerciale |
| Superficie | 70 m2 |
| Locali | 2 (2 altro), 2 bagni |
| Piano | 1 |
| Occupato | Libero |
| Numero posti auto | 10 |
| Arredamento | Assente |
Costi
| Prezzo | 1.500 € al mese |
Efficienza energetica
| Stato | Buono |
| Riscaldamento | Assente |
| Tipo Alimentazione Riscaldamento | Altro |
| Classe energetica | G |
| Indice di prestazione energetica (IPE) | - |
Planimetrie
Video
Indirizzo e mappa
via provinciale vicarese, Vicopisano
Annuncio senza mappa,
prova a chiedere la posizione all'inserzionista
prova a chiedere la posizione all'inserzionista
Inserzionista

Megaron Immobiliare Pisa
Via Carlo Cattaneo 59, Pisa
Mostra Telefono
Mostra Cellulare
Chiama
CONTATTA

