

Appartamento via Pio Potenza, Appignano del Tronto
€ 149.000
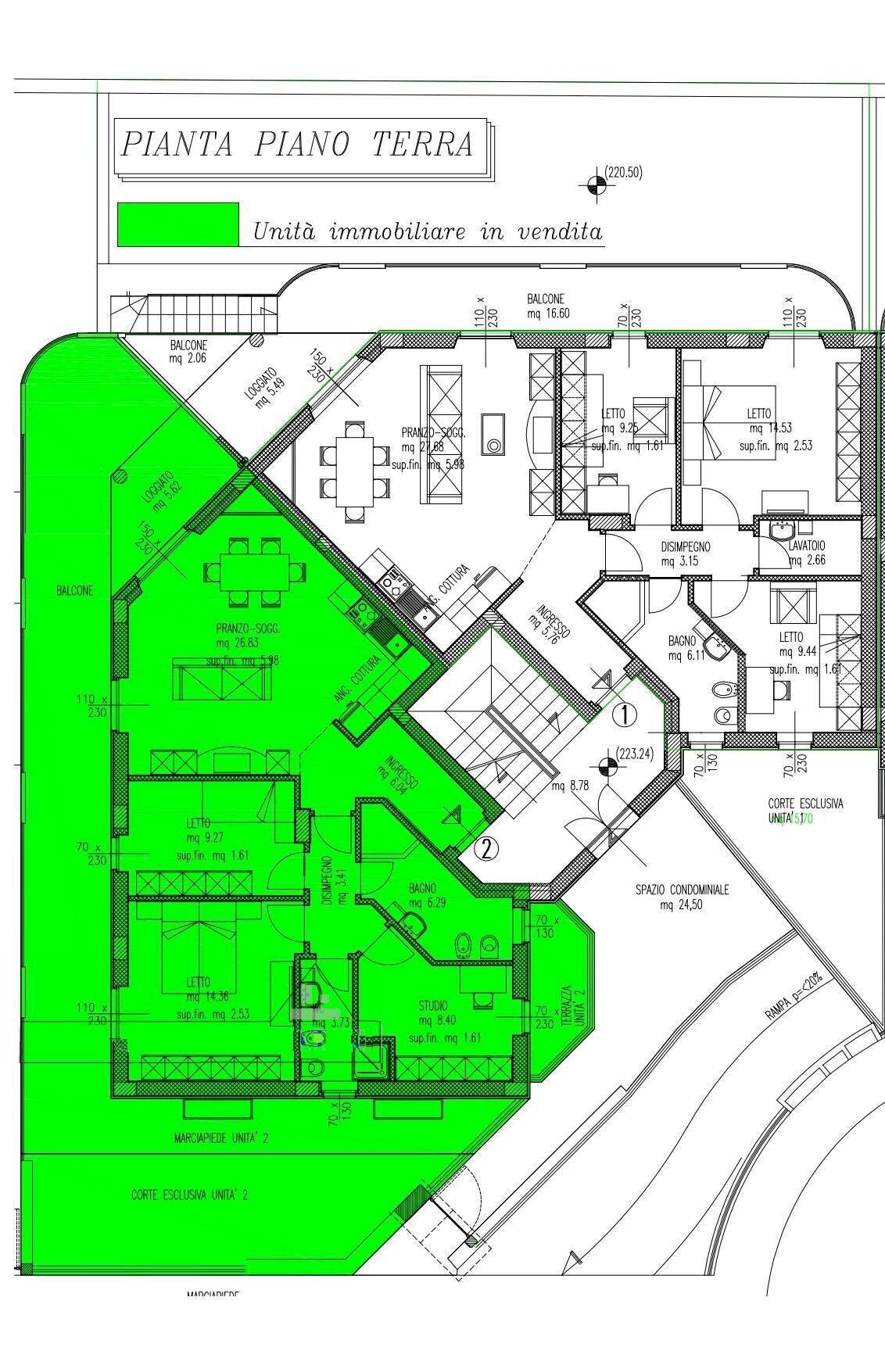
Appartamento in vendita Piano Terra con giardino ad Appignano del Tronto Rif. 1905 Limmobile delle dimensioni di 105 mq circa sito al piano terra all interno di una palazzina di recente costruzione composta da sole due unità abitative, con esposizione est-ovest-nord, risulta così suddiviso: ingresso su soggiorno con angolo cottura, disimpegno con tre camere di cui una matrimoniale, una singola e uno studio, due bagni entrambi finestrati con box-doccia. Lunità ha una corte perimetrale in parte pavimentata ed in parte adibita a giardino. L' appartamento attualmente allo stato grezzo ha la possibilità di essere personalizzato sia negli spazi che nelle scelte dei materiali che da capitolato vengono forniti con gres porcellanato zona giorno e parquet zona notte. Predisposizione canna fumaria zona giorno per eventuale camino. Disponibilità di garage di varie metrature sito al piano seminterrato. Classe energetica in corso di valutazione. Questo appartamento in vendita a Appignano, rappresenta un ottimo investimento oltre che la residenza ideale per una giovane coppia in cerca di tranquillità e vicinanza a tutti i servizi. Per ulteriori informazioni e per eventuali visite potete contattare il numero 0735.060012, siamo disponibili presso i nostri uffici siti a San Benedetto del Tronto in via L. Bianchi, 18.
Dati principali
| Riferimento | 1905 |
| Data annuncio | 13/05/2025 |
| Contratto | Vendita |
| Tipologia | Appartamento |
| Superficie | 125 m2 |
| Locali | 4 (3 camere da letto, 1 altro), 2 bagni, cucina angolo cottura |
| Piano | Terra, 2 totali |
| Tipo di costruzione | Signorile |
| Occupato | Libero |
| Arredamento | Assente |
Costi
| Prezzo | 149.000 € |
| Prezzo al m2 | 1.192 €/m2 |
Efficienza energetica
| Stato | Ottimo |
| Riscaldamento | Autonomo |
| Classe energetica | Immobile esente da certificazione energetica |
Indirizzo e mappa
via Pio Potenza, Appignano del Tronto
Annuncio senza mappa,
prova a chiedere la posizione all'inserzionista
prova a chiedere la posizione all'inserzionista
Calcolo mutuo
Prezzo di vendita:
Anticipo
20,00
Mutuo
80,00
Tasso: -+
Rata: 426 al mese
I risultati sono una stima indicativa basata sui dati inseriti e non costituiscono un’offerta finanziaria.
Inserzionista

Agile Immobiliare
via bianchi 18, San Benedetto del Tronto
Mostra Telefono
Chiama
CONTATTA