Ufficio Via Alessandro Manzoni 4, Vimercate
€ 72.000
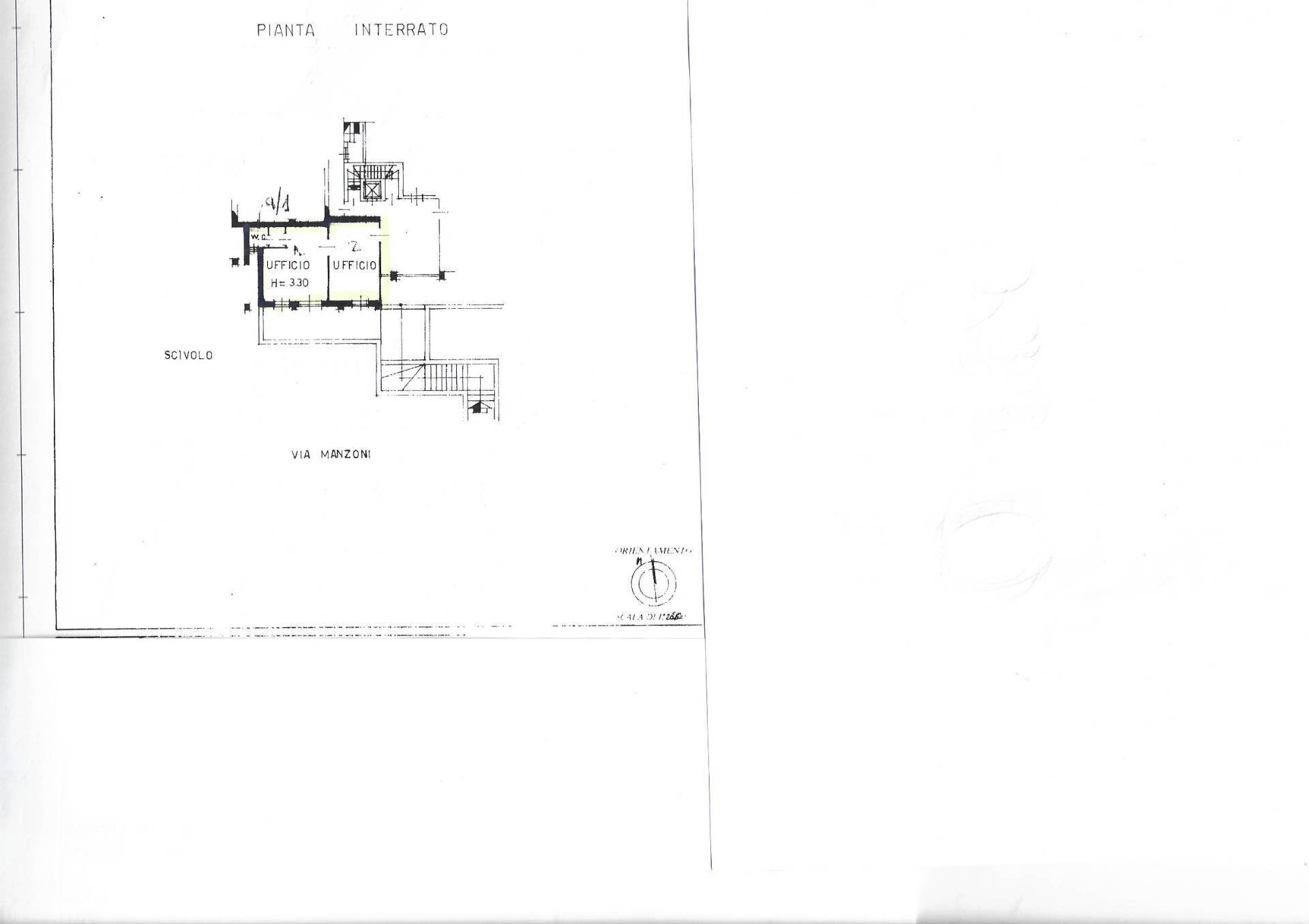
Vimercate, posizione centrale, nelle vicinanze delle scuole Manzoni Filiberto, al piano seminterrato ufficio composto da due locali oltre servizio; l'immobile si presenta in buono stato di manutenzione, è molto luminoso in quanto esposto a sud e, pur essendo ubicato al piano seminterrato, le finestre sono completamente fuori terra. Le spese condominiali indicate sono a regime, comprensive anche del costo del riscaldamento a consumo, mentre l'acqua calda è autonoma con boiler elettrico. E' presente impianto antifurto da revisionare. Ampie zone parcheggio nelle vicinanze. Disponibile da subito.
Dati principali
| Riferimento | 2431 |
| Data annuncio | 13/05/2025 |
| Contratto | Vendita |
| Tipologia | Ufficio |
| Superficie | 55 m2 |
| Locali | 2 (2 altro), 1 bagno |
| Piano | Scantinato, 4 totali |
| Occupato | Libero |
| Box auto | Assente |
| Arredamento | Assente |
Caratteristiche
Costi
| Prezzo | 72.000 € |
| Prezzo al m2 | 1.309 €/m2 |
Efficienza energetica
| Stato | Buono |
| Riscaldamento | Centralizzato |
| Classe energetica | E |
| Indice di prestazione energetica (IPE) | 444 kWh/m2 anno |
Planimetrie
Video
Indirizzo e mappa
Via Alessandro Manzoni
4, Vimercate
Annuncio senza mappa,
prova a chiedere la posizione all'inserzionista
prova a chiedere la posizione all'inserzionista
Calcolo mutuo
Prezzo di vendita:
Anticipo
20,00
Mutuo
80,00
Tasso: -+
Rata: 206 al mese
I risultati sono una stima indicativa basata sui dati inseriti e non costituiscono un’offerta finanziaria.
Inserzionista

Puntocasa Vimercate
Via Mazzini n. 15, Vimercate
Mostra Telefono
Chiama
CONTATTA

