

Ufficio Via Roccaromana, Catania
Trattativa riservata
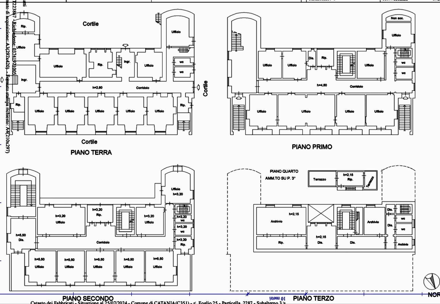
Prestigioso palazzo in locazione nel Centro di Catania - Possibilità di cambio di destinazione d'uso da ufficio ad attività ricettiva/ alberghiera. Lubicazione dello stabile é in posizione strategica essendo nel centro storico della città, a pochi passi da via Etnea e dal Duomo, salotto della città, e da Corso Sicilia (zona finanziaria ed economica), vicino al giardino pubblico Bellini e alle sedi universitarie, come la facoltà di Giurisprudenza. Inoltre, la posizione geografica rende la proprietà facilmente raggiungibile da fuori città, essendo in prossimità della via Plebiscito, arteria che congiunge il centro storico-finanziario con lingresso sud di Catania. Lo stabile edificato agli inizi del 900 consiste in una villa nobiliare indipendente con corte circostante; vi si accede dalla strada attraversando due cancelli carrabili elettrici in ferro battuto ornamentale con pilastri in pietra; attorno alla villa è presente una corte esclusiva e di proprietà. Limmobile consta di un piano terra adibito ad uffici con ingresso dal retro, un primo piano e un secondo piano anchessi adibiti ad uffici e un terzo piano con destinazione archivio e ripostigli. Limmobile si presenta con un prospetto in ottime condizioni in cui si evidenziano fregi e cornici in pietra bianca, gli infissi sono in alluminio a taglio termico, di recente installazione. Le condizioni interne versano in buono stato, con pavimentazione in scagliette di marmo. In tutti i piani sono presenti servizi igienici, riscaldamento, condizionamento e illuminazione a led a norma. Inoltre, nel retro sono presenti alcuni posti auto a servizio della villa. Dimensioni: Piano terra (parzialmente interrato) : mq 637,00 Piano primo, secondo e terzo :mq 1.502,00 Terrazze e balconi :mq 150,00 Portici :mq 50,00 Pertinenze scoperte: mq 900,00.
Dati principali
| Riferimento | CBI100-551-290440 |
| Data annuncio | 13/05/2025 |
| Contratto | Affitto |
| Tipologia | Ufficio |
| Superficie | 2180 m2 |
| Locali | più di 5 (28 altro), 6 bagni |
| Piano | Intero edificio, 3 totali |
| Occupato | Libero |
| Numero posti auto | 6 |
| Arredamento | Assente |
Caratteristiche
Costi
| Prezzo | Trattativa riservata |
Efficienza energetica
| Stato | Ottimo |
| Riscaldamento | Autonomo |
| Classe energetica | Immobile esente da certificazione energetica |
Virtual tour
Indirizzo e mappa
Via Roccaromana, Catania
Annuncio senza mappa,
prova a chiedere la posizione all'inserzionista
prova a chiedere la posizione all'inserzionista
Inserzionista
Chiama
CONTATTA
