Negozio Via Spronello, Ferrara
€ 125.000
Locale commerciale ad uso ristorante trattoria in vendita a Ferrara, centro storico.
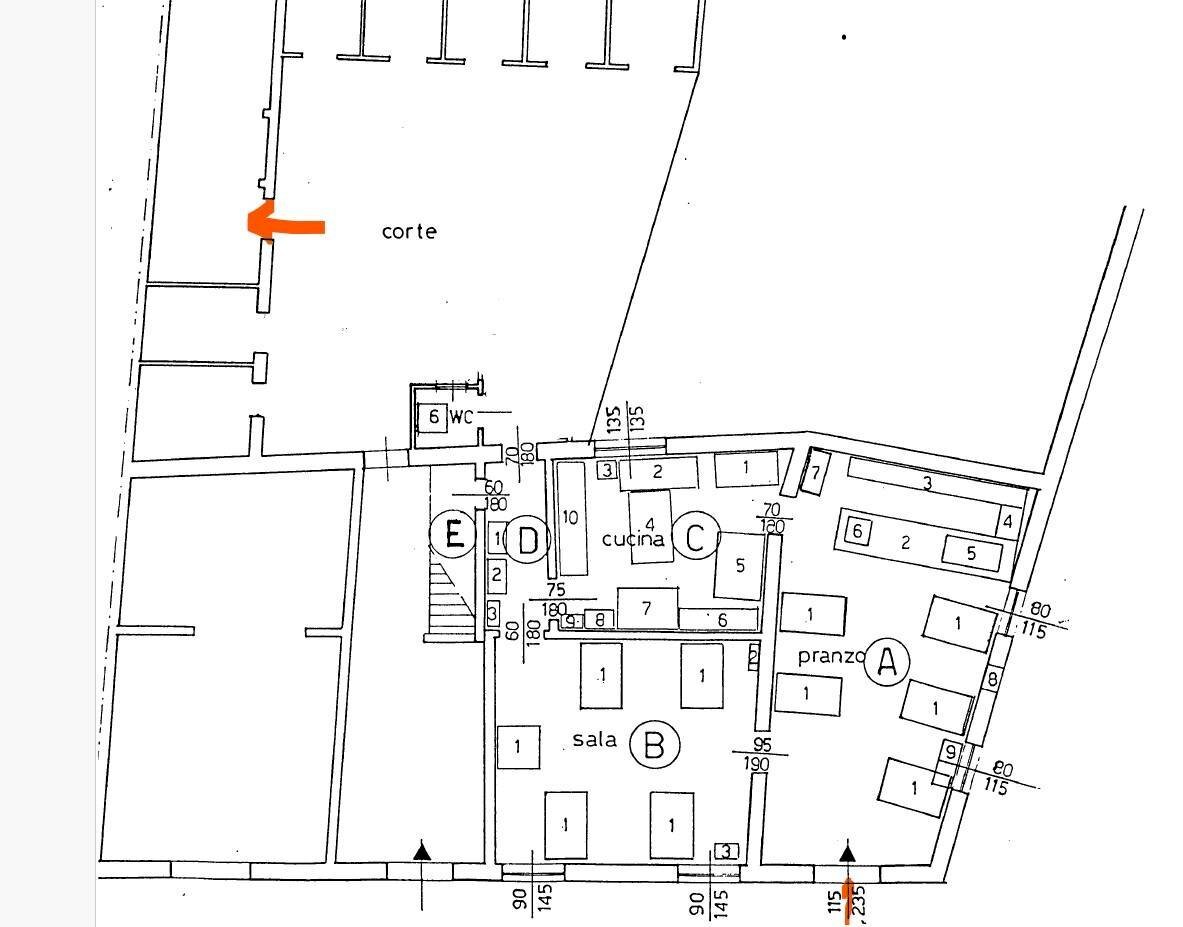
In posizione strategica vicino a tutti i parcheggi e al centro della città vendiamo adiacente alle mura della città , i muri di rinomata trattoria con oltre 40 anni di storia. Attualmente limmobile si compone di entrata sul primo vano arredato di tavoli e un bancone bar. Una seconda sala con tavoli per ospiti. Cucina separata e finestrata completa di cappa di aspirazione. Bagno in corte sul retro e magazzino ad uso ripostiglio.
Lattività ha operato fino a pochi mesi fa ed è attualmente sospesa. La vicinanza al parcheggio di San Lorenzo, alla zona mercato del lunedì e ai locali commerciali di via Carlo Mayr e Piazza Verdi, lo rendono appetibile per qualsiasi altro sviluppo di ristorazione, osteria, bar, o negozio di vendita.
Potete contattarci senza impegno per ricevere maggiori informazioni o prenotare un appuntamento per Visionare questo Locale commerciale ad uso ristorante trattoria in vendita a Ferrara, centro storico.
Cod. 3752. Vendita Muri . 125.000.
In posizione strategica vicino a tutti i parcheggi e al centro della città vendiamo adiacente alle mura della città , i muri di rinomata trattoria con oltre 40 anni di storia. Attualmente limmobile si compone di entrata sul primo vano arredato di tavoli e un bancone bar. Una seconda sala con tavoli per ospiti. Cucina separata e finestrata completa di cappa di aspirazione. Bagno in corte sul retro e magazzino ad uso ripostiglio.
Lattività ha operato fino a pochi mesi fa ed è attualmente sospesa. La vicinanza al parcheggio di San Lorenzo, alla zona mercato del lunedì e ai locali commerciali di via Carlo Mayr e Piazza Verdi, lo rendono appetibile per qualsiasi altro sviluppo di ristorazione, osteria, bar, o negozio di vendita.
Potete contattarci senza impegno per ricevere maggiori informazioni o prenotare un appuntamento per Visionare questo Locale commerciale ad uso ristorante trattoria in vendita a Ferrara, centro storico.
Cod. 3752. Vendita Muri . 125.000.
Dati principali
| Riferimento | 3752 |
| Data annuncio | 13/05/2025 |
| Contratto | Vendita |
| Tipologia | Negozio |
| Superficie | 70 m2 |
| Locali | 3 (3 altro), 1 bagno, cucina abitabile |
| Piano | Terra |
| Occupato | Libero |
| Box auto | Assente |
Caratteristiche
Costi
| Prezzo | 125.000 € |
| Prezzo al m2 | 1.786 €/m2 |
Efficienza energetica
| Riscaldamento | Autonomo |
| Tipo Alimentazione Riscaldamento | Elettrico |
| Classe energetica | G |
| Indice di prestazione energetica (IPE) | - |
Planimetrie
Indirizzo e mappa
Via Spronello, Ferrara
Annuncio senza mappa,
prova a chiedere la posizione all'inserzionista
prova a chiedere la posizione all'inserzionista
Calcolo mutuo
Prezzo di vendita:
Anticipo
20,00
Mutuo
80,00
Tasso: -+
Rata: 357 al mese
I risultati sono una stima indicativa basata sui dati inseriti e non costituiscono un’offerta finanziaria.
Inserzionista

PROGETTO CASA FERRARA
VIA SARACENO 44, Ferrara
Mostra Telefono
Chiama
CONTATTA

