Villa VIA ALBERTO GIANQUINTO, Jesolo
€ 740.000
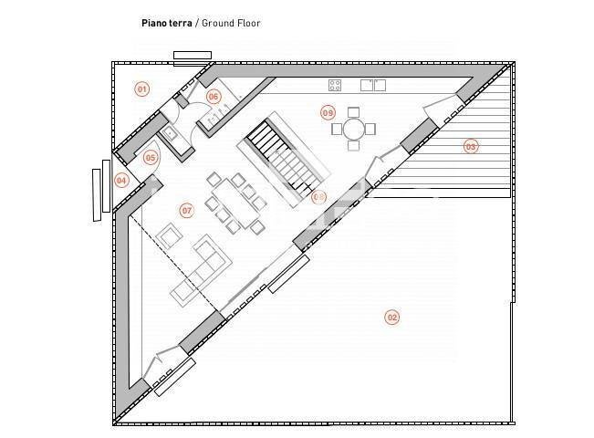
Villa Singola 3 camere con possibilità di piscina in vendita a Jesolo La prima casa che pensa alla tua salute e all'ambiente. Prende vita il primo progetto a Jesolo di 9 ville indipendenti, che costituiranno un borgo completamente passivo a due passi dal mare. Studiate in ogni minimo particolare, queste ville sono il primo esempio d'iniziativa immobiliare interamente eco sostenibile ottenendo di fatto due importanti certificazioni da CasaClima la Gold* e la Nature. L'impianto di ventilazione meccanica controllata, dotato di sanificatore medicale che utilizza la tecnica della ionizzazione a plasma freddo, garantisce non solo una casa priva di polvere, ma soprattutto un'ambiente sano distruggendo fino al 99,9% di virus e batteri nell'aria. Residenza ideale da vivere 365 giorni all'anno o come casa vacanze considerato i quasi inesistenti costi energetici e di manutenzione. Le ville sono infatti progettate per acquisire valore nel tempo, con un importante abbattimento dei costi di manutenzione, oltre alla quasi totale impossibilità di deterioramento delle sue finiture interne ed esterne. Altamente modulabili sono la soluzione ideale anche per due famiglie pur mantenendo un alto livello di privacy. - un immobile che acquisisce valore nel tempo - costi di manutenzione e costi energetici ridotti al minimo - un'ambiente domestico salutare con riciclo e sanificazione dell'aria continua - una casa che tutela non solo la tua salute, ma anche l'ambiente IL CONTESTO Le nove ville indipendenti sono disposte strategicamente all'interno di un borgo con unampia zona pedonale condivisa, lo spazio ideale dove poter lasciar giocare i bambini in totale sicurezza, all'interno di un giardino comune di 2.300 metri quadri. La disposizione, studiata per garantire il diritto di sole a ciascuna abitazione, vedrà il borgo affacciarsi su di un parco pubblico che, attraverso un percorso ciclo pedonale, lo collegherà direttamente al mare. Per la massima comodità dei residenti, oltre ai posti auto esclusivi di ciascuna abitazione, all'interno dell'area troviamo un buon numero di parcheggi di cortesia destinati ad accogliere i propri ospiti. LA VILLA GOLD Ampia, confortevole, sicura, realizzata per garantire il massimo comfort abitativo è la soluzione ideale anche per famiglie numerose che vogliono mantenere la propria privacy, grazie alle ampie possibilità di suddivisione degli spazi interni. All'esterno si può godere di un giardino privato ed esclusivo, personalizzabile su richiesta con piscina a sfioro o vasca idromassaggio e dotato di solarium. La chiostrina, uno spazio studiato per garantire il massimo decoro della parte esterna all'abitazione, consentirà di stendere il bucato in totale riservatezza così come di custodire biciclette, robot da giardino. Particolare attenzione alla salute, come richiesto dai protocolli Casa Clima Klima Haus, la salubrità degli ambienti interni è infatti assicurata prevedendo il ricambio automatico dellaria, impedendo la formazione di umidità e abbattendo del 99% la presenza di polveri, allergeni e fumi, provenienti dall'esterno. Completano due posti auto coperti per ogni unità, che saranno dotati di stazione per ricaricare i veicoli elettrici. LA POSIZIONE A due passi dal mare e dal Lido di Jesolo, una delle località balneari più servite del litorale Veneto, comodamente raggiungibile anche da Jesolo Centro, sorge questo piccolo borgo di nove ville immerse nel verde e nella tranquillità. Situato in un contesto paesaggistico ricco di storia dal punto di vista architettonico, ci troviamo infatti, a solo mezz'ora dalla splendida cornice di Venezia, dal centro storico di Treviso e dai due più vicini aeroporti. *Certificazione Casa Clima Klima Haus in classe energetica Gold protocollo numero 2016/1850 Potete contattare per informazioni e visione dellimmobile, lagenzia impREsa di Venezia al numero +39 041...
Dati principali
| Riferimento | I/LDBA150 |
| Data annuncio | 13/05/2025 |
| Contratto | Vendita |
| Tipologia | Villa |
| Superficie | 311 m2 |
| Locali | più di 5 (3 camere da letto, 3 altro), 2 bagni, cucina abitabile |
| Tipo di costruzione | Signorile |
| Occupato | Libero |
| Numero posti auto | 2 |
Caratteristiche
Costi
| Prezzo | 740.000 € |
| Prezzo al m2 | 2.379 €/m2 |
Efficienza energetica
| Stato | Ottimo |
| Riscaldamento | Autonomo |
| Tipo Impianto Di Riscaldamento | ad aria |
| Tipo Alimentazione Riscaldamento | Elettrico |
| Classe energetica | A4 |
Planimetrie
Virtual tour
Indirizzo e mappa
VIA ALBERTO GIANQUINTO, Jesolo
Annuncio senza mappa,
prova a chiedere la posizione all'inserzionista
prova a chiedere la posizione all'inserzionista
Calcolo mutuo
Prezzo di vendita:
Anticipo
20,00
Mutuo
80,00
Tasso: -+
Rata: 2.116 al mese
I risultati sono una stima indicativa basata sui dati inseriti e non costituiscono un’offerta finanziaria.
Inserzionista

impREsa Venezia
Calle della Madonna, 3610/B, Venezia
Mostra Telefono
Sereniski Michelle
Mostra Telefono
Chiama
CONTATTA

