Appartamento via cavour 59, Brindisi
€ 160.000
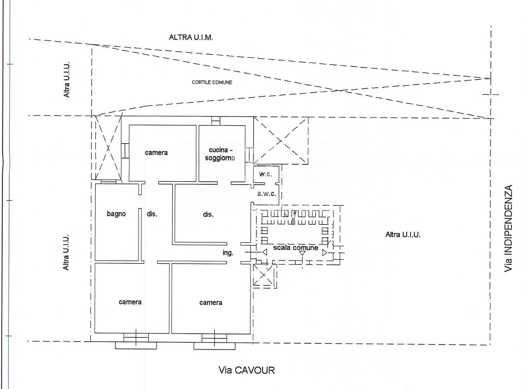
Nel centro città in stabile padronale di sole 4 unità abitative, proponiamo in vendita ampio appartamento al 2 piano con ascensore di 195 mq composto da 4 grandi ambienti, disimpegni e servizi. Attualmente locato ad uso professionale con contratto scadente a settembre 2026 e che produce un reddito annuale di euro 7.400,00 circa. La proprietà si presenta con soffitti alti e stanze dimensioni generose e ben distribuite, di forma regolare ed è esposto su 4 lati ma principalmente sulla via d'accesso allo stabile dove insistono due balconi. Lo stato generale è molto buono, con piccoli dettagli dell'epoca conservati, ma non sono state eseguite recenti opere interne per cui si presta ad un radicale ringiovanimento. I prospetti sono stati recentemente rifatti. Ideale per famiglie numerose o studi professionale. Per dimensioni e conformazione si presta ad essere frazionato in due appartamenti più piccoli o per farne casa e studio . Un'occasione di investimento per chi ha necessità di avere uno spazio in centro nel medio termine con una piccola rendita assicurata. Un'esclusiva Coldwell Banker . Contatti i nostri uffici per maggiori informazioni o per richiedere una visita dell'immobile.
Dati principali
| Riferimento | CBI092-1469-44406 |
| Data annuncio | 13/05/2025 |
| Contratto | Vendita |
| Tipologia | Appartamento |
| Superficie | 195 m2 |
| Locali | più di 5 (3 camere da letto, 3 altro), 1 bagno, cucina abitabile |
| Piano | 2 di 2 totali |
| Tipo di costruzione | Signorile |
| Occupato | Occupato da Proprietario |
| Box auto | Assente |
| Arredamento | Assente |
Caratteristiche
Costi
| Prezzo | 160.000 € |
| Prezzo al m2 | 821 €/m2 |
Efficienza energetica
| Stato | Buono |
| Riscaldamento | Autonomo |
| Classe energetica | G |
| Indice di prestazione energetica (IPE) | 130 kWh/m2 anno |
Planimetrie
Indirizzo e mappa
via cavour
59, Brindisi
Annuncio senza mappa,
prova a chiedere la posizione all'inserzionista
prova a chiedere la posizione all'inserzionista
Calcolo mutuo
Prezzo di vendita:
Anticipo
20,00
Mutuo
80,00
Tasso: -+
Rata: 458 al mese
I risultati sono una stima indicativa basata sui dati inseriti e non costituiscono un’offerta finanziaria.
Chiama
CONTATTA


