Villa 56, Colli del Tronto
€ 590.000
Villa di Prestigio con Parco Privato e Piscina a Colli del Tronto (AP)Eleganza, privacy e comfort nel cuore della Vallata del Tronto
In una posizione strategica e riservata, con accesso diretto dalla Strada Statale Salaria, proponiamo in vendita una magnifica villa signorile immersa in un parco esclusivo di circa 10.000 mq, arricchito da alberi secolari, zone relax e una splendida piscina.
Questa proprietà, unica nel suo genere, è la soluzione ideale per chi desidera vivere nella tranquillità della natura senza rinunciare alla vicinanza ai principali servizi e collegamenti.
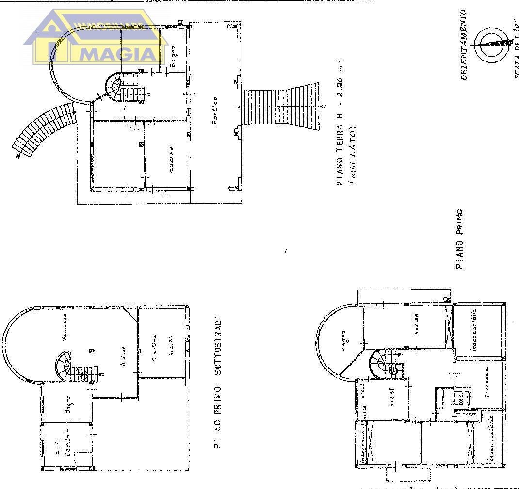
La villa si sviluppa su tre livelli, con ambienti ampi e luminosi, finiture eleganti e spazi pensati per il benessere:
Piano rialzato: l'ingresso si apre su un suggestivo portico panoramico che guarda sul giardino e sulla piscina. Linterno è composto da un doppio salone con camino, cucina abitabile, studio e bagno di servizio.
Primo piano: la zona notte accoglie quattro camere da letto, tra cui una master suite con cabina armadio e sala da bagno privata. Completano il piano un secondo bagno e un ampio terrazzo panoramico.
Piano seminterrato: taverna con cucina in muratura e camino, ideale per cene conviviali, zona fitness, lavanderia, bagno e garage doppio.
In più, un casale da ristrutturare, ideale come dependance, struttura ricettiva o atelier creativo. Questa villa rappresenta unopportunità rara nel panorama immobiliare locale: una residenza esclusiva, perfetta per famiglie, professionisti o investitori che cercano una dimora di prestigio nel cuore delle Marche.
Contattaci oggi stesso per ricevere maggiori informazioni o prenotare una visita privata.
Agenzia Magia Immobiliare Castel di Lama & San Benedetto del Tronto
Immobile gestito in collaborazione con UniCredit Subito Casa
In una posizione strategica e riservata, con accesso diretto dalla Strada Statale Salaria, proponiamo in vendita una magnifica villa signorile immersa in un parco esclusivo di circa 10.000 mq, arricchito da alberi secolari, zone relax e una splendida piscina.
Questa proprietà, unica nel suo genere, è la soluzione ideale per chi desidera vivere nella tranquillità della natura senza rinunciare alla vicinanza ai principali servizi e collegamenti.
La villa si sviluppa su tre livelli, con ambienti ampi e luminosi, finiture eleganti e spazi pensati per il benessere:
Piano rialzato: l'ingresso si apre su un suggestivo portico panoramico che guarda sul giardino e sulla piscina. Linterno è composto da un doppio salone con camino, cucina abitabile, studio e bagno di servizio.
Primo piano: la zona notte accoglie quattro camere da letto, tra cui una master suite con cabina armadio e sala da bagno privata. Completano il piano un secondo bagno e un ampio terrazzo panoramico.
Piano seminterrato: taverna con cucina in muratura e camino, ideale per cene conviviali, zona fitness, lavanderia, bagno e garage doppio.
In più, un casale da ristrutturare, ideale come dependance, struttura ricettiva o atelier creativo. Questa villa rappresenta unopportunità rara nel panorama immobiliare locale: una residenza esclusiva, perfetta per famiglie, professionisti o investitori che cercano una dimora di prestigio nel cuore delle Marche.
Contattaci oggi stesso per ricevere maggiori informazioni o prenotare una visita privata.
Agenzia Magia Immobiliare Castel di Lama & San Benedetto del Tronto
Immobile gestito in collaborazione con UniCredit Subito Casa
Dati principali
| Riferimento | 3261 |
| Data annuncio | 13/05/2025 |
| Contratto | Vendita |
| Tipologia | Villa |
| Superficie | 403 m2 |
| Locali | più di 5 (4 camere da letto, 8 altro), 4 bagni, cucina abitabile |
| Piano | Su più livelli, 3 totali |
| Tipo di costruzione | Signorile |
| Occupato | Libero |
| Box auto | Doppio |
| Arredamento | Assente |
Caratteristiche
Costi
| Prezzo | 590.000 € |
| Prezzo al m2 | 1.464 €/m2 |
Efficienza energetica
| Stato | Buono |
| Riscaldamento | Autonomo |
| Classe energetica | F |
| Indice di prestazione energetica (IPE) | 180 kWh/m2 anno |
Planimetrie
Virtual tour
Video
Indirizzo e mappa
56, Colli del Tronto
Annuncio senza mappa,
prova a chiedere la posizione all'inserzionista
prova a chiedere la posizione all'inserzionista
Calcolo mutuo
Prezzo di vendita:
Anticipo
20,00
Mutuo
80,00
Tasso: -+
Rata: 1.687 al mese
I risultati sono una stima indicativa basata sui dati inseriti e non costituiscono un’offerta finanziaria.
Inserzionista

MAGIA immobiliare
Via Salaria, 90, Castel di Lama
Mostra Telefono
Chiama
CONTATTA

