Quadrilocale Spinetoli
€ 195.000
Appartamenti di Nuova Costruzione con Isolamento Acustico Eccezionale a Pagliare del Tronto! Se stai cercando il massimo in termini di qualità costruttiva, comfort e posizione privilegiata, non cercare oltre! Abbiamo il piacere di presentarti questi straordinari appartamenti di nuova costruzione a Pagliare del Tronto, progettati con cura per soddisfare tutte le tue esigenze. Appartamento di 91 mq circa, composto da: ingresso su soggiorno con cucina a vista, zona notte con disimpegno, camera e cameretta, due bagni e un terrazzo/balcone. Caratteristiche Principali: Alta Qualità Costruttiva: Questa palazzina è stata costruita con materiali di prima qualità e una meticolosa attenzione ai dettagli. Ogni appartamento è stato progettato per offrire la massima durabilità e comfort, con pavimenti e rivestimenti dei bagni con travertino di Acquasanta Terme Isolamento Acustico con Sughero: La tranquillità della tua casa è garantita grazie all'isolamento acustico di livello superiore con pannelli di sughero. Potrai goderti la pace e la quiete senza disturbi esterni. Posizione Centrale: La posizione centrale di queste residenze ti mette a pochi passi da tutte le comodità che Pagliare del Tronto ha da offrire. Negozi, ristoranti, scuole e molto altro sono facilmente accessibili. Ampi Parcheggi Privati: Dimentica le preoccupazioni riguardo al parcheggio! Questa proprietà offre ampi parcheggi privati per te e i tuoi ospiti, garantendo sempre un posto auto disponibile. Luminosi e Ariosi: Gli appartamenti sono luminosi e spaziosi, con ampie finestre che permettono all'abbondante luce naturale di entrare in ogni angolo della casa. Goditi ambienti accoglienti e ben illuminati. Garage Disponibili: Se hai bisogno di spazio aggiuntivo per il tuo veicolo o per lo stoccaggio, c'è la possibilità di acquistare garage di varie metrature direttamente nella struttura. Questi appartamenti di nuova costruzione rappresentano un'opportunità unica per chi cerca il massimo in termini di qualità, comfort e praticità. Scegli la tua soluzione ideale tra diverse tipologie di appartamenti disponibili. Non perdere questa occasione di migliorare la tua qualità di vita a Pagliare del Tronto. Contattaci oggi stesso per prenotare una visita o per ulteriori informazioni!
Dati principali
| Riferimento | 2943 |
| Data annuncio | 13/05/2025 |
| Contratto | Vendita |
| Tipologia | Appartamento |
| Superficie | 106 m2 |
| Locali | 4 (3 camere da letto, 1 altro), 2 bagni, cucina a vista |
| Piano | 1 di 2 totali |
| Tipo di costruzione | Signorile |
| Occupato | Libero |
| Box auto | Assente |
| Numero posti auto | 1 |
| Arredamento | Assente |
Caratteristiche
Costi
| Prezzo | 195.000 € |
| Prezzo al m2 | 1.840 €/m2 |
Efficienza energetica
| Stato | Ottimo |
| Riscaldamento | Autonomo |
| Tipo Alimentazione Riscaldamento | Elettrico |
| Classe energetica | C |
| Indice di prestazione energetica (IPE) | 76 kWh/m2 anno |
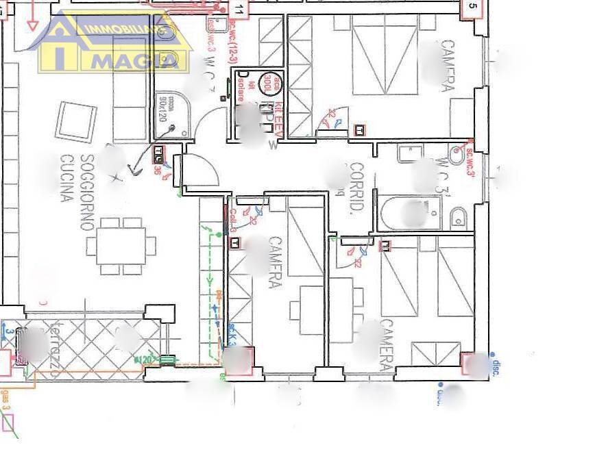
Planimetrie
Virtual tour
Video
Indirizzo e mappa
Spinetoli
Annuncio senza mappa,
prova a chiedere la posizione all'inserzionista
prova a chiedere la posizione all'inserzionista
Calcolo mutuo
Prezzo di vendita:
Anticipo
20,00
Mutuo
80,00
Tasso: -+
Rata: 558 al mese
I risultati sono una stima indicativa basata sui dati inseriti e non costituiscono un’offerta finanziaria.
Inserzionista

MAGIA immobiliare
Via Salaria, 90, Castel di Lama
Mostra Telefono
Chiama
CONTATTA

