Villa Via di Fibbialla, Pescia
€ 760.000
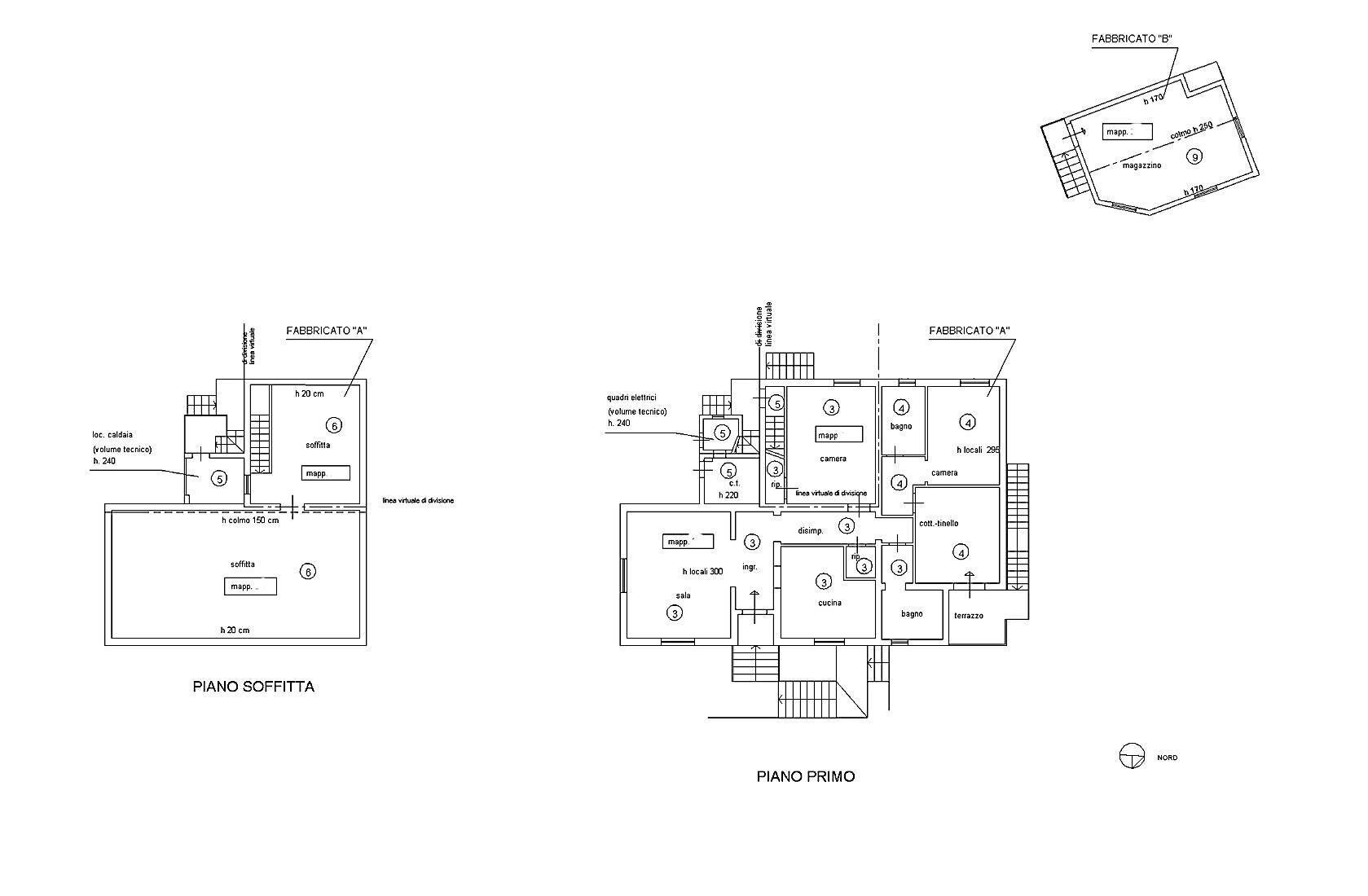
PER MOTIVI DI PRIVACY, L'INDIRIZZO E IL PUNTATORE NELLA MAPPA SONO PURAMENTE INDICATIVI E NON CORRISPONDONO ESATTAMENTE ALL'UBICAZIONE DELLA PROPRIETÀ, A RICHIESTA DAREMO TUTTE LE INFORMAZIONI NECESSARIE. VILLA RISTRUTTURATA IN POSIZIONE PANORAMICA CON PISCINA VILLA IN COLLINA, PANORAMICA, RISTRUTTURATA, CON PISCINA Bellissima villa immersa nel verde della prima svizzera pesciatina, a circa quindici minuti di auto da tutti i servizi, oggetto di recente ed accurata completa ristrutturazione, attualmente suddivisa in due unità abitative completamente indipendenti, una al piano terra e una al piano primo, corredata da grande giardino della superficie di circa mq. 3.200 sul quale insiste una stupenda piscina panoramica incassata nel terreno, con ampia area attrezzata. Al piano terra troviamo l'unità abitativa con accesso indipendente doppio, composta da ingresso, soggiorno con angolo cottura, disimpegno, tre camere, bagno finestrato con doccia, altro bagno finestrato con doccia, servizio igienico con w.c. e lavabo, con predisposizione per doccia. Al piano primo troviamo l'altra unità abitativa, con accesso indipendente da scala esterna e terrazzo, e con altro accesso da piccola loggia, composta da ingresso, ampio e luminoso soggiorno, cucina abitabile, ripostiglio, disimpegno notte, tre grandi camere, due bagni entrambi finestrati con doccia. Il tutto corredato da fabbricato distaccato ad uso annesso agricolo, dislocato su un unico piano fuori terra, attualmente costituito da due ampi vani e un bagno finestrato con doccia, fabbricato distaccato ad uso magazzino, costituito da un ampio vano al piano terra ed un ampio vano al piano primo, entrambi i piani con ingresso indipendente, oltre soffitta e volumi tecnici. L'intera proprietà gode di splendidi affacci sulle colline e sulla vallata, è completamente esposta al sole, è facilmente raggiungibile con qualsiasi mezzo ed il terreno è completamente recintato. La proprietà è attualmente utilizzata come struttura ricettiva, ma è ideale anche come suggestiva villa privata. Elementi in legno rustico, mattoncini e pietra faccia-vista, infissi in legno con doppi vetri, riscaldamento autonomo con radiatori in ghisa, caldaia alimentata a GPL. Il fabbricato principale è attualmente diviso in due unità, ma è già predisposto per realizzarne quattro, due al piano terra e due al piano primo, avendo già la predisposizione per la divisione degli impianti e gli attacchi e scarichi per le cucine. Nel caso in cui si volesse realizzare una villa singola, potrebbero essere collegati i due piani con scala interna da realizzare, volendo ove già presente in passato. Il prezzo include terreni distaccati ad uso uliveto, bosco, castagneto da frutto, per una superficie di circa mq. 120.000. Il tetto è in travetti e pignatte, con sovrastante soletta di calcestruzzo di cemento, con guaina impermeabilizzante e soprastante manto di copertura in cotto toscano, la facciata è stata completamente imbiancata al nuovo da pochi mesi. Il terreno circostante è inserito in zona "F4", con potenzialità di ampliamento residenziali, commerciali e ricettive.
Dati principali
| Riferimento | 1449 |
| Data annuncio | 13/05/2025 |
| Contratto | Vendita |
| Tipologia | Villa |
| Superficie | 250 m2 |
| Locali | più di 5 (6 camere da letto, 4 altro), 4 bagni, cucina abitabile |
| Piano | Su più livelli, 3 totali |
| Tipo di costruzione | Signorile |
| Occupato | Libero |
| Numero posti auto | 10 |
| Arredamento | Parziale |
Caratteristiche
Costi
| Prezzo | 760.000 € |
| Prezzo al m2 | 3.040 €/m2 |
Efficienza energetica
| Stato | Parzialmente ristrutturato |
| Riscaldamento | Autonomo |
| Tipo Alimentazione Riscaldamento | Gpl |
| Classe energetica | G |
| Indice di prestazione energetica (IPE) | - |
Planimetrie
Video
Indirizzo e mappa
Via di Fibbialla, Pescia
Annuncio senza mappa,
prova a chiedere la posizione all'inserzionista
prova a chiedere la posizione all'inserzionista
Calcolo mutuo
Prezzo di vendita:
Anticipo
20,00
Mutuo
80,00
Tasso: -+
Rata: 2.174 al mese
I risultati sono una stima indicativa basata sui dati inseriti e non costituiscono un’offerta finanziaria.
Inserzionista
Chiama
CONTATTA


