Appartamento piaggia della porta 5, Montalcino
€ 92.000
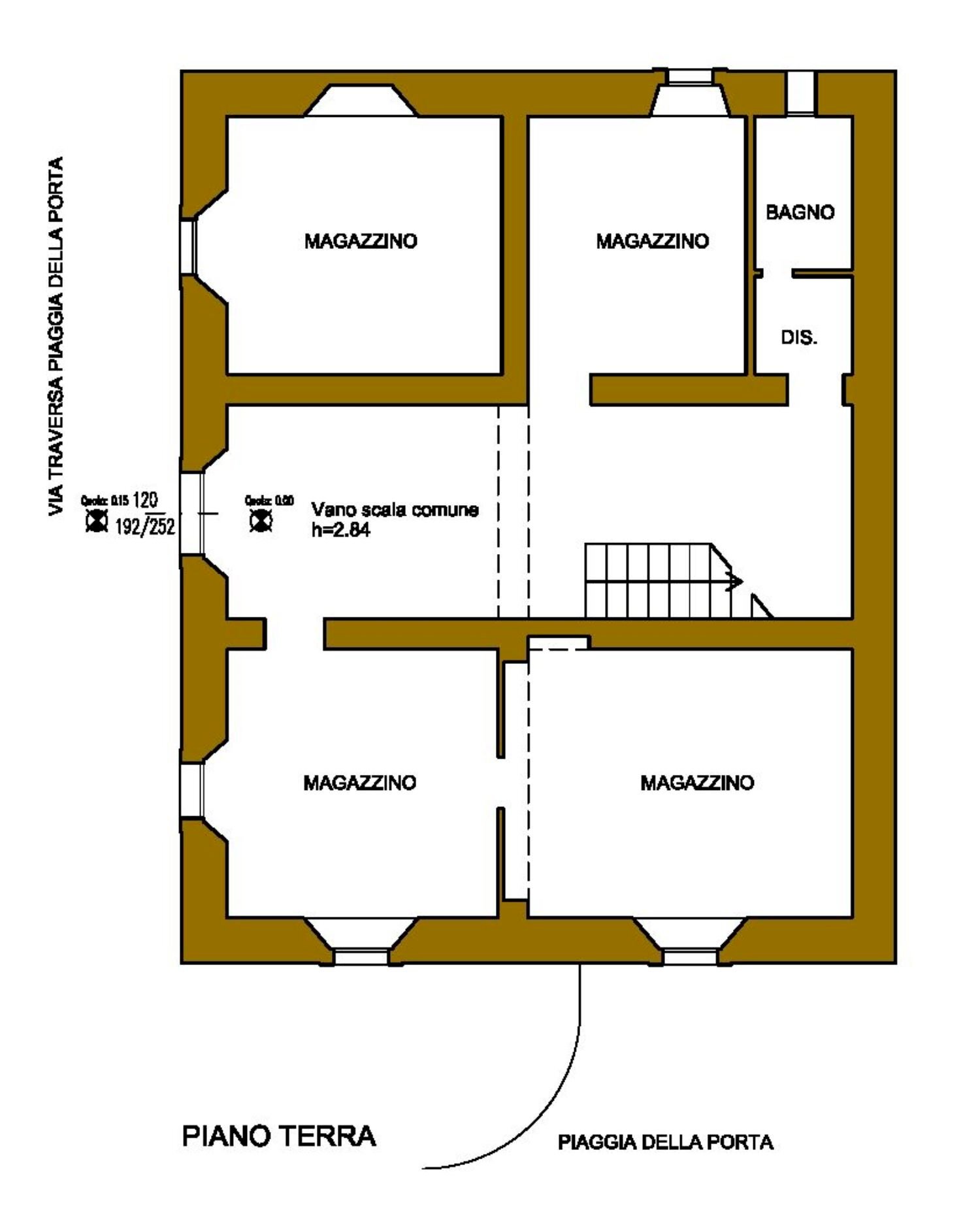
Montalcino. Inserito nel centro di un meraviglioso borgo medioevale con vista sull'abbazia di Sant'Antimo e sul Castello di Velona, proponiamo in vendita appartamento inserito al primo piano di piccola e caratteristica palazzina. Al piano terra troviamo diversi vani adibiti a cantina per un totale di circa 90mq, mentre al primo piano si sviluppa l'appartamento, costituito da ingresso su sala da pranzo, soggiorno, cucinotto e bagno. Certificazione energetica in fase di richiesta.
Dati principali
| Riferimento | Montalcino 117-5 |
| Data annuncio | 13/05/2025 |
| Contratto | Vendita |
| Tipologia | Appartamento |
| Superficie | 114 m2 |
| Locali | 4 (4 altro), 1 bagno |
| Piano | 1 |
| Occupato | Occupato da Proprietario |
Caratteristiche
Costi
| Prezzo | 92.000 € |
| Prezzo al m2 | 807 €/m2 |
Efficienza energetica
| Stato | Da ristrutturare |
| Tipo Alimentazione Riscaldamento | Altro |
| Classe energetica | Immobile esente da certificazione energetica |
Planimetrie
Indirizzo e mappa
piaggia della porta
5, Montalcino
Annuncio senza mappa,
prova a chiedere la posizione all'inserzionista
prova a chiedere la posizione all'inserzionista
Calcolo mutuo
Prezzo di vendita:
Anticipo
20,00
Mutuo
80,00
Tasso: -+
Rata: 263 al mese
I risultati sono una stima indicativa basata sui dati inseriti e non costituiscono un’offerta finanziaria.
Inserzionista

Studio 99
Via Pomposa 127 B, Ferrara
Mostra Cellulare
Chiama
CONTATTA

