Trilocale via vaccarolo, Desenzano del Garda
€ 310.000
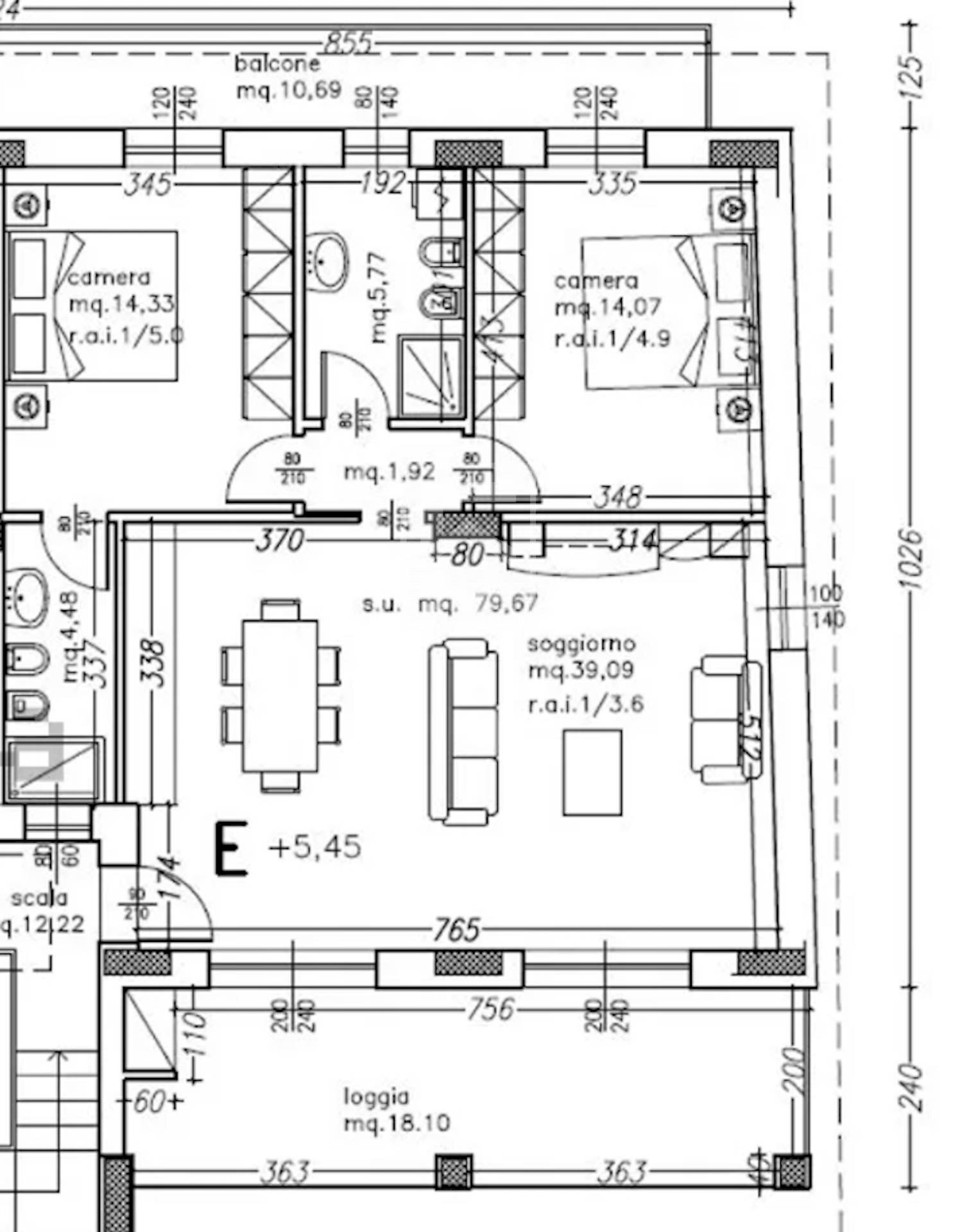
rif. EB-0350-442 Ultimo Appartamento trilocale classe A+ in piccolo Resort con piscina. Situato nell'entroterra di Desenzano del Garda una delle localita' piu' prestigiose del lago, proponiamo in vendita un appartamento di nuova costruzione, tempi di consegna primavera 2026. L'immobile si trova al primo e ultimo piano e misura 90 metri quadrati calpestabili. E' composto da zona living con cucina a vista di ben 40 mq che si affaccia sulla loggia coperta di 18 mq con vista aperta sulle colline; camera matrimoniale con bagno privato, seconda camera matrimoniale con bagno padronale. Le due camere da letto affacciano su una balconata di 11 mq. Possibilità di aggiungere un soppalco di circa 28 mq oltre bagno di 4,50 mq per 27.000 in piu'. Completa l'offerta ampio garage di 20 mq. Gli spazi comuni del residence comprendono una piscina e un giardino curato, ideali per rilassarsi nei momenti di relax. La tipologia costruttiva in classe energetica A+, con riscaldamento elettrico a pompa di calore a pavimento e aria condizionata, garantisce un elevato standard di qualità e finiture moderne, perfettamente integrate in un contesto paesaggistico di grande fascino. Le spese condominiali ammontano a soli 80 euro mensili, il che rende questo appartamento un'opzione estremamente conveniente per chi desidera godere di ogni confort senza rinunciare alla comodità di una gestione condominiale. Possibilita' di personalizzazione delle finiture grazie ad un capitolato diversificato. Non perdere l'opportunità di possedere un appartamento di alta classe in una delle zone più ambite del lago di Garda, perfetto per ospitare una famiglia o per chi desidera investire in una proprietà di alto livello in una delle zone più ambite del lago di Garda. Contattaci per maggiori informazioni e per fissare un appuntamento per una visita.
Dati principali
| Riferimento | 33091035-442 |
| Data annuncio | 13/05/2025 |
| Contratto | Vendita |
| Tipologia | Appartamento |
| Superficie | 106 m2 |
| Locali | 3 (2 camere da letto, 1 altro), 2 bagni, cucina a vista |
| Piano | 1 di 2 totali |
| Tipo di costruzione | Signorile |
| Occupato | Libero |
| Box auto | Singolo |
| Arredamento | Assente |
Caratteristiche
Costi
| Prezzo | 310.000 € |
| Prezzo al m2 | 2.925 €/m2 |
Efficienza energetica
| Riscaldamento | Autonomo |
| Tipo Impianto Di Riscaldamento | a pavimento |
| Tipo Alimentazione Riscaldamento | Fotovoltaico |
| Classe energetica | A3 |
Planimetrie
Virtual tour
Video
Indirizzo e mappa
via vaccarolo, Desenzano del Garda
Annuncio senza mappa,
prova a chiedere la posizione all'inserzionista
prova a chiedere la posizione all'inserzionista
Calcolo mutuo
Prezzo di vendita:
Anticipo
20,00
Mutuo
80,00
Tasso: -+
Rata: 887 al mese
I risultati sono una stima indicativa basata sui dati inseriti e non costituiscono un’offerta finanziaria.
Inserzionista

Edilfin srl
via Giorgio Strehler 19, Manerba del Garda
Mostra Telefono
Bulla Elisabetta
Mostra Telefono
Chiama
CONTATTA

