Casa semi indipendente via della madonnina, Torrita di Siena
€ 196.000
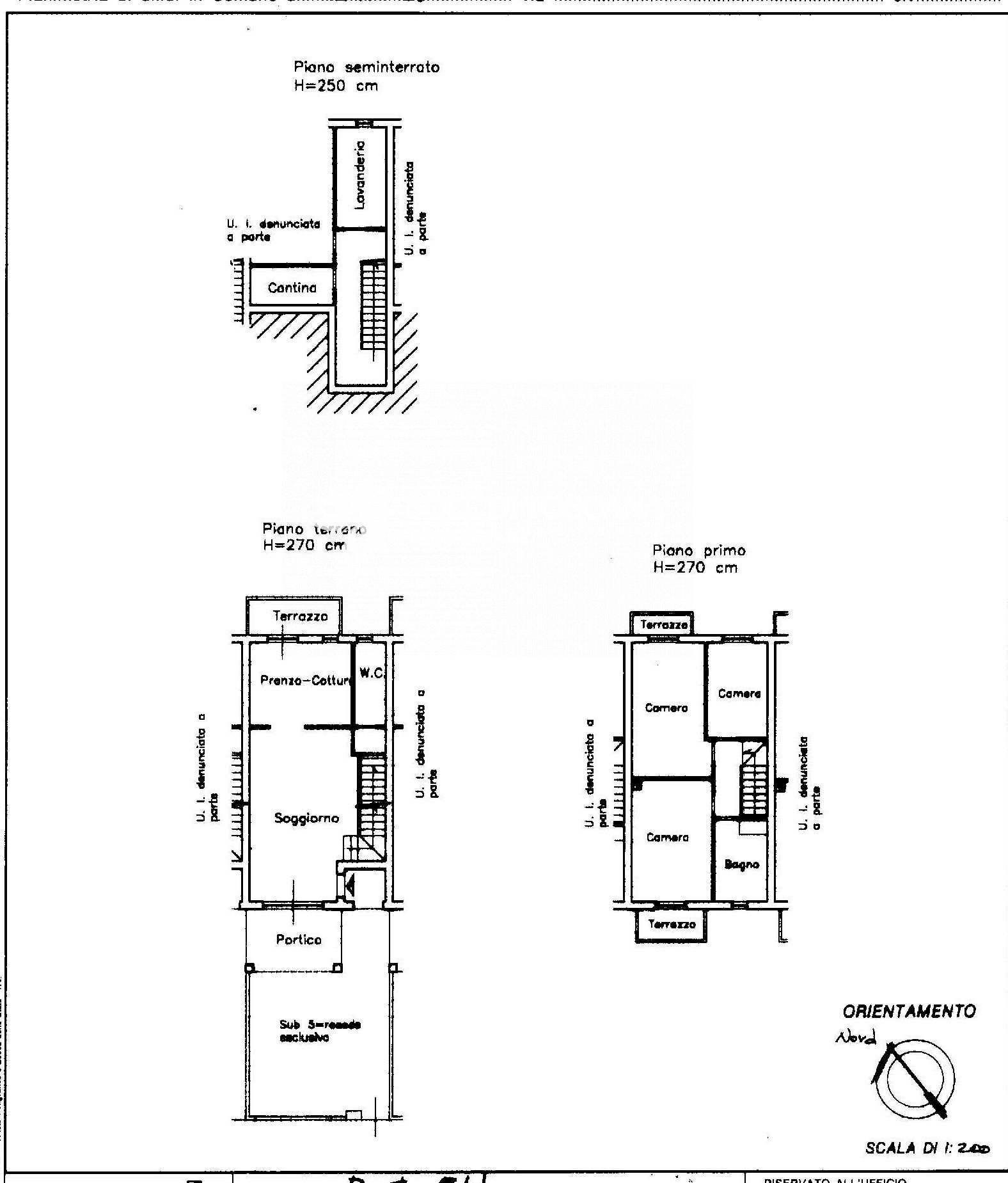
Villetta a Schiera in Vendita a Montefollonico: Perfetta per una Giovane Famiglia Montefollonico, un pittoresco borgo toscano immerso tra le colline della Val dOrcia e della Val di Chiana, rappresenta la cornice ideale per chi desidera crescere i propri figli in un ambiente sano, tranquillo e a misura di famiglia. Lontano dal caos cittadino, Montefollonico offre una qualità della vita straordinaria, con servizi essenziali come lasilo, attività locali e una comunità accogliente e calorosa. La Proprietà Questa villetta a schiera, costruita tra il 2000 e il 2001, si presenta in ottime condizioni ed è pronta per accogliere una giovane famiglia che cerca spazi confortevoli e funzionali. Caratteristiche Principali: Giardino e Porticato: La casa è dotata di un giardino sul fronte, perfetto per i momenti allaria aperta, e di un porticato ideale per cene estive o per rilassarsi nelle fresche serate toscane. Ampio Salone e Cucina Abitabile: Il piano terra accoglie un luminoso salone che si apre su una cucina abitabile con balcone, offrendo spazi ideali per la vita quotidiana. Zona Notte: Al piano superiore, la zona notte comprende tre camere da letto, due delle quali con balcone, e un bagno con vasca e finestra. Piano Seminterrato: Una zona tecnica con lavanderia finestrata e un comodo garage completano la proprietà, garantendo praticità e funzionalità. Finiture e Servizi Le rifiniture della casa sono di ottima qualità e si presentano in ottimo stato, pronte per essere personalizzate in base alle esigenze della tua famiglia. Le utenze (luce, acquedotto e riscaldamento) sono tutte presenti e facilmente riattivabili. Perché Montefollonico? Montefollonico è il luogo perfetto per chi sogna una vita serena, circondato da bellezze naturali e da un ambiente autenticamente toscano. Qui potrai crescere i tuoi figli in un contesto sicuro, immerso nella natura e ricco di tradizioni. Il paese offre la giusta combinazione tra tranquillità e comodità, con i principali servizi a portata di mano. Non lasciarti sfuggire questa opportunità unica! Contattaci oggi stesso per prenotare una visita e scoprire come questa villetta può diventare la casa dei tuoi sogni.
Dati principali
| Riferimento | A785 |
| Data annuncio | 13/05/2025 |
| Contratto | Vendita |
| Tipologia | Casa semi indipendente |
| Superficie | 155 m2 |
| Locali | più di 5 (3 camere da letto, 4 altro), 2 bagni, cucina abitabile |
| Piano | Su più livelli |
| Tipo di costruzione | Media |
| Occupato | Libero |
| Box auto | Singolo |
Caratteristiche
Costi
| Prezzo | 196.000 € |
| Prezzo al m2 | 1.265 €/m2 |
Efficienza energetica
| Stato | Ottimo |
| Riscaldamento | Autonomo |
| Classe energetica | G |
| Indice di prestazione energetica (IPE) | 209 kWh/m2 anno |
Planimetrie
Virtual tour
Video
Indirizzo e mappa
via della madonnina, Torrita di Siena
Annuncio senza mappa,
prova a chiedere la posizione all'inserzionista
prova a chiedere la posizione all'inserzionista
Calcolo mutuo
Prezzo di vendita:
Anticipo
20,00
Mutuo
80,00
Tasso: -+
Rata: 561 al mese
I risultati sono una stima indicativa basata sui dati inseriti e non costituiscono un’offerta finanziaria.
Inserzionista

SOLE DI TOSCANA
VIA A.LANDUCCI, Torrita di Siena
Mostra Telefono
Mostra Cellulare
SOLE DI TOSCANA
Mostra Telefono
Chiama
CONTATTA

