Villa via F.Bandini, Torrita di Siena
€ 550.000
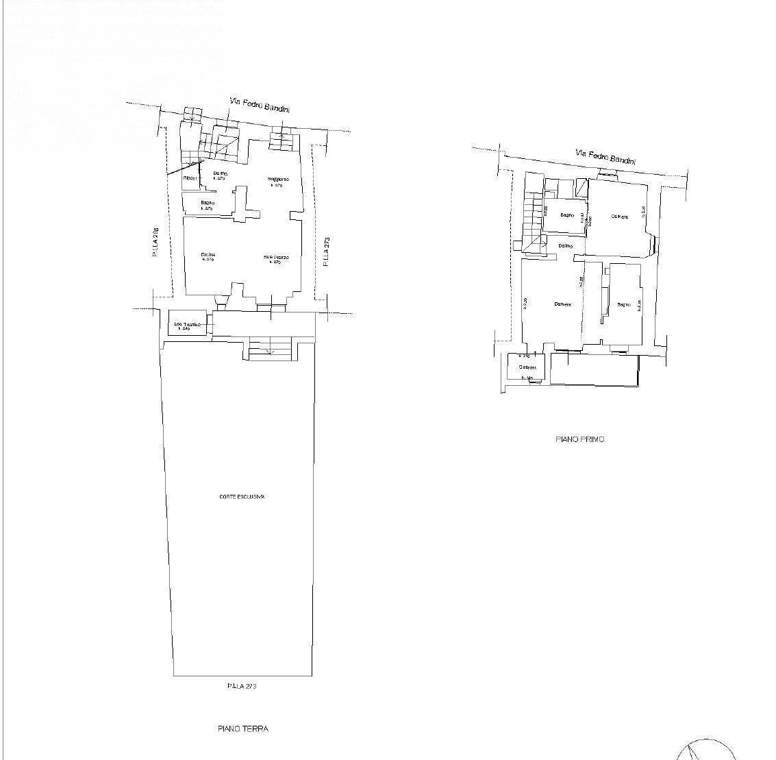
Montefollonico centro storico a pochi passi da Pienza e Montepulciano opportunità unica di acquistare una casa di recentissima ristrutturazione con il suo giardino privato . Avere il proprio giardino privato in centro storico non ha prezzo . La casa, situata nel centro storico, offre lopportunità di vivere fra la bellezza del passato ma con tutti i comfort di cui oggi necessitiamo . Il design, i colori e la posizione di questa casa la rendono perfetta per chi vive una vita fatta di lavori alternativi, serate con gli amici e freschezza verso le cose belle della vita, tutti coloro che come te non amano le convenzioni e vogliono un luogo da amare giorno dopo giorno. E per questo che questa villetta in centro storico ti garantisce di godere di un angolo di relax nel bellissimo borgo medievale di Montefollonico, ed al contempo di essere vicino a tutte le maggiori arterie di La casa si sviluppa su due livelli collegati da scala in graniglia, entrando da una delle caratteristiche vie del paese si accede al piano terra che si compone di un unico grande ambiente luminoso con cucina a vista, salotto e angolo pranzo divisi dai caratteristici archi toscani, il piano terra è munito anche di bagno-lavanderia. Dalla porta finestra del salotto si accede nel soleggiato giardino privato e recintato, munito di illuminazione e punto acqua, una piccola area del giardino con una bellissima pavimentazione è destinata a salotto esterno . Immaginatela con una pergola a copertura Salendo le scale arriviamo al piano notte con due ampie camere matrimoniali con annessi bagni privati per entrambe, la camera padronale dispone di terrazzo panoramico e di cabina armadio. La ristrutturazione è stata eseguita con cura e amore da parte dei proprietari scegliendo materiali e arredi di notevole pregio . Piccola ma piena damore, ecco come dovrebbe essere la casa perfetta. Proprio come questa, che nella sua intimità potrà accogliere i tuoi più grandi sogni. USO E POTENZIALITA Questa casa è perfetta anche come seconda abitazione, perché trovandosi in un luogo centrale e facilmente raggiungibile ti permetterà di godertela appieno, oppure di metterla a reddito affittandola per alcuni periodi dellanno. SERVIZI Luce, acquedotto, riscaldamento a pavimento a metano. Nel centro storico troviamo bar , ristoranti , bancomat, farmacia , teatro DISTANZE Siena 65 km, Montepulciano 9 km, Pienza 11km, Montalcino 32km, Autostrada A1 Val di Chiana 15 km, Aeroporti: Perugia 68 km, Pisa 192 km, Firenze 111 km, Roma 197 km
Dati principali
| Riferimento | A793 |
| Data annuncio | 13/05/2025 |
| Contratto | Vendita |
| Tipologia | Villa |
| Superficie | 133 m2 |
| Locali | cucina a vista |
| Tipo di costruzione | Signorile |
| Occupato | Libero |
| Arredamento | Assente |
Caratteristiche
Costi
| Prezzo | 550.000 € |
| Prezzo al m2 | 4.135 €/m2 |
Efficienza energetica
| Riscaldamento | Autonomo |
| Tipo Impianto Di Riscaldamento | a pavimento |
| Classe energetica | E |
| Indice di prestazione energetica (IPE) | - |
Planimetrie
Indirizzo e mappa
via F.Bandini, Torrita di Siena
Annuncio senza mappa,
prova a chiedere la posizione all'inserzionista
prova a chiedere la posizione all'inserzionista
Calcolo mutuo
Prezzo di vendita:
Anticipo
20,00
Mutuo
80,00
Tasso: -+
Rata: 1.573 al mese
I risultati sono una stima indicativa basata sui dati inseriti e non costituiscono un’offerta finanziaria.
Inserzionista

SOLE DI TOSCANA
VIA A.LANDUCCI, Torrita di Siena
Mostra Telefono
Mostra Cellulare
SOLE DI TOSCANA
Mostra Telefono
Chiama
CONTATTA

