

Locale Commerciale Sassuolo
€ 150.000
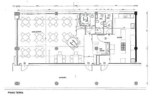
Locale commerciale in vendita a Sassuolo si trova in una posizione strategica, in una delle zone più frequentate e commerciali della città. Con una superficie totale di 150 metri quadrati oltre a 98 mq di cantina utile come magazzino, offre ampi spazi espositivi e di lavoro per ogni tipo di attività commerciale. L'immobile è dotato di tutti i comfort e di finiture moderne, ideali per accogliere sia i clienti che il personale. Il locale dispone di ben quattro vetrine, che garantiscono una massima visibilità e permettono di attirare l'attenzione dei passanti. Il locale è dotato di impianto di riscaldamento e raffrescamento di recente installazione, garantendo un alto livello di comfort durante tutto l'anno. Inoltre, la presenza di una canna fumaria indipendente adatta per l'installazione di una stufa a pellett garantisce maggior calore durante il periodo invernale. La posizione vantaggiosa, le ampie vetrine e gli spazi ben strutturati rendono questo locale commerciale un'ottima opportunità di investimento, da circa 10 anni locato ad un avviata attività di ristorazione. Non perdere l'occasione di questa opportunità di investimento.
Dati principali
| Riferimento | 6154 |
| Data annuncio | 13/05/2025 |
| Contratto | Vendita |
| Tipologia | Locale Commerciale |
| Superficie | 150 m2 |
| Locali | 1 (1 altro), 2 bagni, cucina abitabile |
| Occupato | Libero |
Caratteristiche
Costi
| Prezzo | 150.000 € |
| Prezzo al m2 | 1.000 €/m2 |
Efficienza energetica
| Stato | Buono |
| Riscaldamento | Semi-autonomo |
| Tipo Impianto Di Riscaldamento | ad aria |
| Tipo Alimentazione Riscaldamento | Elettrico |
| Classe energetica | Immobile esente da certificazione energetica |
Indirizzo e mappa
Sassuolo
Annuncio senza mappa,
prova a chiedere la posizione all'inserzionista
prova a chiedere la posizione all'inserzionista
Calcolo mutuo
Prezzo di vendita:
Anticipo
20,00
Mutuo
80,00
Tasso: -+
Rata: 429 al mese
I risultati sono una stima indicativa basata sui dati inseriti e non costituiscono un’offerta finanziaria.
Inserzionista

Agenzia immobiliare Habitat
Viale San Lorenzo, 2, Sassuolo
Mostra Telefono
Mostra Cellulare
Habitat Sassuolo
Mostra Telefono
Chiama
CONTATTA