Appartamento Sanremo
€ 750.000
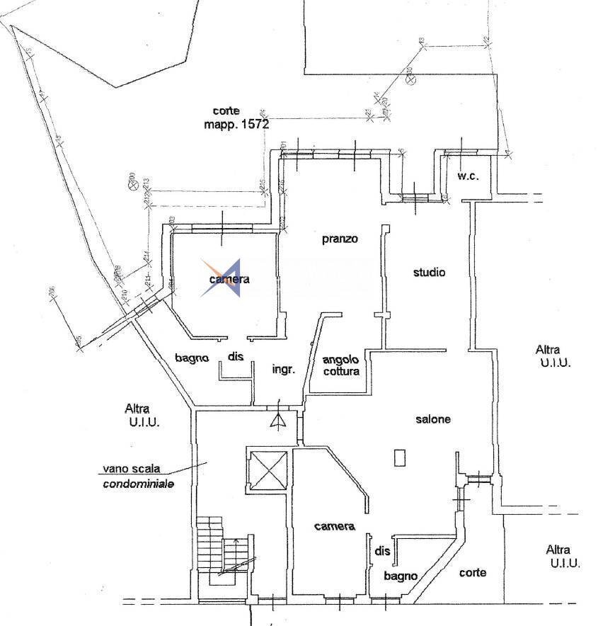
Sanremo, Via Duca degli Abruzzi, una delle aree più tranquille e residenziali della città, comoda al mare e ai principali servizi, proponiamo in vendita un raffinato appartamento con grande giardino privato. Situato in una palazzina signorile circondata da unampia area recintata, limmobile offre privacy, sicurezza e tranquillità, garantendo un ambiente ideale per chi desidera vivere nel verde senza rinunciare alla vicinanza al centro. Lappartamento, di 180 mq al piano terra, vanta un giardino privato di 250 mq, curato nei minimi dettagli con gazebo, illuminazione notturna, pavimentazione in pietra e irrigazione automatica. È composto da due unità abitative comunicanti, ciascuna con ingresso indipendente. La prima unità, di 115 mq, comprende un luminoso soggiorno open space con sala da pranzo e cucina a vista, due camere matrimoniali ben illuminate, due bagni finestrati e accesso esclusivo al giardino. La seconda, un bilocale di 65 mq, offre unampia zona giorno con cucina a vista, una camera matrimoniale, un bagno finestrato e una corte privata riservata. Limmobile è in ottime condizioni, parzialmente arredato e dotato di impianto termoautonomo a gas metano. Dispone inoltre di due posti auto coperti in autorimessa e due cantine. Perfetto come residenza principale, soluzione per due famiglie o investimento. È possibile acquistare anche solo lappartamento più grande al prezzo di 500.000. Per ulteriori dettagli, non esitate a contattarci.
Dati principali
| Riferimento | 13901 |
| Data annuncio | 13/05/2025 |
| Contratto | Vendita |
| Tipologia | Appartamento |
| Superficie | 185 m2 |
| Locali | 5 (3 camere da letto, 2 altro), 3 bagni, cucina a vista |
| Piano | Terra, 3 totali |
| Tipo di costruzione | Signorile |
| Occupato | Libero |
| Numero posti auto | 2 |
Caratteristiche
Costi
| Prezzo | 750.000 € |
| Prezzo al m2 | 4.054 €/m2 |
Efficienza energetica
| Stato | Ottimo |
| Riscaldamento | Autonomo |
| Classe energetica | D |
| Indice di prestazione energetica (IPE) | - |
Planimetrie
Indirizzo e mappa
Sanremo
Annuncio senza mappa,
prova a chiedere la posizione all'inserzionista
prova a chiedere la posizione all'inserzionista
Calcolo mutuo
Prezzo di vendita:
Anticipo
20,00
Mutuo
80,00
Tasso: -+
Rata: 2.145 al mese
I risultati sono una stima indicativa basata sui dati inseriti e non costituiscono un’offerta finanziaria.
Inserzionista
Chiama
CONTATTA


