Casa indipendente VIA PRIMICELLO, Copparo
€ 140.000
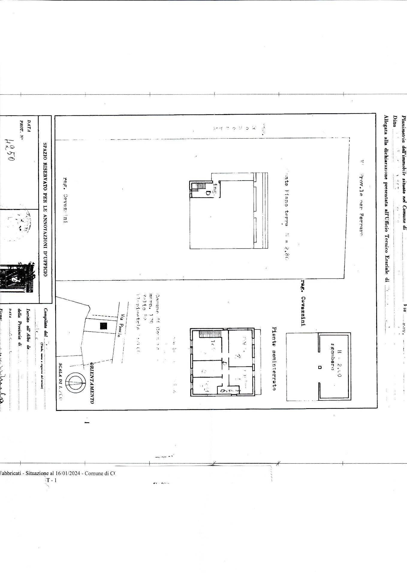
Casa indipendente in vendita a Copparo, in posizione periferica direzione Ferrara, libera a breve termine, indipendente su 4 lati in buone condizioni di manutenzione. La casa è distribuita tre piani. Al piano rialzato unità immobiliare uso ufficio composto da una ampia zona open-space, e ulteriori tre vani con servizio. Al primo piano unità abitativa ad uso residenziale in buone condizioni di manutenzione composta da ingresso, sala, cucina abitabile, due camere letto, due bagni rinnovati e un ampio balcone di 10 mq. Infine al piano seminterrato, ampia zona adibita a garage, cantina, e lavanderia. Le condizioni complessive sono buone in relazione alla data di costruzione, i pavimenti sono in marmo, infissi in legno con doppio vetro anodizzato, scala interna in marmo. Completa la proprietà una ampia area di scoperto circostante di circa 900 metri in parte adibita a manovra auto e in parte a verde. La casa si presta ad una soluzione mista negozio/ufficio con appartamento sovrastante oppure alla classica soluzione genitori-figli ipotizzando di utilizzare il piano rialzato come appartamento ad uso abitativo. La disposizione del pano rialzato si presta facilmente alla trasformazione. Prezzo richiesto 140.000,00
Dati principali
| Riferimento | C220 |
| Data annuncio | 13/05/2025 |
| Contratto | Vendita |
| Tipologia | Casa indipendente |
| Superficie | 300 m2 |
| Locali | più di 5 (2 camere da letto, 6 altro), 2 bagni, cucina abitabile |
| Piano | Su più livelli, 2 totali |
| Tipo di costruzione | Popolare |
| Occupato | Libero |
| Box auto | Doppio |
| Arredamento | Assente |
Caratteristiche
Costi
| Prezzo | 140.000 € |
| Prezzo al m2 | 467 €/m2 |
Efficienza energetica
| Stato | Buono |
| Riscaldamento | Autonomo |
| Classe energetica | F |
| Indice di prestazione energetica (IPE) | 248 kWh/m2 anno |
Planimetrie
Video
Indirizzo e mappa
VIA PRIMICELLO, Copparo
Annuncio senza mappa,
prova a chiedere la posizione all'inserzionista
prova a chiedere la posizione all'inserzionista
Calcolo mutuo
Prezzo di vendita:
Anticipo
20,00
Mutuo
80,00
Tasso: -+
Rata: 400 al mese
I risultati sono una stima indicativa basata sui dati inseriti e non costituiscono un’offerta finanziaria.
Inserzionista

ABITARE-IN ALBERTO ALBERTI
Via GINESTRA, Ferrara
Mostra Cellulare
Chiama
CONTATTA

