Negozio via Bertolini 25, Montebelluna
€ 205.000
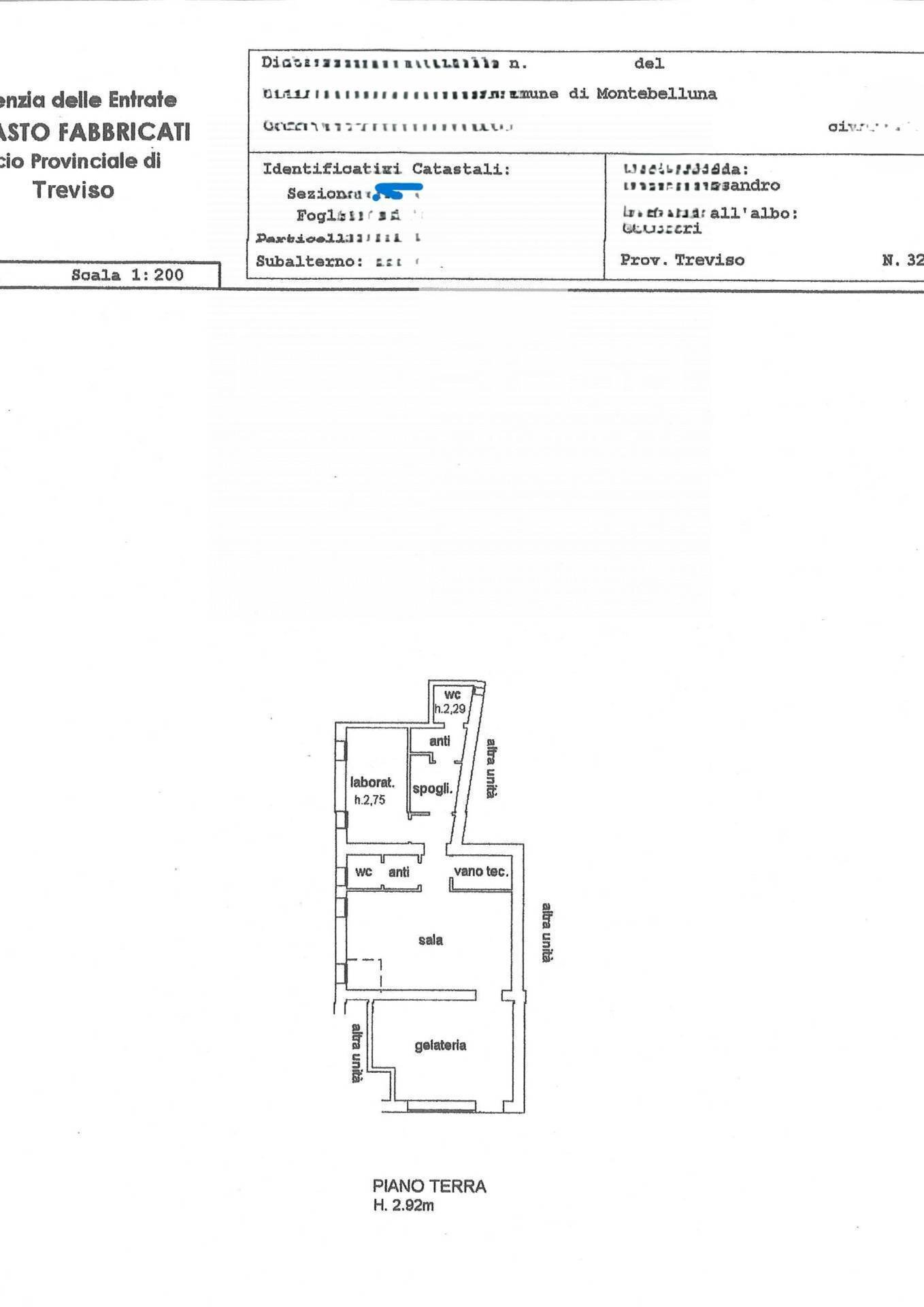
Negozio per attività commerciale in centro a Montebelluna. Montebelluna centro, fronte strada, nel corso principale della cittadina ex gelateria libera da subito. Posizione strategica su viale di maggior traffico pedonale e carrabile, vetrina. Il negozio adatto a bar, pasticceria, gelateria o qualsiasi altra attività è composto da prima sala vendita, sala consumazione, bagno clienti, laboratorio, bagno e spogliatoio dipendenti e vano tecnico. Ristrutturato recentemente con nuovi impianti riscaldamento/condizionamento, pavimenti, bagni. Si valuta anche affitto. Per maggiori informazioni e visite su questo negozio per attività commerciale in centro a Montebelluna in vendita, potete contattare senza impegno l'Agenzia immobiliare Montebelluna impREsa al numero 0423 077837 citando il Rif. I/EZA002 per altri appartamenti e case in vendita a Montebelluna potete visitare il nostro sito www.impresaimmobiliare.com
Dati principali
| Riferimento | I/EZA002 |
| Data annuncio | 13/05/2025 |
| Contratto | Vendita |
| Tipologia | Negozio |
| Superficie | 70 m2 |
| Locali | 4 (4 altro), 2 bagni |
| Occupato | Libero |
| Arredamento | Assente |
Costi
| Prezzo | 205.000 € |
| Prezzo al m2 | 2.929 €/m2 |
Efficienza energetica
| Stato | Buono |
| Riscaldamento | Autonomo |
| Tipo Alimentazione Riscaldamento | Altro |
| Classe energetica | C |
| Indice di prestazione energetica (IPE) | - |
Planimetrie
Virtual tour
Indirizzo e mappa
via Bertolini
25, Montebelluna
Annuncio senza mappa,
prova a chiedere la posizione all'inserzionista
prova a chiedere la posizione all'inserzionista
Calcolo mutuo
Prezzo di vendita:
Anticipo
20,00
Mutuo
80,00
Tasso: -+
Rata: 586 al mese
I risultati sono una stima indicativa basata sui dati inseriti e non costituiscono un’offerta finanziaria.
Inserzionista

impREsa Montebelluna
Piazza Oberkochen 38, Montebelluna
Mostra Telefono
Zandona Elena
Mostra Telefono
Chiama
CONTATTA

