Appartamento Piazza Mazzini, Racconigi
Trattativa riservata
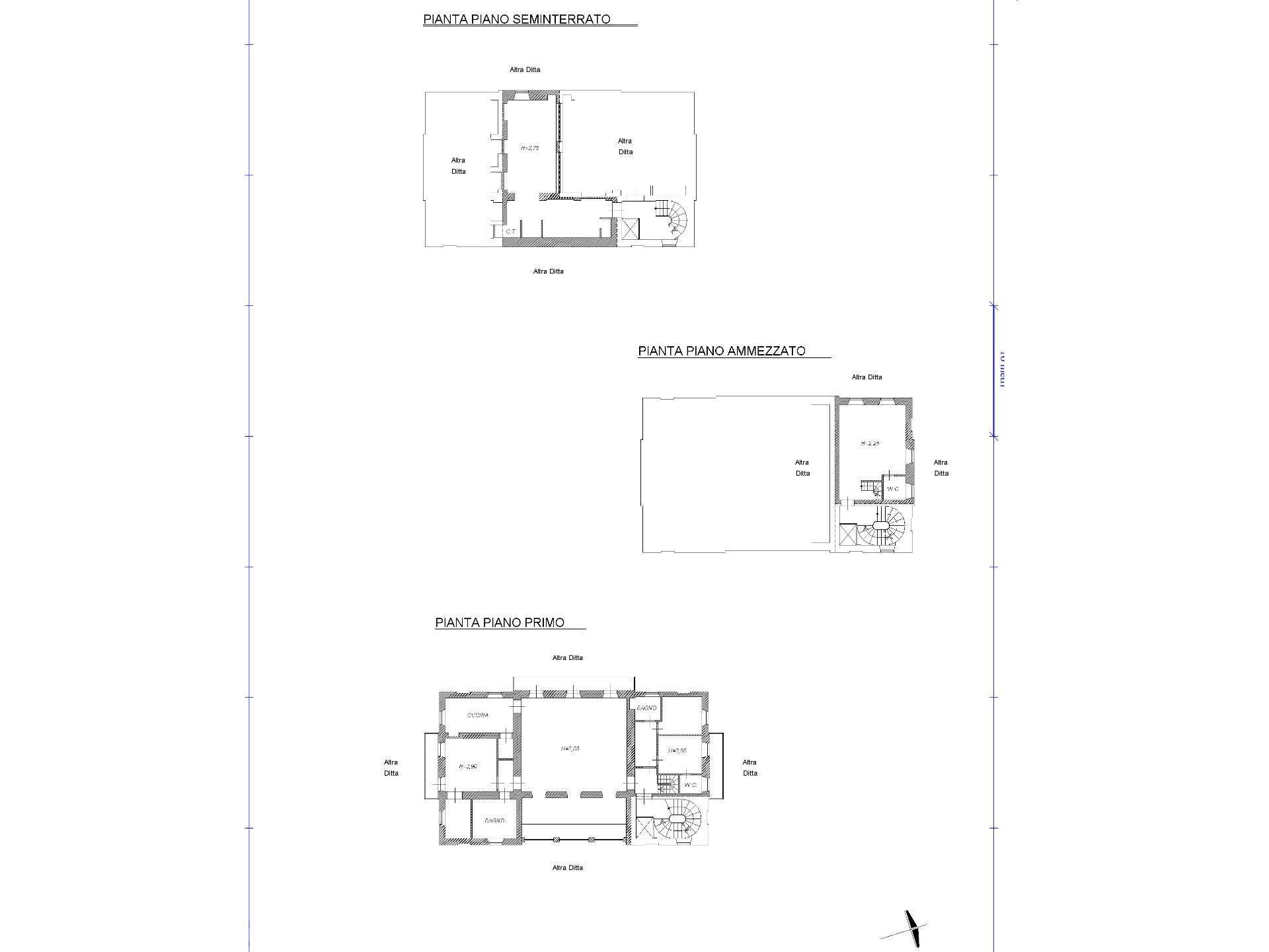
Nel centro di Racconigi, in posizione strategica ampio e prestigioso appartamento al primo piano con ascensore di un piccolo condominio di soli due piani. L'immobile si sviluppa quasi per intero al primo piano ed è internamente composto da ingresso, grande salone di rappresentanza, cucina abitabile, due camere, di cui una padronale con cabina armadi, tre bagni. Delizioso loggiato e un piccolo terrazzino fronte salone e un lungo balcone sull'interno cortile. Al piano ammezzato ulteriore camera dotata di bagno interno. Al piano seminterrato, non collegato direttamente all'appartamento, fascinosa tavernetta con soffitti a volta e mattoni a vista, dotata di cucina e forno, lavanderia. Nonostante l'immobile sia stato radicalmente ristrutturato nel 2010 si presenta in perfetto stato di conservazione. E' dotato di tre camini a bioetanolo, antifurto, riscaldamento autonomo e aria condizionata. Ristrutturazione di pregio e molto particolare realizzata con materiali di primissima qualità, tra i quali lo splendido marmo rosa e i parquettes. Completano la proprietà due box auto singoli al piano terreno. Aggiornamenti catastali eventualmente in corso. Pertanto, tutti i dati sopra riportati non costituiscono elementi né presupposti contrattuali.
Dati principali
| Riferimento | 13020 |
| Data annuncio | 13/05/2025 |
| Contratto | Vendita |
| Tipologia | Appartamento |
| Superficie | 281 m2 |
| Locali | più di 5 (3 camere da letto, 5 altro), 4 bagni, cucina abitabile |
| Piano | 1 di 2 totali |
| Occupato | Libero |
| Box auto | Doppio |
| Arredamento | Parziale |
Caratteristiche
Costi
| Prezzo | Trattativa riservata |
Efficienza energetica
| Stato | Parzialmente ristrutturato |
| Riscaldamento | Autonomo |
| Classe energetica | C |
| Indice di prestazione energetica (IPE) | 149 kWh/m2 anno |
Planimetrie
Indirizzo e mappa
Piazza Mazzini, Racconigi
Annuncio senza mappa,
prova a chiedere la posizione all'inserzionista
prova a chiedere la posizione all'inserzionista
Inserzionista

Chiusano Immobiliare
Via Pastrengo, 29, Torino
Mostra Telefono
Chiama
CONTATTA

