Bilocale Via dei Mille, San Benedetto del Tronto
€ 285.000
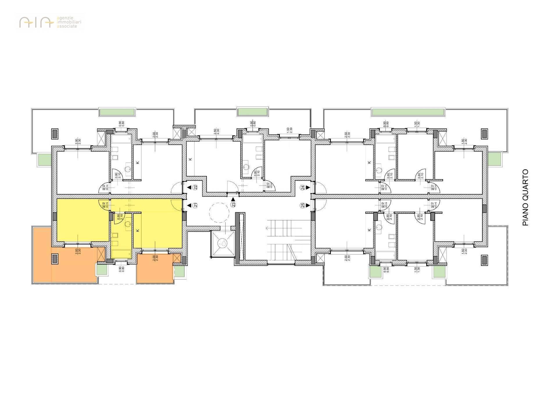
Proponiamo in vendita un appartamento in fase di costruzione, con consegna prevista per Dicembre 2027, situato nella zona sud di San Benedetto del Tronto, in 2° fila a solo 50 mt dalla spiaggia e dal lungomare Rinascimento. Una nuova costruzione di 5 piani dal design moderno ed accattivante, che si distingue per le sue ottime e pregiate rifiniture di alto livello, con classe energetica A+ che garantirà un elevato comfort e un notevole risparmio energetico. L'appartamento, interno 21, di 44 metri quadrati si trova al piano 3°ed è composto da un luminoso soggiorno con angolo cottura, una camera matrimoniale e un bagno con doccia. Inoltre, l'immobile vanta di 2 balconi abitabili per totali 25 mq metri quadrati , ideali per trascorrere piacevoli momenti all'aria aperta. Dispone di posti auto scoperti al costo di 20.000 cadauno e di garage a partire da 42,000/00 (21 mq) Ideale come residenza estiva per godere delle splendide spiagge di San Benedetto del Tronto o come investimento per affitti turistici di prestigio. Non perdere l'opportunità di possedere questo nuovo e moderno appartamento, posizionato in una delle aree più esclusive della città, a soli due passi dalle spiagge più belle della costa adriatica
Dati principali
| Riferimento | 33098 |
| Data annuncio | 13/05/2025 |
| Contratto | Vendita |
| Tipologia | Appartamento |
| Superficie | 44 m2 |
| Locali | 2 (1 camera da letto, 1 altro), 1 bagno, cucina angolo cottura |
| Piano | 4 di 5 totali |
| Tipo di costruzione | Signorile |
| Occupato | Libero |
| Box auto | Singolo |
| Numero posti auto | 1 |
Caratteristiche
Costi
| Prezzo | 285.000 € |
| Prezzo al m2 | 6.477 €/m2 |
Efficienza energetica
| Riscaldamento | Autonomo |
| Tipo Impianto Di Riscaldamento | ad aria |
| Classe energetica | A1 |
Indirizzo e mappa
Via dei Mille, San Benedetto del Tronto
Annuncio senza mappa,
prova a chiedere la posizione all'inserzionista
prova a chiedere la posizione all'inserzionista
Calcolo mutuo
Prezzo di vendita:
Anticipo
20,00
Mutuo
80,00
Tasso: -+
Rata: 815 al mese
I risultati sono una stima indicativa basata sui dati inseriti e non costituiscono un’offerta finanziaria.
Inserzionista

La Mer
Via Dei Mille n.73, San Benedetto del Tronto
Mostra Telefono
Chiama
CONTATTA

