Attività Commerciale Castelfiorentino
Trattativa riservata
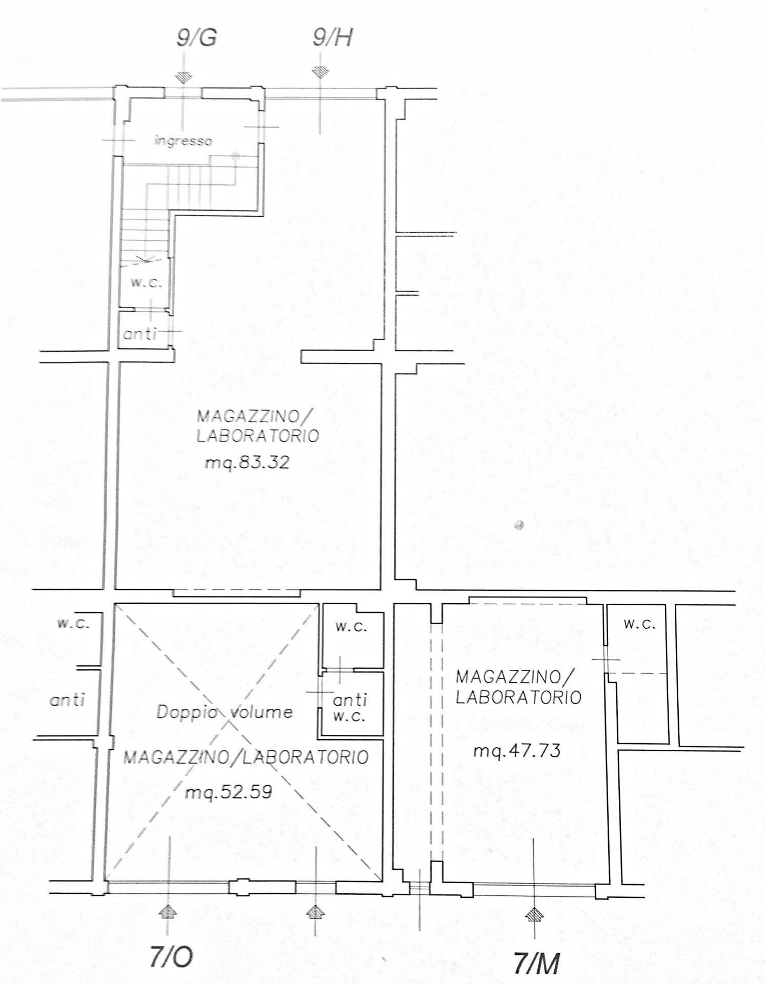
Fondo ad uso commerciale in affitto a Castelfiorentino a 2 km dal centro, zona periferica. Si affitta fondo commerciale totalmente ristrutturato di mq 183,64 con tre bagni e antibagni, ampia possibilità di parcheggio esterno. Possibilità di frazionamento. Rif. CC/8449 Tratt. Riservata. Per maggiori informazioni potete contattare i seguenti numeri Ufficio/Whatsapp 0571 629187 cell. 393 9703849 oppure potete visitare il nostro sito www.affittapresto.it e valutare altre interessanti proposte.
Dati principali
| Riferimento | CC8449 |
| Data annuncio | 13/05/2025 |
| Contratto | Affitto |
| Tipologia | Attività Commerciale |
| Superficie | 184 m2 |
| Locali | 3 (3 altro), 3 bagni |
| Piano | Terra, 1 totali |
| Occupato | Libero |
| Arredamento | Assente |
Costi
| Prezzo | Trattativa riservata |
Efficienza energetica
| Stato | Ottimo |
| Tipo Alimentazione Riscaldamento | Altro |
| Classe energetica | Immobile esente da certificazione energetica |
Indirizzo e mappa
Castelfiorentino
Annuncio senza mappa,
prova a chiedere la posizione all'inserzionista
prova a chiedere la posizione all'inserzionista
Inserzionista
Chiama
CONTATTA
