Villa Via Savonarola, Forte dei Marmi
Trattativa riservata
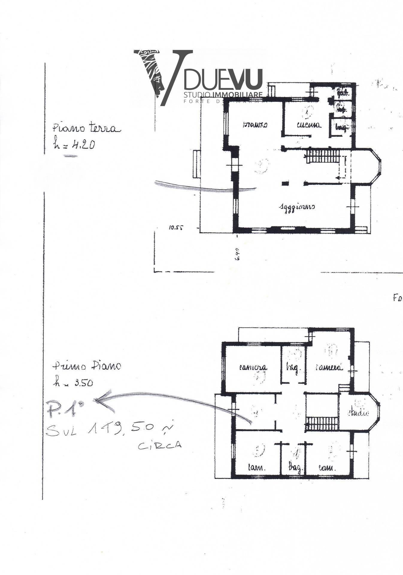
NOSTRA ESCLUSIVA Questa bella proprietà in oggetto è una Villa di sapore a Forte dei Marmi nella zona di Vittoria Apuana a 300 mt dal mare e a due passi dalla omonima piazzetta con tutti i servizi di prima necessità a portata di mano. La proprietà con i suoi 1400 mq circa di terreno, da la possibilità di costruire una piscina. La villa è di 350 mq su due piani fuori terra ed ha un'ottima esposizione. Al piano terra di 175 mq troviamo un grande e luminoso soggiorno con zona pranzo che si apre su una veranda arredata per mangiare all'aperto e zona relax, cucina abitabile, piccola dispensa dalla quale si accede alla lavanderia e al bagno di servizio. Dal soggiorno si sale una bella ed elegante scala in marmo e al piano intermedio troviamo una camera singola con bagno e la sua particolarità è la finestra su tre lati "bovindo" che troviamo anche al piano terra in corrispondenza della cucina, queste danno alla villa un tocco architettonico particolare. Al primo piano troviamo un ampio disimpegno dal quale si accede alla camera padronale con camino di pregio, inoltre tre camere matrimoniali con balconi, due bagni e stanza armadi. La proprietà è signorile ed elegante, la costruzione è eseguita con ottimi materiali e rifiniture.
Dati principali
| Riferimento | 3fb5Z |
| Data annuncio | 13/05/2025 |
| Contratto | Vendita |
| Tipologia | Villa |
| Superficie | 350 m2 |
| Locali | più di 5 (6 camere da letto, 3 altro), 4 bagni, cucina abitabile |
| Occupato | Libero |
| Numero posti auto | 3 |
| Arredamento | Parziale |
Caratteristiche
Costi
| Prezzo | Trattativa riservata |
Efficienza energetica
| Stato | Ottimo |
| Riscaldamento | Autonomo |
| Classe energetica | G |
| Indice di prestazione energetica (IPE) | 304 kWh/m2 anno |
Planimetrie
Indirizzo e mappa
Via Savonarola, Forte dei Marmi
Annuncio senza mappa,
prova a chiedere la posizione all'inserzionista
prova a chiedere la posizione all'inserzionista
Inserzionista

Duevu Studio immobiliare
via Trento 19, Forte dei Marmi
Mostra Cellulare
Chiama
CONTATTA

