Villa viale fellisent, Treviso
€ 550.000
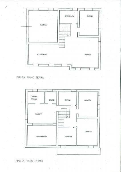
Treviso nord, villa singola di prossima realizzazione sviluppata su due piani fuori terra. L'immobile è composto da ampio soggiorno, cucina abitabile, quattro camere, tre bagni, ripostiglio e cabina armadi, terrazzo, garage doppio. Giardino privato netto di circa 280 mq. Possibilità di personalizzazione con scelta delle finiture, ed eventualmente tecnica di costruzione (anche bioedilizia). Ottima opportunità.
Dati principali
| Riferimento | V159 |
| Data annuncio | 13/05/2025 |
| Contratto | Vendita |
| Tipologia | Villa |
| Superficie | 230 m2 |
| Locali | più di 5 (4 camere da letto, 2 altro), 3 bagni, cucina abitabile |
| Piano | Su più livelli, 2 totali |
| Tipo di costruzione | Media |
| Box auto | Doppio |
Caratteristiche
Costi
| Prezzo | 550.000 € |
| Prezzo al m2 | 2.391 €/m2 |
Efficienza energetica
| Stato | Scarso |
| Riscaldamento | Autonomo |
| Tipo Alimentazione Riscaldamento | Altro |
| Classe energetica | Non classificabile |
Planimetrie
Indirizzo e mappa
viale fellisent, Treviso
Annuncio senza mappa,
prova a chiedere la posizione all'inserzionista
prova a chiedere la posizione all'inserzionista
Calcolo mutuo
Prezzo di vendita:
Anticipo
20,00
Mutuo
80,00
Tasso: -+
Rata: 1.573 al mese
I risultati sono una stima indicativa basata sui dati inseriti e non costituiscono un’offerta finanziaria.
Inserzionista

Studio Master Immobiliare
Via dei Lombardi n. 14
Mostra Telefono
Mostra Cellulare
Chiama
CONTATTA