Monolocale via Don Bartolomeo Grazioli, 57, Milano
€ 184.000Affori/Via Grazioli Nuovi appartamenti con terrazzo
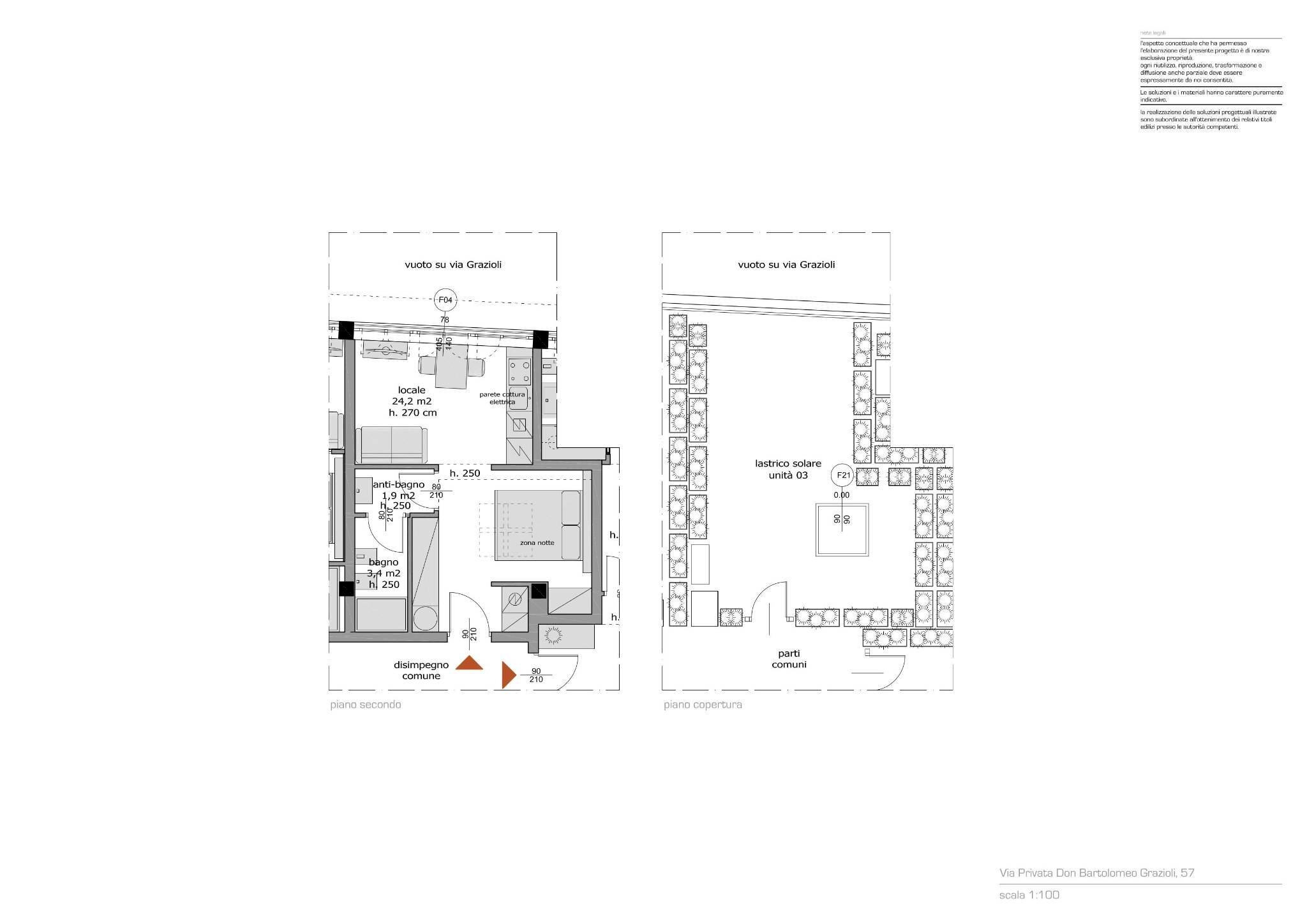
Affori/Dergano, Via Grazioli. Riferimento Unità 3 In piccola palazzina di due piani posti al secondo piano con ascensore disponiamo di monolocale di circa 38 metri con Terrazzo (non collegato)sovrastante della stessa metratura, l'appartamento è sono in pronta consegna, ed è composto da cucina a vista, bagno, terrazzo di proprietà con accesso da parti comuni. Richiesta unità 3 € 184.000, 00. Sono rimaste disponibili anche unità 2 € 184.000,00 in allegato planimetria unità 7 € 190.000,00 con balcone in allegato planimetria Classe Energetica 'A2/A3 Riscaldamento autonomo ad aria. Possibilità Posti Auto scoperti all'interno del cortile condominiale. Per maggiori informazioni Immogroup Srl 327.35. 86.180.
Dati principali
| Riferimento | 09 Grazioli Fabio Unità 3 |
| Data annuncio | 23/04/2025 |
| Contratto | Vendita |
| Tipologia | Appartamento |
| Superficie | 51 m2 |
| Locali | 1 (1 altro), 1 bagno, cucina a vista |
| Piano | 2 di 2 totali |
| Tipo di costruzione | Media |
| Numero di terrazzi | 1 |
| Numero di balconi | 1 |
| Box auto | Assente |
| Arredamento | Assente |
Costi
| Prezzo | 184.000 € |
| Prezzo al m2 | 3.608 €/m2 |
Efficienza energetica
| Anno costruzione | 2025 |
| Stato | Nuovo |
| Riscaldamento | Autonomo |
| Classe energetica | A |
| Indice di prestazione energetica (IPE) | 175 kWh/m2 anno |
Planimetrie
Indirizzo e mappa
via Don Bartolomeo Grazioli, 57, Milano
Calcolo mutuo
Prezzo di vendita:
Anticipo
20,00
Mutuo
80,00
Tasso: -+
Rata: 526 al mese
I risultati sono una stima indicativa basata sui dati inseriti e non costituiscono un’offerta finanziaria.
Inserzionista

Immo Group srl
Via Roma 101, Torino
Mostra Telefono
Chiama
CONTATTA

