Villa a Schiera Via Leonilde Iotti, Valsamoggia
€ 325.000Villa a schiera in vendita
CRESPELLANO (località Muffa): in verde e tranquilla zona residenziale, di fronte ai giardini pubblici e vicino alla locale stazione della linea suburbana Bologna-Vignola, recente villetta di testa circondata da un curato giardino con piante da frutto.
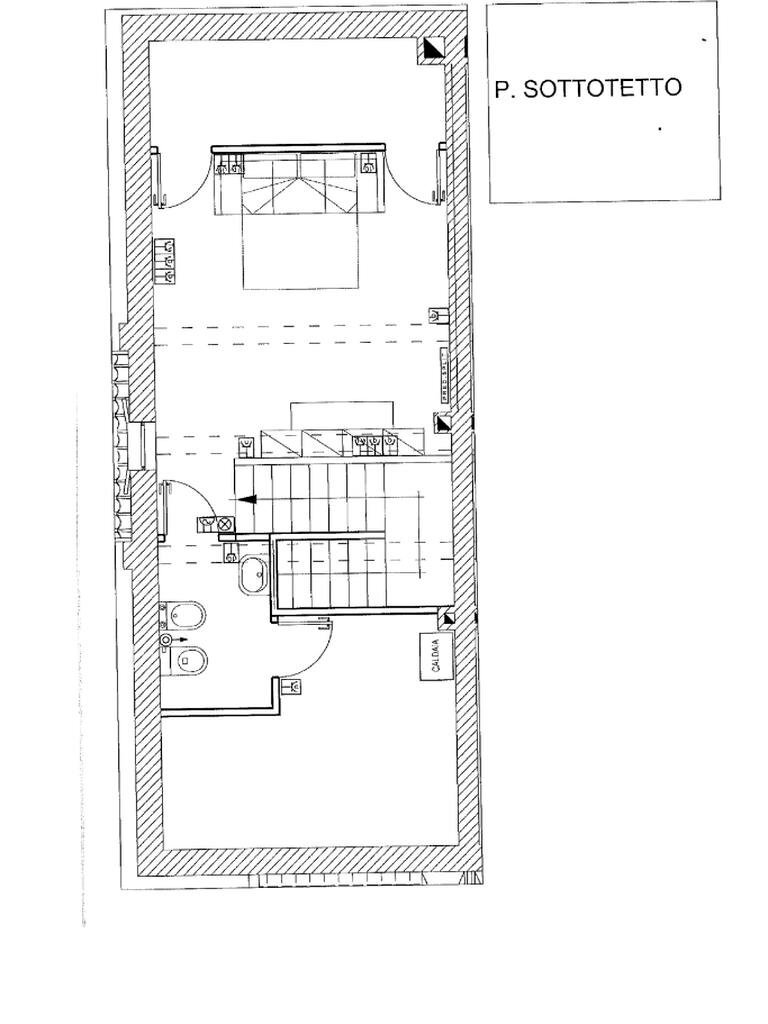
Il piano giorno è composto da soggiorno con zona cottura, bagno, ripostiglio e garage. La zona giorno si affaccia direttamente sul cortile pavimentato, ideale per i pranzi all’aperto. Al piano primo troviamo 2 camere matrimoniali, una delle quali dotata di balcone, nonchè il bagno principale. Al piano superiore sono presenti due comode soffitte, completamente rifinite e impreziosite dalla copertura a legno a vista.
Il paramento esterno è in pietravista, le finestre sono protette da scuri in legno. Le finiture sono di gusto recente, l’impianto termoidraulico è di tipo autonomo funzionante a gas metano. Sono predisposte la climatizzazione in tutti gli ambienti principali e la canna fumaria per caminetto nel soggiorno.
L’abitazione si trova in posizione comoda all’innesto alla nuova bazzanese. L'arredamento presente, se gradito, è compreso nel prezzo. Libera a giugno 2026.
Per visionare l'immobile e per maggiori informazioni, potete contattarci al numero 051960676.
Il piano giorno è composto da soggiorno con zona cottura, bagno, ripostiglio e garage. La zona giorno si affaccia direttamente sul cortile pavimentato, ideale per i pranzi all’aperto. Al piano primo troviamo 2 camere matrimoniali, una delle quali dotata di balcone, nonchè il bagno principale. Al piano superiore sono presenti due comode soffitte, completamente rifinite e impreziosite dalla copertura a legno a vista.
Il paramento esterno è in pietravista, le finestre sono protette da scuri in legno. Le finiture sono di gusto recente, l’impianto termoidraulico è di tipo autonomo funzionante a gas metano. Sono predisposte la climatizzazione in tutti gli ambienti principali e la canna fumaria per caminetto nel soggiorno.
L’abitazione si trova in posizione comoda all’innesto alla nuova bazzanese. L'arredamento presente, se gradito, è compreso nel prezzo. Libera a giugno 2026.
Per visionare l'immobile e per maggiori informazioni, potete contattarci al numero 051960676.
Dati principali
| Riferimento | 61052806 |
| Data annuncio | 30/04/2025 |
| Contratto | Vendita |
| Tipologia | Villa a Schiera |
| Superficie | 150 m2 |
| Locali | 4 (4 altro), 3 bagni |
| Piano | 2 di 2 totali |
Costi
| Prezzo | 325.000 € |
| Prezzo al m2 | 2.167 €/m2 |
Efficienza energetica
| Anno costruzione | 2007 |
| Riscaldamento | Autonomo |
| Tipo Alimentazione Riscaldamento | Metano |
| Classe energetica | E |
| Indice di prestazione energetica (EP GL, REN) | 2.2 kWh/m3 anno |
| Indice di prestazione energetica (EP GL, NREN) | 172.1 kWh/m3 anno |
Planimetrie
Indirizzo e mappa
Via Leonilde Iotti, Valsamoggia
Calcolo mutuo
Prezzo di vendita:
Anticipo
20,00
Mutuo
80,00
Tasso: -+
Rata: 929 al mese
I risultati sono una stima indicativa basata sui dati inseriti e non costituiscono un’offerta finanziaria.
Inserzionista
Chiama
CONTATTA

