Ufficio Reggio nell'Emilia
€ 65.000
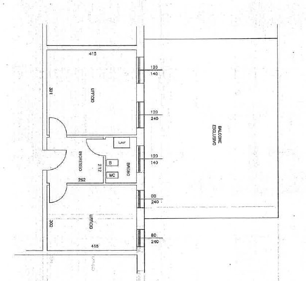
ZONA VIA CHE GUEVARA: vendiamo ufficio di 37 mq oltre ad ampio terrazzo di 50 mq composto da ingresso 2 vani, bagno. Teleriscaldamento autonomo. Classe energetica in fase di richiesta. Euro 65.000
Dati principali
| Riferimento | REF1574 M |
| Data annuncio | 28/04/2025 |
| Contratto | Vendita |
| Tipologia | Ufficio |
| Superficie | 37 m2 |
| Locali | 1 bagno |
| Piano | 2 |
Costi
| Prezzo | 65.000 € |
| Prezzo al m2 | 1.757 €/m2 |
Efficienza energetica
| Classe energetica | Immobile esente da certificazione energetica |
Indirizzo e mappa
Reggio nell'Emilia
Calcolo mutuo
Prezzo di vendita:
Anticipo
20,00
Mutuo
80,00
Tasso: -+
Rata: 186 al mese
I risultati sono una stima indicativa basata sui dati inseriti e non costituiscono un’offerta finanziaria.
Inserzionista
L Euroimmobiliare
Viale Umberto I, 6/B, Reggio nell'Emilia
Mostra Telefono
Chiama
CONTATTA

