Quadrilocale via Torino, 31, Cuorgnè
€ 69.000In zona centrale, alloggio parzialmente ristrutturato
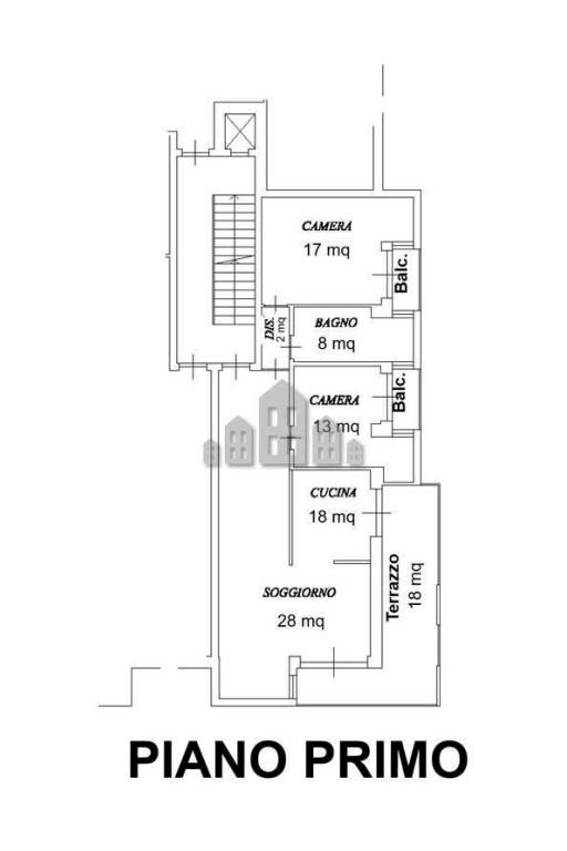
A pochi metri da Piazza D'Armi e dalla stazione, in Via Torino, una delle vie più servite e centrali di Cuorgnè, ti proponiamo un alloggio comodo e luminoso situato al primo piano di una palazzina dotata di ascensore. La casa ha beneficiato di alcuni lavori di ristrutturazione nel 2015, tra cui la posa dei pavimenti nella cucina e nel soggiorno e il rifacimento della facciata condominiale. Gli ambienti risultano ben esposti e molto luminosi, grazie alla presenza di due balconi e un terrazzo che servono sia la zona giorno che le camere da letto. Tra i punti di forza troviamo il riscaldamento autonomo e le spese condominiali contenute, qualità sempre più ricercate in un appartamento. A completare la proprietà c'è anche una cantina, utile come spazio di appoggio. Parzialmente ristrutturato, con ottima esposizione e in posizione centralissima, è l'ideale per chi cerca una casa funzionale per la propria famiglia o per chi desidera fare un investimento sicuro. Guarda il video e il virtual tour per esplorare al meglio ogni angolo dell'appartamento! Contattaci ora per saperne di più o per fissare una visita.
Dati principali
| Riferimento | NI_37.4 |
| Data annuncio | 08/04/2025 |
| Contratto | Vendita |
| Tipologia | Appartamento |
| Superficie | 86 m2 |
| Locali | 4 (2 camere da letto, 2 altro), 1 bagno, cucina a vista |
| Piano | 1 di 4 totali |
| Tipo di costruzione | Media |
| Numero di terrazzi | 1 |
| Numero di balconi | 1 |
| Box auto | Assente |
| Arredamento | Assente |
Caratteristiche
Costi
| Prezzo | 69.000 € |
| Prezzo al m2 | 802 €/m2 |
| Spese condominiali | € 40,00/mese |
Efficienza energetica
| Anno costruzione | 1974 |
| Stato | Buono |
| Riscaldamento | Autonomo |
| Classe energetica | Immobile esente da certificazione energetica |
Planimetrie
Indirizzo e mappa
via Torino, 31, Cuorgnè
Calcolo mutuo
Prezzo di vendita:
Anticipo
20,00
Mutuo
80,00
Tasso: -+
Rata: 197 al mese
I risultati sono una stima indicativa basata sui dati inseriti e non costituiscono un’offerta finanziaria.
Inserzionista

Canavese Case SNC
Via Torino 16/E, Cuorgnè
Mostra Telefono
Chiama
CONTATTA

