Villa via Sant'Ilario, Cisternino
€ 140.000Vendita Fabbricato – Via Sant’Ilario, Cisternino (Brindi
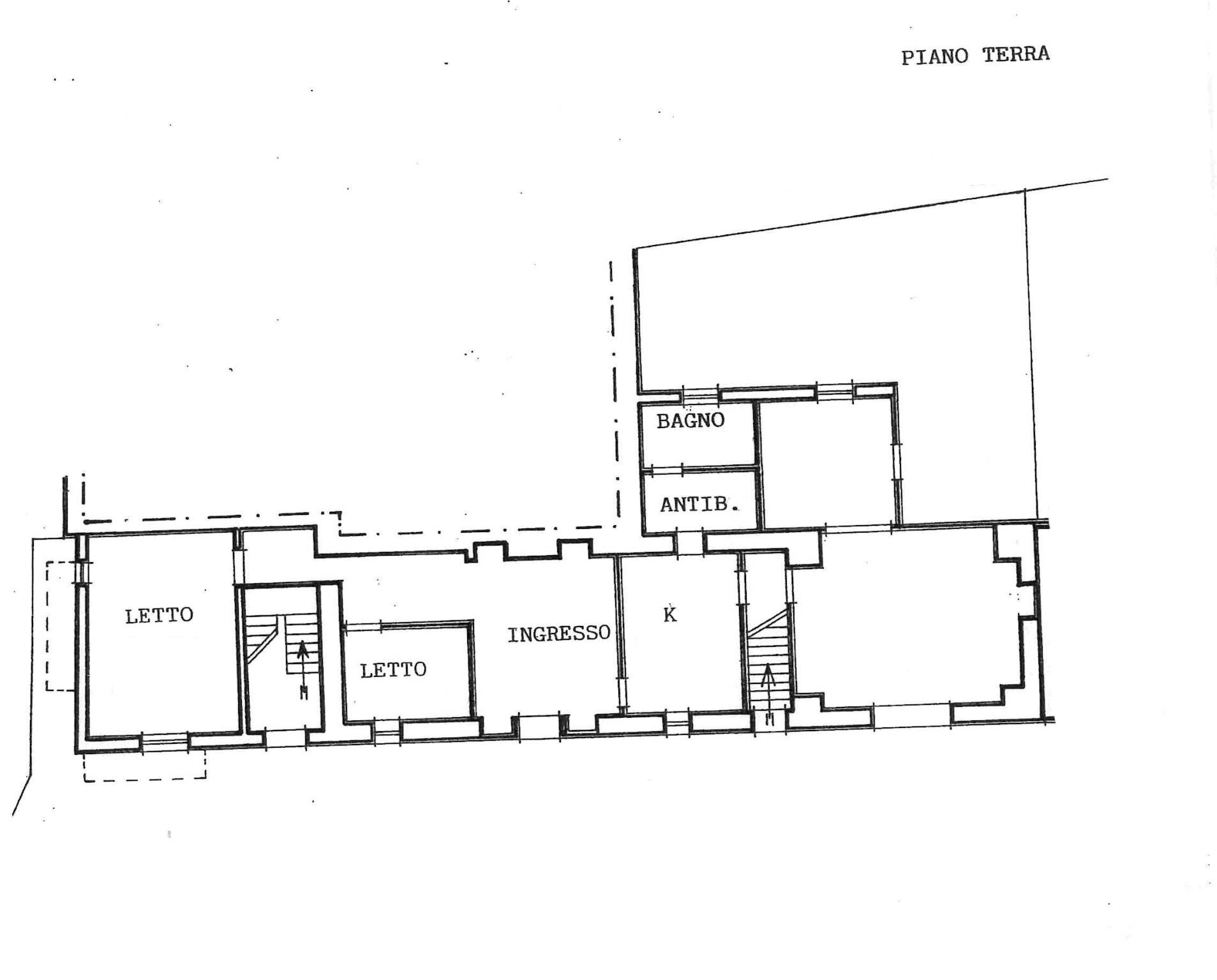
FABBRICATO in parte in PIETRA, disposto al piano terra, sito in Cisternino alla Via Sant’Ilario (Località Casalini) composta da ingresso/soggiorno con volta a “cielo di carrozza”, disimpegno, cucina con camino, due camere da letto e due bagni, oltre ad adiacenti due vani, di cui uno con volta a “stella” e camino. Scala di accesso ai lastrici solari (dipartentesi da portoncino indipendente). A pochi metri locale garage dalla consistenza catastale di circa 21 mq e uliveto dalla superficie di circa mq. 1.271 mq.
Dati principali
| Riferimento | t925 |
| Data annuncio | 05/04/2025 |
| Contratto | Vendita |
| Tipologia | Villa |
| Superficie | 237 m2 |
| Locali | più di 5 (2 camere da letto, 6 altro), 2 bagni |
| Piano | 1 totali |
| Numero di terrazzi | 1 |
Costi
| Prezzo | 140.000 € |
| Prezzo al m2 | 591 €/m2 |
Efficienza energetica
| Stato | Buono |
| Riscaldamento | Autonomo |
| Classe energetica | G |
| Indice di prestazione energetica (IPE) | 175 kWh/m2 anno |
Planimetrie
Indirizzo e mappa
via Sant'Ilario, Cisternino
Calcolo mutuo
Prezzo di vendita:
Anticipo
20,00
Mutuo
80,00
Tasso: -+
Rata: 400 al mese
I risultati sono una stima indicativa basata sui dati inseriti e non costituiscono un’offerta finanziaria.
Inserzionista

Gruppoinvest D'Amico Cisternino
Via Ceglie 15/17, Cisternino
Mostra Telefono
Chiama
CONTATTA

