Capannone Casalecchio di Reno
€ 285.000
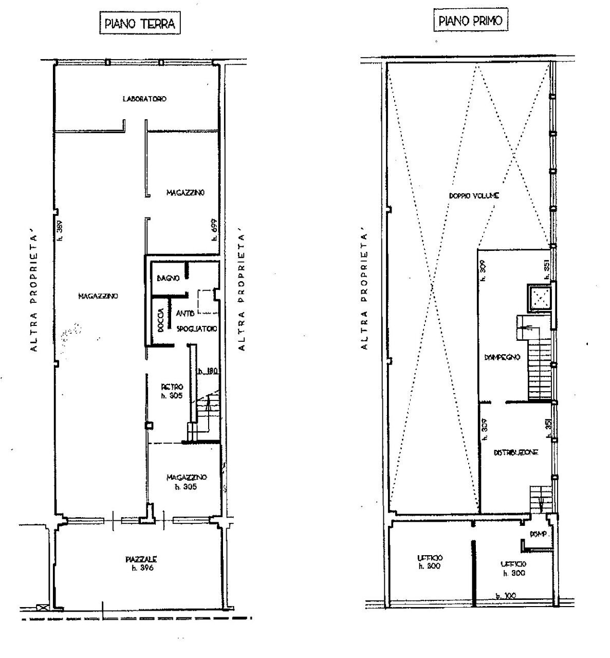
VENDESI NELLA ZONA COMMERCIALE DI CASALECCHIO DI RENO DISPONIAMO DI CAPANNONE DI MQ 300 , area cortiliva privata e recintata , RECENTISSIMA COSTRUZIONE DOTATO DI RISCALDAMENTO E ARIA CONDIZIONATA AMPIA AREA CORTILIVA CONDOMINIALE DEDICATA A PARCHEGGIO , IDEALE ANCHE PER SHOW ROOM euro 285.000 ,00 AMPIA DISPONIBILITA’ PER VISITE IN LOCO riferimento annuncio sbc019
Dati principali
| Riferimento | SBC019 |
| Data annuncio | 10/09/2019 |
| Contratto | Vendita |
| Tipologia | Capannone |
| Superficie | 300 m2 |
| Locali | 2 bagni |
Costi
| Prezzo | 285.000 € |
| Prezzo al m2 | 950 €/m2 |
| Spese condominiali | € 1,00/mese |
Efficienza energetica
| Classe energetica | Immobile esente da certificazione energetica |
Planimetrie
Indirizzo e mappa
Casalecchio di Reno
Calcolo mutuo
Prezzo di vendita:
Anticipo
20,00
Mutuo
80,00
Tasso: -+
Rata: 815 al mese
I risultati sono una stima indicativa basata sui dati inseriti e non costituiscono un’offerta finanziaria.
Inserzionista

Boschi Studio Immobiliare
Via Respighi 5, Casalecchio di Reno
Mostra Telefono
Chiama
CONTATTA

