Locale Commerciale via Ugo Lambertini, 1, Imola
€ 165.000VIA LAMBERTINI MAGAZZINO CON UFFICIO
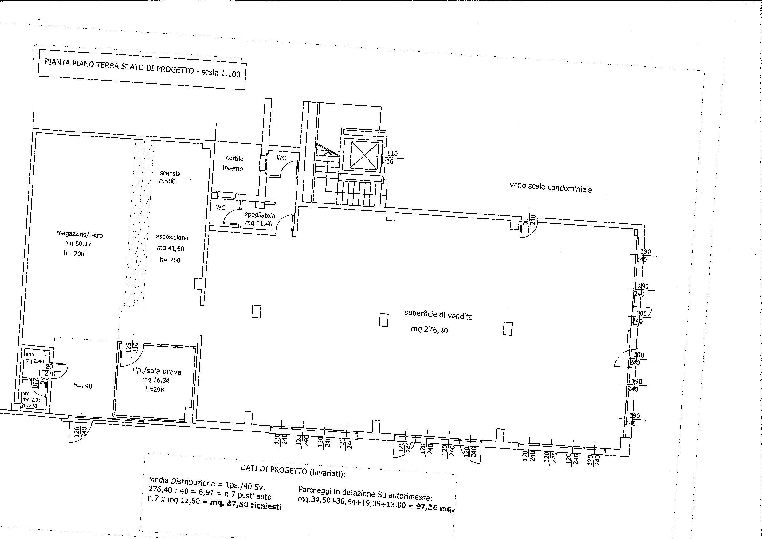
VIA LAMBERTINI: in fabbricato di recente costruzione magazzino di circa 160 mq. con portoni carrabile e cancello di sicurezza, composto da magazzino con zona ufficio riscaldata, antibagno e bagno. Impianti autonomi libero da subito. Impianti a norma di Legge, il tutto in ottime condizioni pari al nuovo. Rif 89 vendita/retro
Dati principali
| Riferimento | 89 Vendita/Retro |
| Data annuncio | 18/03/2025 |
| Contratto | Vendita |
| Tipologia | Locale Commerciale |
| Superficie | 164 m2 |
| Locali | 1 bagno |
| Numero locali | 2 |
Costi
| Prezzo | 165.000 € |
| Prezzo al m2 | 1.006 €/m2 |
Efficienza energetica
| Classe energetica | Immobile esente da certificazione energetica |
Planimetrie
Indirizzo e mappa
via Ugo Lambertini, 1, Imola
Calcolo mutuo
Prezzo di vendita:
Anticipo
20,00
Mutuo
80,00
Tasso: -+
Rata: 472 al mese
I risultati sono una stima indicativa basata sui dati inseriti e non costituiscono un’offerta finanziaria.
Inserzionista

Agenzia Immobiliare Calamosca
Via Paolo Galeati 27, Imola
Mostra Telefono
Mostra Cellulare
Chiama
CONTATTA

