Villa strada per Sostegno, 30, Sostegno
€ 260.000Rif.736 – Casa indipendente con giardino a Sostegno (BI)
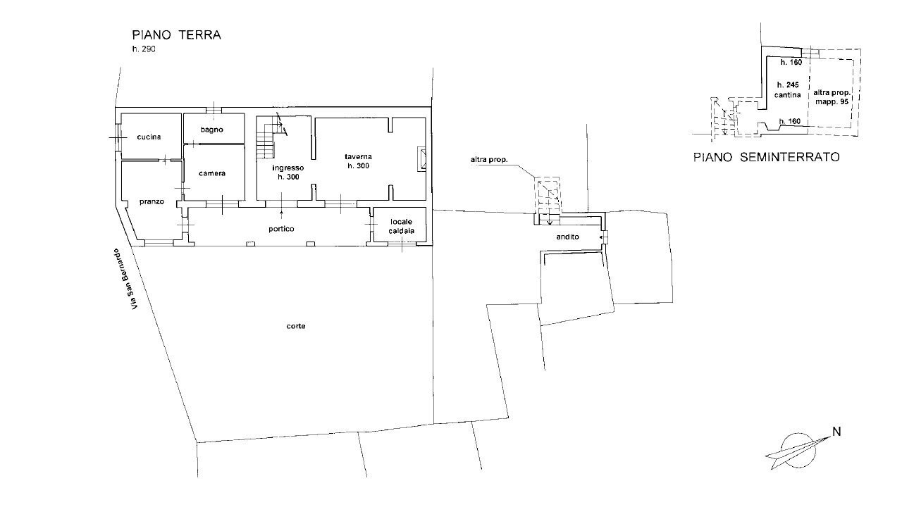
Proprietà con casa indipendente in vendita ad Asei, una località immersa nel verde, nel Comune di Sostegno (Biella). La vendita comprende due appartamenti, terreni ed accessori: 1) appartamento a piano terra con: salone/cucina a vista, disimpegno, camera e bagno (mq.68); 2) appartamento a piano primo con: grande salone, cucina abitabile, due camere, bagno e ripostiglio (mq.166); due terrazzi (mq.20); 3) taverna a piano terra composta da due locali con camino e locale caldaia con accesso esterno (mq.60); 4) tettoia chiusa su tre lati (mq.18) con accesso diretto al giardino; 5) cantina (mq.17) al piano seminterrato; 6) autorimessa esterna (mq.28) a piano terra; 7) autorimessa esterna (mq.25) a piano terra. L’accesso al vano scala centrale della casa che conduce al piano primo, avviene per mezzo di un portico all’ingresso con bel colonnato (mq.29), il quale disimpegna al vero e proprio ingresso (mq.27) dell’appartamento padronale; la scala è in noce, di grande finitura. Il giardino circostante alla casa ha doppio ingresso ed una superficie di mq.903. Una delle due autorimesse ha anche una piccola corte autonoma di mq.39. Poco distante dalla casa a soli mt.100, è compreso nella vendita un frutteto di circa mq.950 con orto. NOTE: La proprietà in vendita è ubicata nel Comune di Sostegno, in provincia di Biella, nella località Asei. La sua indipendenza è davvero ottima, grazie agli accessi dislocati su 3 punti differenti: l’ingresso principale è sulla Via San Bernardo, con accesso pedonale e carraio separati; un secondo accesso è sulla adiacente Via Torino, dove è presente un cancello carraio a doppia anta battente che conduce alla zona delle autorimesse; il terzo accesso, questo pedonale, è posto su una corte di proprietà di terzi con servitù di passo a nostro favore. La proprietà comprende l’area interna a giardino, con piantumazione e finiture curatissime in ogni dettagli; entrando dall’ingresso principale, si arriva in un grande portico con colonnato che disimpegna a sinistra ad un appartamento bilocale, centralmente, all’ingresso principale padronale che conduce alla taverna ed all’appartamento trilocale del piano primo. Appartamento bilocale a piano terreno (mq.68) – lavori di ristrutturazione del 2009: ingresso open-space su un grande soggiorno living con grande zona pranzo/cucina a vista. I serramenti esterni sono in legno, mentre il portoncino di ingresso è stato di recente cambiato, con un modello in PVC tinta legno; nel bagno è presente una finestra a vasistas con apertura elettrificata, così come l’oscurante della cucina. La pavimentazione è in parquet a listoni di grande qualità, in gres porcellanato nella zona cucina ed in bagno, i battiscopa sono in legno; porte interne del tipo scorrevole ad incasso nel muro, essenza ciliegio. Ottimo l’impianto di illuminazione, quasi tutto ad incasso a soffitto, oltre a classici lampadari; è presente un videocitofono. Il riscaldamento è del tipo autonomo a metano (Junkers a condensazione recentissima) con radiatori in ghisa; in bagno è presente uno scaldasalviette termoarredo. Bagno completo di doppio lavabo, wc, bidet con scarichi sospesi, specchiera ad incasso, box doccia in cristallo cambiato recentemente di grande finitura. Arredo bagno e cucina completa sono compresi nel prezzo di vendita Appartamento trilocale a piano primo (mq.166 – terrazzi mq.20) – costruzione del 1966, ristrutturata successivamente, fino al 1992: l’accesso avviene da una scala in noce di grande qualità dal piano terreno: alzate, pedate e battiscopa tutti in legno, le alzate sono state poi in parte coperte con moquette verde. Dal disimpegno si accede al grande salone con terrazzo, dalla pavimentazione in parquet incollato con posa lineare a un mezzo e bellissimi elementi geometrici. La presenza del legno si nota anche nelle camere, mentre il bagno conserva ancora le finiture originali. Il riscaldamento avviene per mezzo della caldaia Junkers a condensazione che serve già anche il piano terreno. Serramenti esterni in legno, coordinati cl resto della casa, persiane ad ante come oscuranti. Taverna a piano terreno (mq.60): delizioso locale ideale per cene e festeggiamenti, con un bellissimo camino centrale, la cui parete è interamente rivestita in sasso, pavimentazione in cotto e pareti bianche con intonaco frattazzato grezzo. Bellissimi elementi decorativi al soffitto costituiti da travi in legno. Anche in questo locale è presente il sistema di riscaldamento con elementi radianti in ghisa collegati alla caldaia situata nel locale adiacente a piano terreno. Tettoia a piano terreno (mq.18): in giardino, si accede facilmente a questo accessorio, ideale per ricovero attrezzi in quanto è chiusa su 3 lati ed ha copertura e strutture recenti ed in ottimo stato di conservazione. Anche qui, si nota la presenza di mattone a vista, nella muratura e nelle colonne di sostegno. Le autorimesse hanno le aperture elettrificate, perfettamente funzionanti.
Dati principali
| Riferimento | 736 |
| Data annuncio | 15/03/2025 |
| Contratto | Vendita |
| Tipologia | Villa |
| Superficie | 308 m2 |
| Locali | 5 (4 camere da letto, 1 altro), 2 bagni, cucina abitabile |
| Piano | 2 totali |
| Tipo di costruzione | Signorile |
| Numero di terrazzi | 1 |
| Numero di balconi | 1 |
| Box auto | Doppio |
| Numero posti auto | 2 |
| Arredamento | Parziale |
Caratteristiche
Costi
| Prezzo | 260.000 € |
| Prezzo al m2 | 844 €/m2 |
Efficienza energetica
| Anno costruzione | 2009 |
| Stato | Ottimo |
| Riscaldamento | Autonomo |
| Classe energetica | G |
| Indice di prestazione energetica (IPE) | 362 kWh/m2 anno |
Planimetrie
Indirizzo e mappa
strada per Sostegno, 30, Sostegno
Calcolo mutuo
Prezzo di vendita:
Anticipo
20,00
Mutuo
80,00
Tasso: -+
Rata: 744 al mese
I risultati sono una stima indicativa basata sui dati inseriti e non costituiscono un’offerta finanziaria.
Inserzionista

Immobiliare Ca' Nova
Via Gramsci 18, Borgomanero
Mostra Telefono
Chiama
CONTATTA

