Appartamento via Anton Maria Maragliano, Genova
€ 880.000APPARTAMENTO CON TERRAZZO GENOVA CENTRO QUADRILATERO
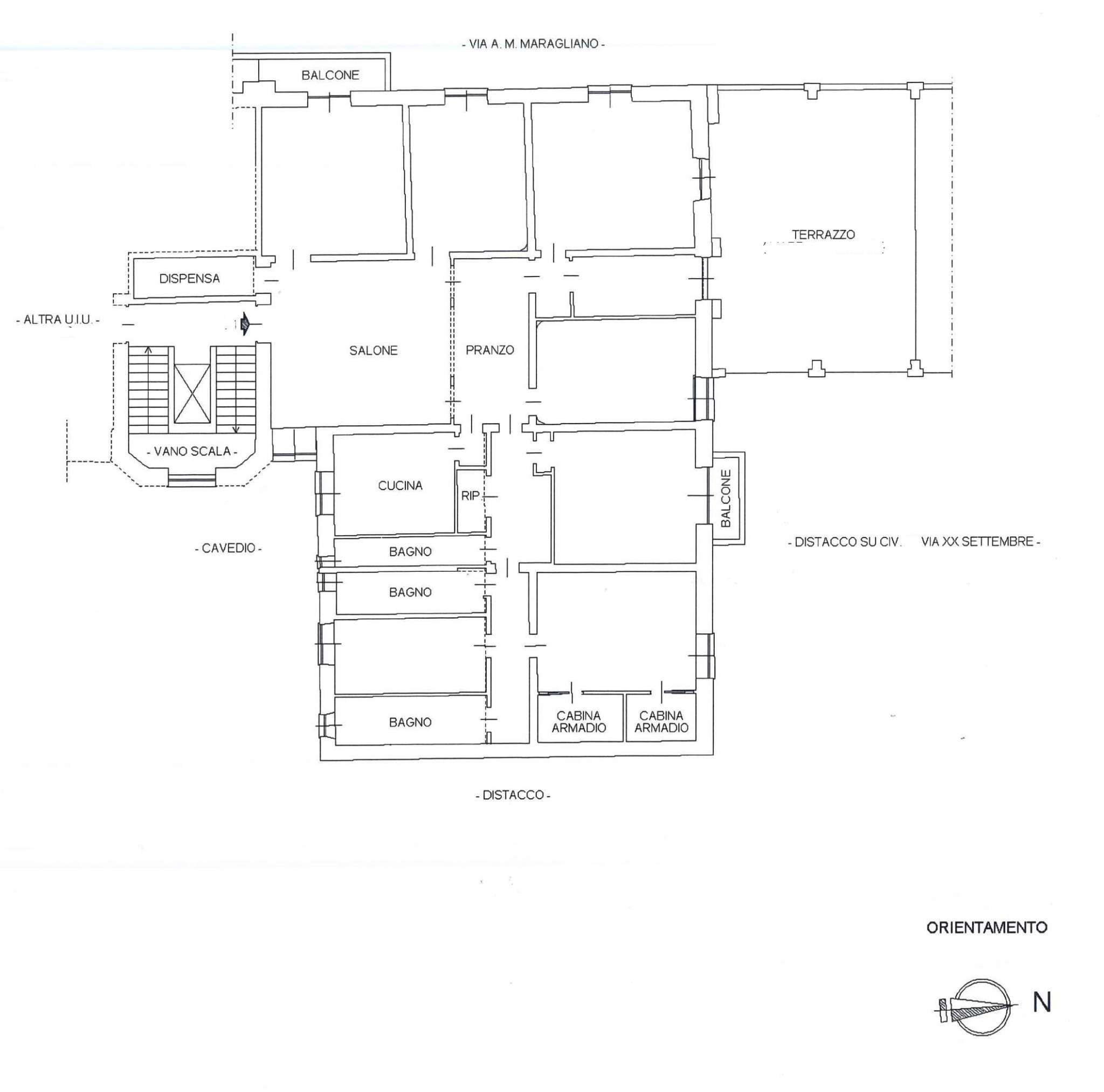
APPARTAMENTO IN VENDITA GENOVA CENTRO QUADRILATERO VIA MARAGLIANO Nel cuore del centro città, in stabile di pregio con servizio di portineria e privo di barbiere architettoniche, proponiamo in vendita appartamento internamente ristrutturato di mq 330 oltre terrazzo al piano di mq 50 circa. L'immobile è composto da ingresso, studio, salone, cinque camere, tre bagni, cabina armadi, due rispostigli e due balconi. L'impianto di riscaldamento è autonomo; l'appartamento è dotato inoltre di pavimenti in graniglia e parquet, impianto d'allarme e video citofono. Completa la propretà una cantina.
Per ulteriori informazioni e appuntamenti: IMMOBILI & GESTIONI Srl - Telefono 010.56.48.06 - www.immobiliegestioni.it
Per ulteriori informazioni e appuntamenti: IMMOBILI & GESTIONI Srl - Telefono 010.56.48.06 - www.immobiliegestioni.it
Dati principali
| Riferimento | QUADRILATERO |
| Data annuncio | 13/03/2025 |
| Contratto | Vendita |
| Tipologia | Appartamento |
| Superficie | 330 m2 |
| Locali | più di 5 (6 camere da letto, 2 altro), 3 bagni, cucina abitabile |
| Piano | 2 di 5 totali |
| Tipo di costruzione | Signorile |
| Numero di terrazzi | 1 |
| Numero di balconi | 2 |
| Box auto | Assente |
| Arredamento | Assente |
Caratteristiche
Costi
| Prezzo | 880.000 € |
| Prezzo al m2 | 2.667 €/m2 |
| Spese condominiali | € 415,00/mese |
Efficienza energetica
| Riscaldamento | Autonomo |
| Tipo Alimentazione Riscaldamento | Metano |
| Classe energetica | G |
| Indice di prestazione energetica (IPE) | 175 kWh/m2 anno |
Planimetrie
Indirizzo e mappa
via Anton Maria Maragliano, Genova
Calcolo mutuo
Prezzo di vendita:
Anticipo
20,00
Mutuo
80,00
Tasso: -+
Rata: 2.517 al mese
I risultati sono una stima indicativa basata sui dati inseriti e non costituiscono un’offerta finanziaria.
Inserzionista

IMMOBILI & GESTIONI S.R.L.
VIA INNOCENZO IV 5/3, Genova
Mostra Telefono
Chiama
CONTATTA

