Trilocale Via Linate 8 Ottobre 2001, Gorgonzola
€ 360.000Trilocale in vendita
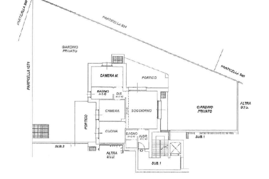
In zona Cascina Antonietta, a pochi passi dalla fermata metropolitana, proponiamo un trilocale ben rifinito del 2021. L'immobile è composto da: ingresso, bagno di servizio, ampio soggiorno e una spaziosa cucina abitabile. La zona notte è provvista di due camere da letto e un secondo bagno. Completa la soluzione una cantina. Possibilità box ad euro 20.000,00
Sono presenti due portici coperti ad uso esclusivo rispettivamente della cucina e del soggiorno per godere appieno momenti di relax privati o in compagnia.
Il giardino privato, si sviluppa sui tre lati dell'appartamento ed è di oltre 300 mq.
Sono presenti due portici coperti ad uso esclusivo rispettivamente della cucina e del soggiorno per godere appieno momenti di relax privati o in compagnia.
Il giardino privato, si sviluppa sui tre lati dell'appartamento ed è di oltre 300 mq.
Dati principali
| Riferimento | 61029196 |
| Data annuncio | 10/03/2025 |
| Contratto | Vendita |
| Tipologia | Appartamento |
| Superficie | 142 m2 |
| Locali | 3 (3 altro), 2 bagni |
| Piano | 3 totali |
Costi
| Prezzo | 360.000 € |
| Prezzo al m2 | 2.535 €/m2 |
| Spese condominiali | € 292,00/mese |
Efficienza energetica
| Anno costruzione | 2021 |
| Riscaldamento | Centralizzato |
| Tipo Alimentazione Riscaldamento | Metano |
| Classe energetica | A3 |
| Indice di prestazione energetica (EP GL, NREN) | 85.62 kWh/m3 anno |
Planimetrie
Video
Indirizzo e mappa
Via Linate 8 Ottobre 2001, Gorgonzola
Calcolo mutuo
Prezzo di vendita:
Anticipo
20,00
Mutuo
80,00
Tasso: -+
Rata: 1.030 al mese
I risultati sono una stima indicativa basata sui dati inseriti e non costituiscono un’offerta finanziaria.
Inserzionista
Chiama
CONTATTA

