Trilocale Fermo
€ 185.000
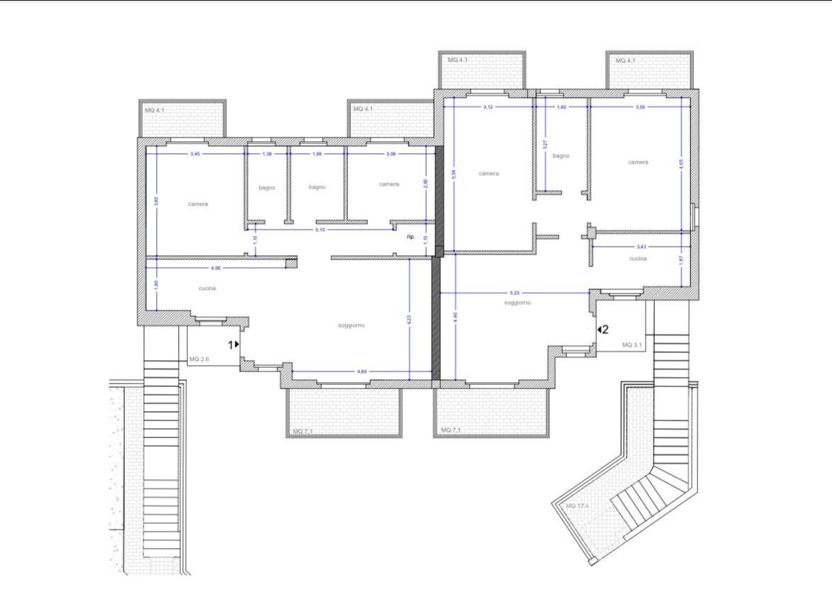
Classe energetica: A1 - Agenzia immobiliare Metroquadro vende in zona Cda San Maurizio n. 4 appartamenti ingressi indipendenti, fine costruzione, in classe A di mq 80 , ottime finiture con la possibilità di scelta materiali interni. Composto da due appartamenti piano terra con giardino, due al piano primo e ultimo con terrazzi, 4 garage seminterrati di varie metrature. Info 0734 440544 contattaci non perdere questa occasione.
Dati principali
| Riferimento | AP25 |
| Data annuncio | 06/03/2025 |
| Contratto | Vendita |
| Tipologia | Appartamento |
| Superficie | 90 m2 |
| Locali | 3 (2 camere da letto, 1 altro), 2 bagni |
| Box auto | Doppio |
Caratteristiche
Costi
| Prezzo | 185.000 € |
| Prezzo al m2 | 2.056 €/m2 |
Efficienza energetica
| Anno costruzione | 2025 |
| Riscaldamento | Autonomo |
| Classe energetica | Immobile esente da certificazione energetica |
Indirizzo e mappa
Fermo
Annuncio senza mappa,
prova a chiedere la posizione all'inserzionista
prova a chiedere la posizione all'inserzionista
Calcolo mutuo
Prezzo di vendita:
Anticipo
20,00
Mutuo
80,00
Tasso: -+
Rata: 529 al mese
I risultati sono una stima indicativa basata sui dati inseriti e non costituiscono un’offerta finanziaria.
Inserzionista
Chiama
CONTATTA


