Ufficio Bologna
€ 440.000
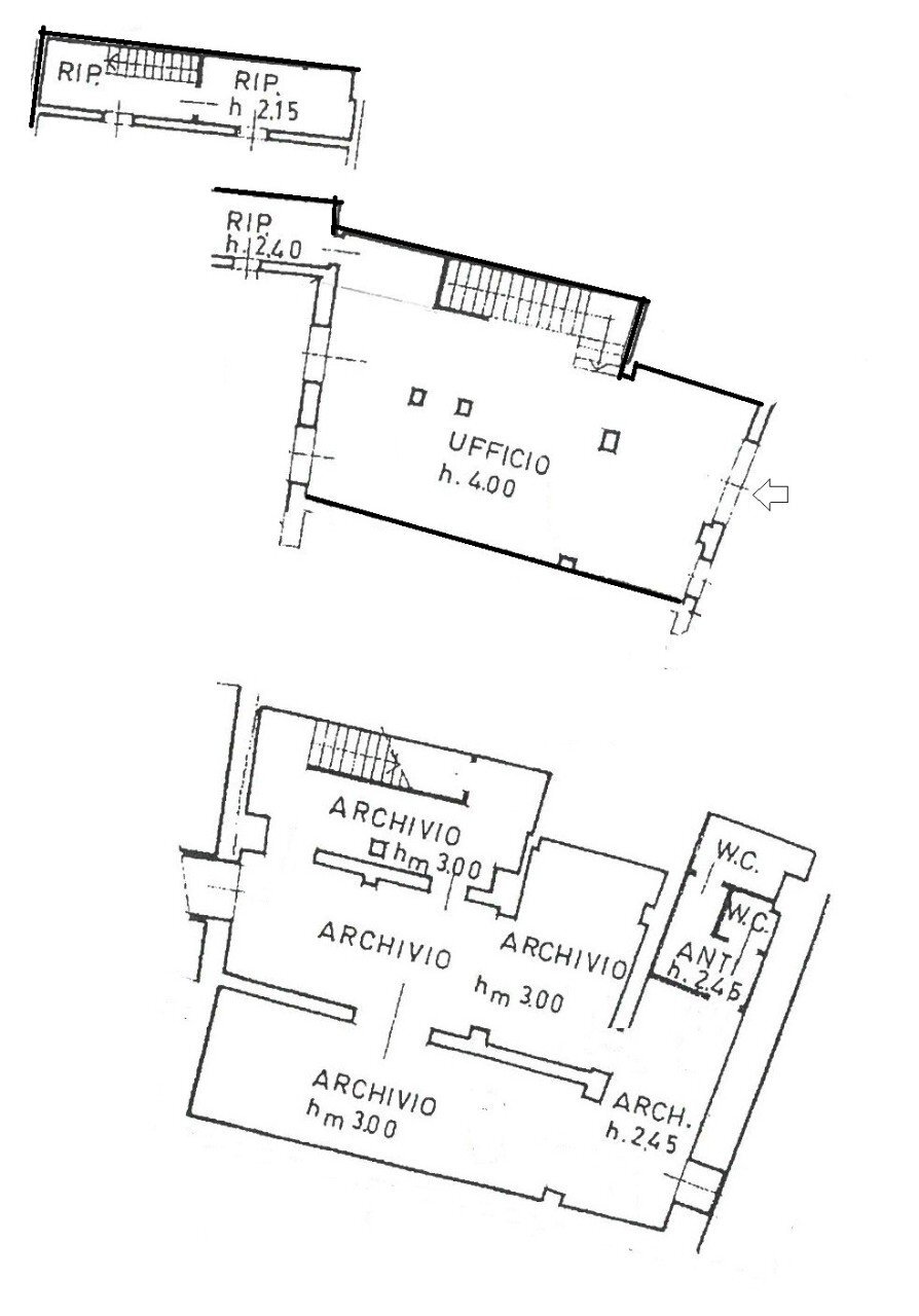
NEGOZIO IN VENDITA VIA GALLIERA, IN PALAZZO STORICO NELLE VICINANZE DI PALAZZO FAVA NEGOZIO DI MQ 200 CON VETRINA FRONTE STRADA POSTO AL PIANO TERRA. L’IMMOBILE COMPLETAMENTE RISTRUTTURATO E’ ATTUALMENTE ACCATASTO COME UFFICIO E SI SVILUPPA SU DUE LIVELLI. AL PIANO TERRA E’ PRESENTE UN LOCALE OPEN SPACE DI AMPIA METRATURA CON AFFACCI SU CORTE INTERNA SILENZIOSA E GRADEVOLE. L’ACCESSO AL PIANO INFERIORE E’ ASSICURATO DA UNA SCALA IN RESINA CHE CONDUCE AD UNO SPAZIO SUDDIVISO IN STANZE, SOFFITTI CON VOLTE A BOTTE, SEMPRE AL PIANO INFERIORE SONO PRESENTI 2 BAGNI. RIF 02M020. EURO 440.000
Dati principali
| Riferimento | 02M020 |
| Data annuncio | 27/02/2025 |
| Contratto | Vendita |
| Tipologia | Ufficio |
| Superficie | 210 m2 |
Costi
| Prezzo | 440.000 € |
| Prezzo al m2 | 2.095 €/m2 |
Efficienza energetica
| Classe energetica | Immobile esente da certificazione energetica |
Planimetrie
Indirizzo e mappa
Bologna
Calcolo mutuo
Prezzo di vendita:
Anticipo
20,00
Mutuo
80,00
Tasso: -+
Rata: 1.258 al mese
I risultati sono una stima indicativa basata sui dati inseriti e non costituiscono un’offerta finanziaria.
Inserzionista

Mida Group Immobiliare
Viale A.Oriani 2, Bologna
Mostra Telefono
Chiama
CONTATTA

