Appartamento Pianoro
€ 149.000
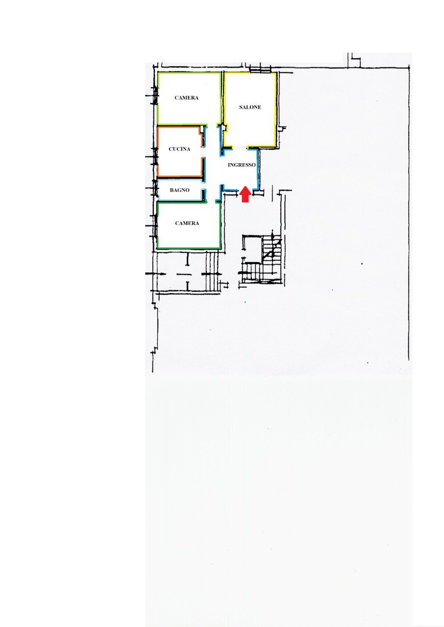
Libero Pianoro ampio appartamento piano rialzato con ascensore in buono stato mq 104 composto da ingresso salone cucina abitabile 2 camere matrimoniali bagno cantina - ce F ipe 197,20 - euro 149.000 - rif. 006-5 Z
Dati principali
| Riferimento | IST 006/5 - 18 z |
| Data annuncio | 17/02/2025 |
| Contratto | Vendita |
| Tipologia | Appartamento |
| Superficie | 104 m2 |
| Locali | 1 bagno |
Costi
| Prezzo | 149.000 € |
| Prezzo al m2 | 1.433 €/m2 |
| Spese condominiali | € 160,00/mese |
Efficienza energetica
| Classe energetica | F |
Planimetrie
Indirizzo e mappa
Pianoro
Calcolo mutuo
Prezzo di vendita:
Anticipo
20,00
Mutuo
80,00
Tasso: -+
Rata: 426 al mese
I risultati sono una stima indicativa basata sui dati inseriti e non costituiscono un’offerta finanziaria.
Inserzionista
Chiama
CONTATTA


