Quadrilocale Via Fosse, Minerbio
€ 299.000Quadrilocale in vendita
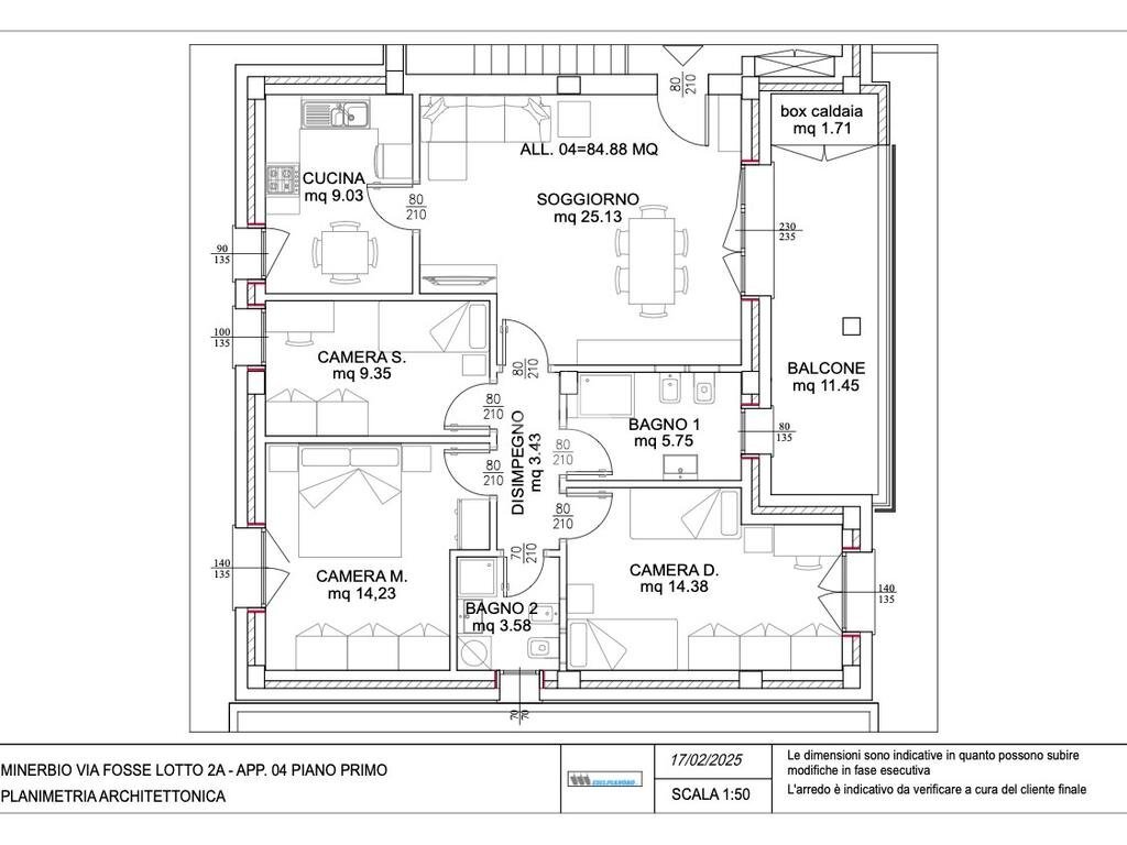
Nel comune di Minerbio, proponiamo in vendita un appartamento di nuova costruzione situato all'ultimo piano di una piccola palazzina. L'immobile, con una superficie di 118 mq, è progettato per offrire spazi funzionali e ben distribuiti, ideali per chi cerca comfort e modernità. La consegna è prevista per il 2026, permettendo di pianificare con calma il trasferimento nella vostra nuova casa. La costruzione rispetta i più alti standard di efficienza energetica, con una classe energetica A4, garantendo un notevole risparmio sui consumi e un impatto ambientale ridotto. L'appartamento si compone di quattro locali, offrendo ampie possibilità di personalizzazione degli spazi interni. La posizione in una piccola palazzina assicura tranquillità e privacy, rendendo questa soluzione abitativa particolarmente adatta a chi desidera vivere in un contesto sereno e ben collegato ai servizi del territorio.
Gestione delle permute e dei finanziamenti
Gestione delle permute e dei finanziamenti
Dati principali
| Riferimento | 61017640 |
| Data annuncio | 15/02/2025 |
| Contratto | Vendita |
| Tipologia | Appartamento |
| Superficie | 121 m2 |
| Locali | 4 (4 altro), 2 bagni |
| Piano | 1 di 2 totali |
Costi
| Prezzo | 299.000 € |
| Prezzo al m2 | 2.471 €/m2 |
Efficienza energetica
| Anno costruzione | 2026 |
| Riscaldamento | Autonomo |
| Classe energetica | A4 |
Planimetrie
Video
Indirizzo e mappa
Via Fosse, Minerbio
Calcolo mutuo
Prezzo di vendita:
Anticipo
20,00
Mutuo
80,00
Tasso: -+
Rata: 855 al mese
I risultati sono una stima indicativa basata sui dati inseriti e non costituiscono un’offerta finanziaria.
Inserzionista
Agenzia Tecnocasa La Fenice Srl
Via Garibaldi, 13/G, Minerbio
Mostra Telefono
Chiama
CONTATTA

