Locale Commerciale Via San Maurizio, Imperia
€ 116.250Locale commerciale, Via San Maurizio, Imperia (IM)
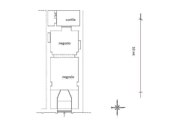
IMPERIA - VIA SAN MAURIZIO, IPI Agency propone in vendita locale commerciale a reddito. A poca distanza dalla Basilica Di San Maurizio in strada di passaggio, locale Cat. C/1 posizionato al piano terra di palazzina in ordine con una metratura lorda pari a 56 mq indicati in visura.
Il negozio è composto da ampio locale, cortile esterno e bagno. Vetrina su strada e in buone condizioni interne.
Ottimo immobile ad investimento. Euro 116.250
Grazie alla collaborazione con professionisti del settore, offriamo ai nostri clienti un servizio di consulenza dedicato per individuare le migliori soluzioni di mutuo e facilitare l'accesso al finanziamento.
IPI Genova Agency tel. 010 542009 www.ipi-agency.com Funzionario Luca Mazzarello
IPI è un gruppo specializzato nella consulenza e nei servizi immobiliari a investitori e operatori istituzionali, aziende e privati. Attraverso le diverse linee di business delle società controllate, IPI copre a 360 gradi i servizi al real-estate: gestione, valorizzazione, promozione e sviluppo immobiliare, consulenza, intermediazione, valutazioni, due diligence e analisi di mercato. IPI è anche una investment company con un rilevante patrimonio immobiliare proprio.
IPI Agency è presente sul territorio nazionale, con filiali a Torino, Milano, Genova, Firenze, Bologna, Padova, Roma, Bari e Napoli.
IPI Genova Agency
Via XII Ottobre 2-19° piano
16121 Genova
Tel. 010 542009
Mail: [email protected]
Il negozio è composto da ampio locale, cortile esterno e bagno. Vetrina su strada e in buone condizioni interne.
Ottimo immobile ad investimento. Euro 116.250
Grazie alla collaborazione con professionisti del settore, offriamo ai nostri clienti un servizio di consulenza dedicato per individuare le migliori soluzioni di mutuo e facilitare l'accesso al finanziamento.
IPI Genova Agency tel. 010 542009 www.ipi-agency.com Funzionario Luca Mazzarello
IPI è un gruppo specializzato nella consulenza e nei servizi immobiliari a investitori e operatori istituzionali, aziende e privati. Attraverso le diverse linee di business delle società controllate, IPI copre a 360 gradi i servizi al real-estate: gestione, valorizzazione, promozione e sviluppo immobiliare, consulenza, intermediazione, valutazioni, due diligence e analisi di mercato. IPI è anche una investment company con un rilevante patrimonio immobiliare proprio.
IPI Agency è presente sul territorio nazionale, con filiali a Torino, Milano, Genova, Firenze, Bologna, Padova, Roma, Bari e Napoli.
IPI Genova Agency
Via XII Ottobre 2-19° piano
16121 Genova
Tel. 010 542009
Mail: [email protected]
Dati principali
| Riferimento | GE-01250 |
| Data annuncio | 23/07/2024 |
| Contratto | Vendita |
| Tipologia | Locale Commerciale |
| Superficie | 56 m2 |
| Locali | 2 (2 altro), 1 bagno |
Costi
| Prezzo | 116.250 € |
| Prezzo al m2 | 2.076 €/m2 |
Efficienza energetica
| Classe energetica | G |
| Indice di prestazione energetica (IPE) | - |
Planimetrie
Indirizzo e mappa
Via San Maurizio, Imperia
Calcolo mutuo
Prezzo di vendita:
Anticipo
20,00
Mutuo
80,00
Tasso: -+
Rata: 332 al mese
I risultati sono una stima indicativa basata sui dati inseriti e non costituiscono un’offerta finanziaria.
Inserzionista

IPI Genova Agency
Via XII Ottobre 2/194a, Genova
Mostra Telefono
Chiama
CONTATTA

