Villa via Armanna, 3, Bogliasco
Trattativa riservataSPLENDIDA VILLA VISTA MARE CON PISCINA, BOX E TERRAZZO
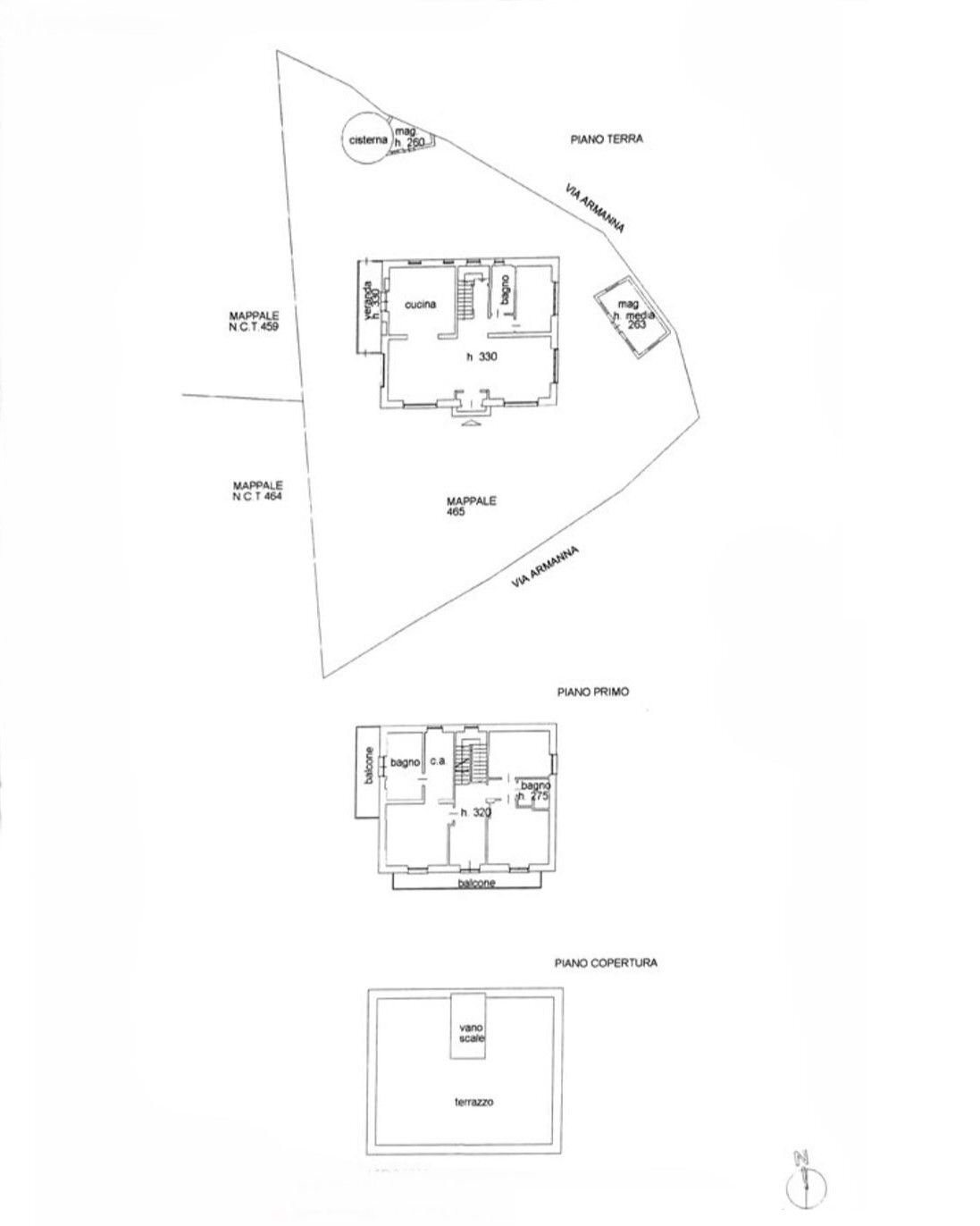
BOGLIASCO - VIA ARMANNA: In contesto privato a pochi passi dal mare e dai principali servizi della zona proponiamo 240 MQ indipendenti, ristrutturati, con grande giardino attrezzato con forno a legna in muratura, piscina riscaldata con idromassaggio, terrazza panoramica fronte mare, depandance vivibile, ampio box e posto auto in locazione. Internamente l'immobile è così composto, al piano terra: soggiorno triplo con accesso al bellissimo giardino, cucina a vista vivibile con veranda, camera da letto e bagno. Al primo piano: camera padronale con cabina armadi, bagno con vasca idromassaggio, balcone vista mare, studio, 2 camere da letto, ulteriore bagno con doccia. Splendido terrazzo a tetto con vista mozzafiato a 360° su tutto il golfo ligure. Completa la proprietà il Box auto con eventuale posto auto aggiuntivo in locazione. Unico in Zona! PER INFO E APPUNTAMENTI GENOVA REAL IMMOBILIARE VIA QUINTO 84R-VIA ALLA PORTA D'ARCHI 13R 010 80 64.
Dati principali
| Riferimento | ID2516291 |
| Data annuncio | 04/07/2024 |
| Contratto | Vendita |
| Tipologia | Villa |
| Superficie | 237 m2 |
| Locali | più di 5 (4 camere da letto, 5 altro), 3 bagni, cucina abitabile |
| Piano | 1 totali |
| Tipo di costruzione | Lusso |
| Numero di terrazzi | 1 |
| Numero di balconi | 1 |
| Box auto | Doppio |
| Numero posti auto | 1 |
| Arredamento | Parziale |
Caratteristiche
Costi
| Prezzo | Trattativa riservata |
Efficienza energetica
| Anno costruzione | 1950 |
| Stato | Ottimo |
| Riscaldamento | Autonomo |
| Classe energetica | B |
| Indice di prestazione energetica (IPE) | 175 kWh/m2 anno |
Planimetrie
Indirizzo e mappa
via Armanna, 3, Bogliasco
Inserzionista

Genova Real
via Quinto 84R, Genova
Mostra Telefono
Chiama
CONTATTA

