Capannone via Sempione, Nerviano
€ 1.700.000CAPANNONE DI 2400 MQ - CORTILE PRIVATO DI 6400 MQ
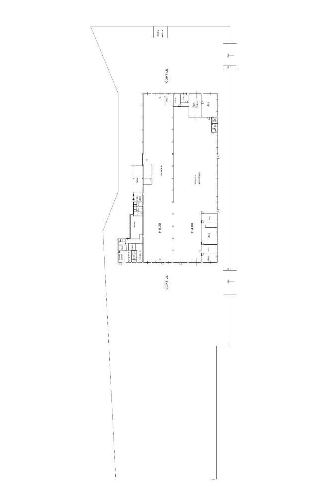
CAPANNONE DI 2400 MQ - CORTILE PRIVATO DI 6400 MQ - POSSIBILITA' DI AMPLIAMENTO - CABINA DI TRASFORMAZIONE) La proprietà si trova nella zona industriale di Nerviano (MI), a pochi passi dalla Strada Statale del Sempione e a pochi minuti di auto dagli accessi autostradali. La superficie totale è di circa 2400 mq comprensiva di locale uffici, servizi e spogliatoi (c.a. 100 mq). La zona produttiva/stoccaggio è di c.a. 2300 mq suddivisa in due campate, una con altezza utile sotto trave di 6,20 mt e una con altezza utile di 4,00 mt, già provvista di impianto elettrico, impianto di illuminazione, impianto di riscaldamento e antincendio. Le operazioni di carico/scarico sono favorite dai numerosi portoni d'accesso e dall'ampio cortile privato e recintato di c.a. 6400 mq. Completa la proprietà la cabina di trasformazione, ideale per aziende energivore. Residuo edificabile per poter realizzare ulteriori 2500 mq di capannone. SCOPRI ALTRE SOLUZIONI IMMOBILIARI SUL SITO WWW.CASAEINDUSTRIA.IT I nostri servizi: - Intermediazione immobiliare; - valutazioni per la locazione e la vendita di immobili; - stesura e registrazione contratti; - certificazioni energetiche; - finanziamenti su misura; - progettazione di edifici civili ed industriali; - calcoli strutture in cemento armato, legno e acciaio; - perizie, collaudi, asseverazioni statiche; - direzione lavori; - supervisione in cantiere nella fase di realizzazione; - assistenza alle imprese (tracciamenti planimetrici ed altimetrici, contabilità di cantiere); - computi metrici;
Dati principali
| Riferimento | ID2509099 |
| Data annuncio | 24/01/2025 |
| Contratto | Vendita |
| Tipologia | Capannone |
| Superficie | 3040 m2 |
| Piano | 1 totali |
| Uso immobile | Commerciale ed Industriale |
Costi
| Prezzo | 1.700.000 € |
| Prezzo al m2 | 559 €/m2 |
Efficienza energetica
| Riscaldamento | Autonomo |
| Classe energetica | G |
| Indice di prestazione energetica (IPE) | 65 kWh/m2 anno |
Planimetrie
Indirizzo e mappa
via Sempione, Nerviano
Calcolo mutuo
Prezzo di vendita:
Anticipo
20,00
Mutuo
80,00
Tasso: -+
Rata: 4.862 al mese
I risultati sono una stima indicativa basata sui dati inseriti e non costituiscono un’offerta finanziaria.
Inserzionista

Casa & Industria - Immobili Per L'Impresa
VIA COMO 3, Lainate
Mostra Telefono
Chiama
CONTATTA

