Rustico Str. di Cevola e Cavirano, Lesignano de' Bagni
€ 30.000Rustico in vendita
MULAZZANO - Località Cevola e Cavirano
A circa 5 Chilometri dal PAESE di Langhirano, In zona VERDE e TRANQUILLA, Rustico semi indipendente libero su tre lati da RISTRUTTURARE
La soluzione, è distribuita su due piani abitativi ed uno accessorio, ed è inserita all'interno di un contesto di BORGO, comoda alla frazione di Mulazzano Monte.
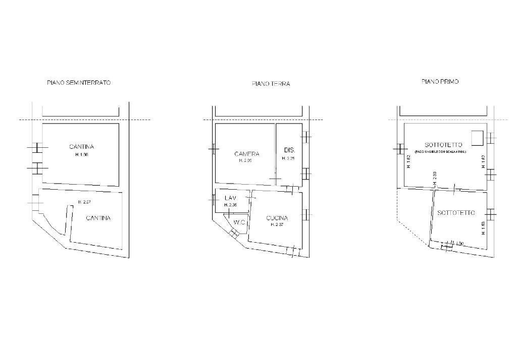
Al piano terra, la ZONA GIORNO con un Soggiorno con CAMINO, un cucinotto separato, una sala da pranzo e un servizio, dalla scala interna la ZONA NOTTE con due stanze da letto.
Al Piano semi interrato la ZONA Accessoria con due locali cantina
A completare la Proprietà un AUTORIMESSA, un POSTO AUTO PRIVATO e circa 230 mq di terreno BOSCHIVO
Per INFO e APPUNTAMENTI
Referente: Franco Gaetano 391-15.73.810
Si avvertono i Signori clienti che gli indirizzi inseriti all'interno dell'annuncio sono puramente indicativi e non rispecchiano la realtà.
Questa indicazione vuole essere un ausilio nell'indicazione della zona pur rispettando la Privacy dei venditori.
Ulteriori informazioni possono essere fornite presso il nostro ufficio telefonicamente.
Se è vostra intenzione VENDERE o AFFITTARE un immobile,
contattandoci allo 391/1573810 e
vi forniremo una VALUTAZIONE GRATUITA,
in modo tale da tener aggiornato il valore secondo i recenti sviluppi del mercato immobiliare.
Se invece CERCATE in ACQUISTO o in AFFITTO un immobile, senza alcun impegno,
vi forniremo maggiori indicazioni su ciò che è presente nel mercato, seguendovi costantemente nella vostra ricerca.
Se quello che state cercando in questo momento non è presente nelle nostre proposte, lasciate una richiesta nella nostra BANCA DATI presso l'ufficio TECNORETE più vicino, indicando tutte le esigenze e le caratteristiche che dovrà avere la vostra futura abitazione.
Sarete contattati dal nostro Consulente di Zona il quale cercherà il vostro immobile ideale.
Ogni agenzia ha un proprio titolare ed è autonoma.
Le presenti informazioni non costituiscono elemento contrattuale.
A circa 5 Chilometri dal PAESE di Langhirano, In zona VERDE e TRANQUILLA, Rustico semi indipendente libero su tre lati da RISTRUTTURARE
La soluzione, è distribuita su due piani abitativi ed uno accessorio, ed è inserita all'interno di un contesto di BORGO, comoda alla frazione di Mulazzano Monte.
Al piano terra, la ZONA GIORNO con un Soggiorno con CAMINO, un cucinotto separato, una sala da pranzo e un servizio, dalla scala interna la ZONA NOTTE con due stanze da letto.
Al Piano semi interrato la ZONA Accessoria con due locali cantina
A completare la Proprietà un AUTORIMESSA, un POSTO AUTO PRIVATO e circa 230 mq di terreno BOSCHIVO
Per INFO e APPUNTAMENTI
Referente: Franco Gaetano 391-15.73.810
Si avvertono i Signori clienti che gli indirizzi inseriti all'interno dell'annuncio sono puramente indicativi e non rispecchiano la realtà.
Questa indicazione vuole essere un ausilio nell'indicazione della zona pur rispettando la Privacy dei venditori.
Ulteriori informazioni possono essere fornite presso il nostro ufficio telefonicamente.
Se è vostra intenzione VENDERE o AFFITTARE un immobile,
contattandoci allo 391/1573810 e
vi forniremo una VALUTAZIONE GRATUITA,
in modo tale da tener aggiornato il valore secondo i recenti sviluppi del mercato immobiliare.
Se invece CERCATE in ACQUISTO o in AFFITTO un immobile, senza alcun impegno,
vi forniremo maggiori indicazioni su ciò che è presente nel mercato, seguendovi costantemente nella vostra ricerca.
Se quello che state cercando in questo momento non è presente nelle nostre proposte, lasciate una richiesta nella nostra BANCA DATI presso l'ufficio TECNORETE più vicino, indicando tutte le esigenze e le caratteristiche che dovrà avere la vostra futura abitazione.
Sarete contattati dal nostro Consulente di Zona il quale cercherà il vostro immobile ideale.
Ogni agenzia ha un proprio titolare ed è autonoma.
Le presenti informazioni non costituiscono elemento contrattuale.
Dati principali
| Riferimento | 61006070 |
| Data annuncio | 25/01/2025 |
| Contratto | Vendita |
| Tipologia | Rustico |
| Superficie | 90 m2 |
| Locali | 3 (3 altro), 1 bagno |
| Piano | 1 di 2 totali |
| Numero posti auto | 1 |
Costi
| Prezzo | 30.000 € |
| Prezzo al m2 | 333 €/m2 |
Efficienza energetica
| Anno costruzione | 1967 |
| Riscaldamento | Autonomo |
| Tipo Alimentazione Riscaldamento | Metano |
| Classe energetica | Immobile esente da certificazione energetica |
Planimetrie
Video
Indirizzo e mappa
Str. di Cevola e Cavirano, Lesignano de' Bagni
Calcolo mutuo
Prezzo di vendita:
Anticipo
20,00
Mutuo
80,00
Tasso: -+
Rata: 86 al mese
I risultati sono una stima indicativa basata sui dati inseriti e non costituiscono un’offerta finanziaria.
Inserzionista
Chiama
CONTATTA

