Casa indipendente via Castello, 4, Gattico-Veruno
€ 595.000
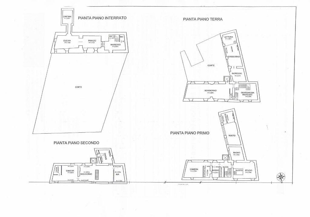
In Revislate, (Comune di Gattico - Veruno - prov. Novara), a 68 km da Milano, all'interno di un edificio del 1600 originariamente realizzato con funzioni di presidio fortificato, offriamo in vendita questa abitazione pregevolmente ristrutturata, disposta su 4 livelli internamente collegati da scale ed ascensore la cui composizione è brevemente di seguito descritta: al primo piano fuori terra - versante nord - è ubicata la grande cucina con volte in mattone pieno a vista, la cantina, un ripostiglio ed un bagno; al 2° livello dalle cui aree esterne si accede con l'ingresso principale all'immobile è posta la zona giorno suddivisa in due corpi di fabbrica distintamente orientati, di cui uno soppalcato, dotati di ampie finestre prospicienti l'area cortilizia; quest'ultima include l'accesso carraio ai 2 posti auto coperti; al 3° livello sono state realizzate 2 camere da letto con distinte stanze da bagno; al 4° livello è stata creata una mansarda con soffitti di notevole altezza ed area completamente abitabile, con travatura a vista, composta dal soggiorno/studio, una camera da letto ed una stanza da bagno. Il riscaldamento e raffrescamento è suddiviso in zone distinte. Nel prezzo di vendita è inclusa buona parte degli arredi visibili nelle fotografie. L'accesso al fabbricato è possibile anche dal lato nord recintato con possibilità di stazionamento di 4 veicoli (vedi fotografie con roseto). Visite da concordare previo appuntamento nei fine settimana.
Dati principali
| Riferimento | ID2502264 |
| Data annuncio | 19/01/2025 |
| Contratto | Vendita |
| Tipologia | Casa indipendente |
| Superficie | 614 m2 |
| Locali | 5 (3 camere da letto, 2 altro), 4 bagni, cucina abitabile |
| Piano | 4 totali |
| Tipo di costruzione | Signorile |
| Box auto | Assente |
| Numero posti auto | 2 |
| Arredamento | Parziale |
Caratteristiche
Costi
| Prezzo | 595.000 € |
| Prezzo al m2 | 969 €/m2 |
Efficienza energetica
| Anno costruzione | 1600 |
| Stato | Ottimo |
| Riscaldamento | Autonomo |
| Classe energetica | F |
| Indice di prestazione energetica (IPE) | 230.19 kWh/m2 anno |
Planimetrie
Indirizzo e mappa
via Castello, 4, Gattico-Veruno
Calcolo mutuo
Prezzo di vendita:
Anticipo
20,00
Mutuo
80,00
Tasso: -+
Rata: 1.702 al mese
I risultati sono una stima indicativa basata sui dati inseriti e non costituiscono un’offerta finanziaria.
Inserzionista

Italservizi srl
Via Sottocorno 5/A, Milano
Mostra Telefono
Chiama
CONTATTA

