Bilocale via della Resistenza 7, Buccinasco
€ 258.000NUOVA COSTRUZIONE RESIDENZA FLORA- NESSUNA COMMISSIONE AGENZIA
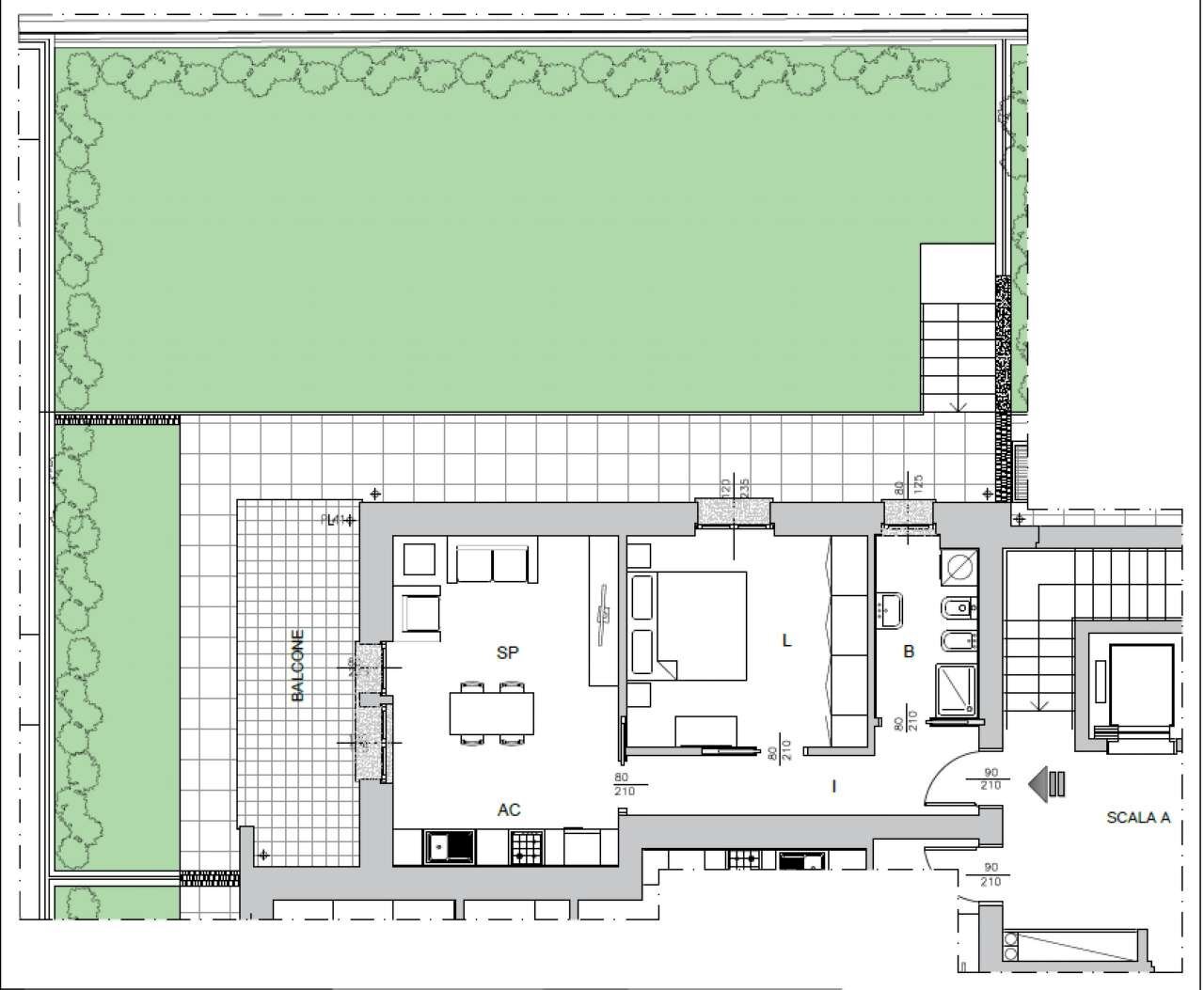
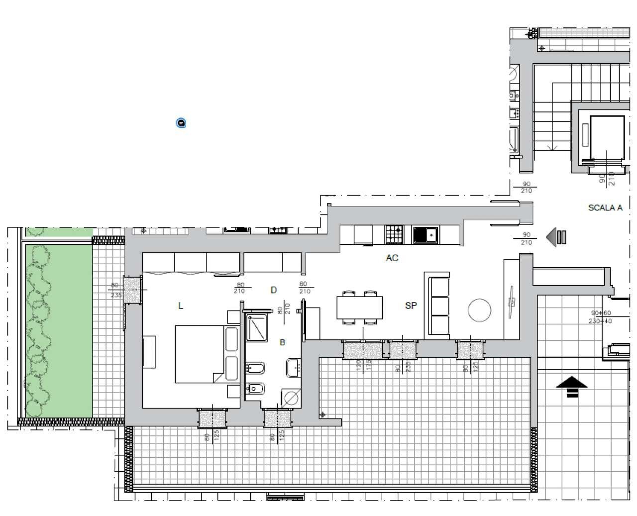
NUOVA COSTRUZIONE RESIDENZA FLORA- Via della Resistenza 7 Buccinasco*** NESSUNA PROVVIGIONE RICHIESTA DALL’AGENZIA*** A pochi passi da Milano, vicino ai centri commerciali di Buccinasco, Assago, Rozzano, negozi di prima necessità, scuole e mezzi di trasporto, proponiamo in vendita soluzioni abitative di due locali, tre locali e quattro locali. Gli appartamenti saranno realizzati su quattro piani fuori terra e un piano interrato con cantine e box. La costruzione sarà in classe energetica A4 a basso consumo e basso impatto ambientale, sfruttando le nuove tecnologie ed innovazioni, inoltre sarà con finiture di pregio con capitolato di alta qualità. Le finiture degli alloggi saranno con: - portoncini blindati di sicurezza con isolamento termico e Acustico- serramenti esterni in legno lamellare laccati bianchi dotati di 4 vetri a bassa emissività, nella zona cucina e nei bagni i serramenti saranno provvisti di un ulteriore apertura roto- vasistas. - Tapparelle con avvolgimento elettrico- Porte interne tamburate bianche- Pavimenti balconi in gres antigelo- Apparecchi sanitari sospesi della ditta Duravit serie D- CODE- Rubinetteria Ideal- Standard serie Ceraplan- Impianto di VMC (Ventilazione Meccanica Controllata) a controllo dell’umidità casalinga- Riscaldamento e acqua calda sanitaria centralizzata a gestione autonoma con contabilizzatori individuale- Riscaldamento a pannelli a pavimento e scalda salviette di arredo nei bagni - Impianto di riscaldamento sarà dotato di un Crono-termostato ed un termostato per ogni ambiente- Comandi elettrici Bticino Serie Living Light - Videocitofono - Antenna Tv centralizzata - Predisposizione per piano cottura ad induzione - Predisposizione antifurto perimetrale- Predisposizione condizionatore autonomo- Predisposizione impianto telefonico e fibre ottiche- Isolamenti termici acustici di ultima generazione - Facciata a cappotto- Pannelli fotovoltaici che producono energia elettrica a favore dell’intero condominio - Ascensore con dispositivo di ritorno al piano in caso di mancanza di corrente- Cancello carraio motorizzatoPrezzo di acquisto a partire da € 258.000,00Possibilità di mutuo fondiario! Consegna prevista per Dicembre 2026.Per qualsiasi ulteriore informazione passate a trovarci in agenzia, via Emilia 5b Buccinasco o chiamateci al n. 02.45713877 - 347.1235303*Quanto riportato è puramente indicativo e non costituisce elemento contrattuale.
Dati principali
| Riferimento | BU 799 |
| Data annuncio | 08/01/2025 |
| Contratto | Vendita |
| Tipologia | Appartamento |
| Superficie | 77 m2 |
| Locali | 2 (1 camera da letto, 1 altro), 1 bagno |
| Piano | 4 totali |
Costi
| Prezzo | 258.000 € |
| Prezzo al m2 | 3.351 €/m2 |
| Spese condominiali | € 1,00/mese |
Efficienza energetica
| Anno costruzione | 2026 |
| Riscaldamento | Centralizzato |
| Classe energetica | A4 |
Indirizzo e mappa
via della Resistenza 7, Buccinasco
Calcolo mutuo
Prezzo di vendita:
Anticipo
20,00
Mutuo
80,00
Tasso: -+
Rata: 738 al mese
I risultati sono una stima indicativa basata sui dati inseriti e non costituiscono un’offerta finanziaria.
Inserzionista

Lineacasa Buccinasco
via Emilia 5/b, Buccinasco
Mostra Telefono
Mostra Cellulare
Chiama
CONTATTA

