
Per vedere altre immagini,
prova a chiederle all'inserzionista
prova a chiederle all'inserzionista
Porzione di casa Castelfranco Emilia
€ 395.000PORZIONE DI BIFAMILIARE DI PREGIO IN CLASSE “A4” – RIF. V156 – BIF.10A
CANCELLO ELETTRICO
FIBRA OTTICA
GARAGE
GIARDINO
INFISSI IN PVC O ALLUMINIO
NESSUNA SPESA CONDOMINIALE
PORTA BLINDATA
POSTO AUTO
PREDISPOSIZIONE ARIA CONDIZIONATA
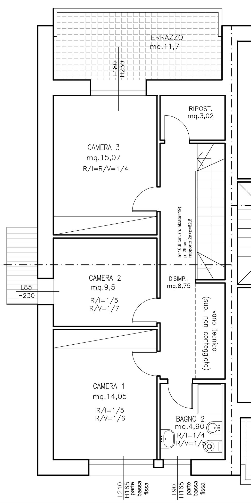
RIPOSTIGLIO
RISCALDAMENTO AUTONOMO
TERRAZZO
VIDEOCITOFONO
Dati principali
| Riferimento | V156 - BIF.10A |
| Data annuncio | 04/01/2025 |
| Contratto | Vendita |
| Tipologia | Porzione di casa |
| Superficie | 1396 m2 |
| Locali | 3 (3 camere da letto), 2 bagni |
Costi
| Prezzo | 395.000 € |
| Prezzo al m2 | 283 €/m2 |
Efficienza energetica
| Anno costruzione | 2024 |
| Classe energetica | Immobile esente da certificazione energetica |
Indirizzo e mappa
Castelfranco Emilia
Calcolo mutuo
Prezzo di vendita:
Anticipo
20,00
Mutuo
80,00
Tasso: -+
Rata: 1.130 al mese
I risultati sono una stima indicativa basata sui dati inseriti e non costituiscono un’offerta finanziaria.
Inserzionista
Progetto Casa
Corso Martiri 174, Castelfranco Emilia
Mostra Telefono
Chiama
CONTATTA