Casa indipendente Via selo, Forlì
€ 490.000Casa indipendente in vendita
La casa indipendente bifamiliare situata nel quartiere Foro Boario rappresenta un'opportunità unica per chi cerca comfort e praticità in una delle zone più ambite della città
Questa straordinaria proprietà, libera sui quattro lati, offre due ampie abitazioni su due livelli distinti.
Al piano terra si trova un accogliente appartamento con due camere da letto e un garage spazioso in grado di ospitare due auto di grandi dimensioni.
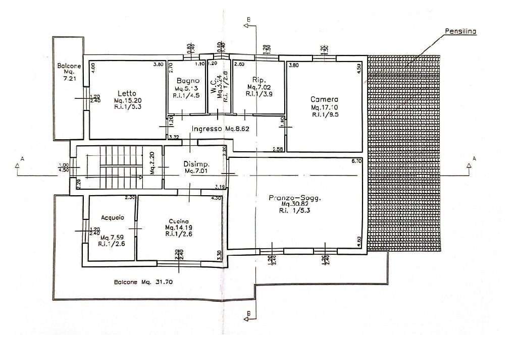
Al primo piano, l'appartamento padronale si distingue per la sua eleganza, con un grande salone dotato di camino, tre camere da letto, due bagni e una cucina con tinello che si affaccia sul balcone.
Costruito negli anni '80, l'immobile è stato realizzato con materiali di alta qualità come marmi e graniti, e si presenta in condizioni eccellenti grazie alla costante manutenzione.
Completa la proprietà un ampio cortile privato, ideale per momenti di relax all'aria aperta, e un magazzino in legno che funge da deposito o officina.
Questa proposta è perfetta per chi desidera vivere in una casa indipendente con tutti i comfort e la possibilità di ospitare due nuclei familiari.
- INDIPENDENTE
- BIFAMILARE
- CORTE ESCLUSIVA
- RIFINITURE DI PREGIO
- GARAGE + SERVIZI
Contattaci per fissare il tuo appuntamento con IVANO al num. whatsapp 3464358677 oppure allo 0543.798269 in alternativa scrivici una mail su foca4 e sarai prontamente ricontattato
DEVI ANCHE VENDERE IL TUO IMMOBILE ?
OFFRIAMO A TUTTI I NOSTRI CLIENTI:
- VALUTAZIONI GRATUITE
- CONSULENZE MUTUO GRATUITE
- ASSISTENZA FINO AL ROGITO
- CONSULENZA TECNICA
IL PRESENTE ANNUNCIO NON COSTITUISCE ELEMENTO CONTRATTUALE .
Questa straordinaria proprietà, libera sui quattro lati, offre due ampie abitazioni su due livelli distinti.
Al piano terra si trova un accogliente appartamento con due camere da letto e un garage spazioso in grado di ospitare due auto di grandi dimensioni.
Al primo piano, l'appartamento padronale si distingue per la sua eleganza, con un grande salone dotato di camino, tre camere da letto, due bagni e una cucina con tinello che si affaccia sul balcone.
Costruito negli anni '80, l'immobile è stato realizzato con materiali di alta qualità come marmi e graniti, e si presenta in condizioni eccellenti grazie alla costante manutenzione.
Completa la proprietà un ampio cortile privato, ideale per momenti di relax all'aria aperta, e un magazzino in legno che funge da deposito o officina.
Questa proposta è perfetta per chi desidera vivere in una casa indipendente con tutti i comfort e la possibilità di ospitare due nuclei familiari.
- INDIPENDENTE
- BIFAMILARE
- CORTE ESCLUSIVA
- RIFINITURE DI PREGIO
- GARAGE + SERVIZI
Contattaci per fissare il tuo appuntamento con IVANO al num. whatsapp 3464358677 oppure allo 0543.798269 in alternativa scrivici una mail su foca4 e sarai prontamente ricontattato
DEVI ANCHE VENDERE IL TUO IMMOBILE ?
OFFRIAMO A TUTTI I NOSTRI CLIENTI:
- VALUTAZIONI GRATUITE
- CONSULENZE MUTUO GRATUITE
- ASSISTENZA FINO AL ROGITO
- CONSULENZA TECNICA
IL PRESENTE ANNUNCIO NON COSTITUISCE ELEMENTO CONTRATTUALE .
Dati principali
| Riferimento | 60986527 |
| Data annuncio | 29/11/2024 |
| Contratto | Vendita |
| Tipologia | Casa indipendente |
| Superficie | 346 m2 |
| Locali | più di 5 (5 camere da letto, 2 altro), 3 bagni |
| Piano | 1 di 3 totali |
| Numero posti auto | 2 |
Costi
| Prezzo | 490.000 € |
| Prezzo al m2 | 1.416 €/m2 |
Efficienza energetica
| Anno costruzione | 1973 |
| Riscaldamento | Autonomo |
| Tipo Alimentazione Riscaldamento | Metano |
| Classe energetica | F |
| Indice di prestazione energetica (IPE) | - |
Planimetrie
Video
Indirizzo e mappa
Via selo, Forlì
Calcolo mutuo
Prezzo di vendita:
Anticipo
20,00
Mutuo
80,00
Tasso: -+
Rata: 1.401 al mese
I risultati sono una stima indicativa basata sui dati inseriti e non costituiscono un’offerta finanziaria.
Inserzionista
Chiama
CONTATTA

