Casa indipendente via Oro, 15, frazione Indiprete, Castelpetroso
€ 19.500Casa semindipendente a Castelpetroso
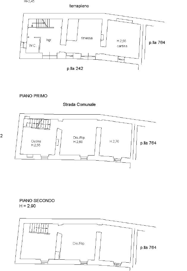
Questa casa semi-indipendente, con una superficie di 201 mq, si trova nel pittoresco borgo di Castelpetroso, un affascinante paese del Molise, celebre per la Basilica della Madonna Addolorata, meta di numerosi pellegrini. La proprietà è situata lungo la via che conduce al cuore del paese, con una posizione strategica che consente di godere di una vista panoramica mozzafiato sulla campagna circostante. La casa si sviluppa su tre livelli, con spazi ampi e ben organizzati, ideale per una famiglia o come investimento turistico. Al piano terra troviamo un ingresso spazioso che conduce a una cantina, perfetta per la conservazione di vini e prodotti locali. Inoltre, è presente una rimessa, utile per il parcheggio di motoveicoli o come deposito, e un bagno di servizio, comodo per gli ospiti o per le esigenze quotidiane. Salendo al primo livello, l'ambiente è luminoso e accogliente, con una cucina abitabile che si affaccia su una sala da pranzo. Il soggiorno è ideale per momenti di convivialità e relax. Il secondo livello ospita tre camere da letto, tutte ampie e dotate di finestre che permettono di godere della luce naturale e di una vista aperta sulla campagna circostante. Le stanze, accoglienti e funzionali, offrono comfort e tranquillità, ideali per il riposo dopo una giornata trascorsa esplorando la zona. La casa è assolata per gran parte della giornata grazie alla sua posizione panoramica, che la rende particolarmente gradevole durante i mesi più caldi. La vista sulla valle circostante è un valore aggiunto che rende questa proprietà ancora più suggestiva.
Dati principali
| Riferimento | Casa Indiprete |
| Data annuncio | 18/11/2024 |
| Contratto | Vendita |
| Tipologia | Casa indipendente |
| Superficie | 201 m2 |
| Locali | più di 5 (3 camere da letto, 6 altro), 1 bagno, cucina abitabile |
| Piano | 1 (Su più livelli) di 3 totali |
| Tipo di costruzione | Civile |
| Occupato | Libero |
| Box auto | Assente |
| Arredamento | Assente |
| Lati liberi | Tre |
Caratteristiche
Costi
| Prezzo | 19.500 € |
| Prezzo al m2 | 97 €/m2 |
Efficienza energetica
| Anno costruzione | 1800 |
| Stato | Da ristrutturare |
| Riscaldamento | Assente |
| Infissi esterni | Vetro / Legno |
| Classe energetica | In fase di calcolo |
Planimetrie
Indirizzo e mappa
via Oro, 15, Castelpetroso - località Indiprete
Calcolo mutuo
Prezzo di vendita:
Anticipo
20,00
Mutuo
80,00
Tasso: -+
Rata: 56 al mese
I risultati sono una stima indicativa basata sui dati inseriti e non costituiscono un’offerta finanziaria.
Inserzionista

Immobiliare Stefanelli
Via D. Alighieri 13, Isernia
Mostra Cellulare
Stefanelli Vincenzo
Mostra Telefono
Chiama
CONTATTA

