Villa via Luigi Galvani, 26, Mornago
€ 595.000Esclusiva Villa Indipendente su Piano Unico
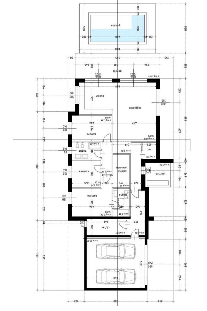
Situata in una posizione dominante e privilegiata nell'abitato di Vinago, proponiamo una splendida villa di nuova concezione, sviluppata interamente su un unico livello abitativo. Questa proprietà rappresenta la sintesi perfetta tra architettura moderna, efficienza energetica e massima vivibilità. Personalizzazione e Consegna La villa è attualmente in fase di costruzione, con consegna prevista per Febbraio/Marzo 2027. Questo stato di avanzamento offre un vantaggio esclusivo: la possibilità di personalizzare la distribuzione degli spazi interni e scegliere le finiture per cucire la casa esattamente sulle tue esigenze e sui tuoi gusti. Gli Ambienti: Eleganza e Funzionalità Il progetto prevede una zona living di ampio respiro e grande luminosità, con cucina a vista perfetta per la convivialità. La zona notte, pensata per il massimo comfort, ospita tre spaziose camere da letto e tre bagni moderni. Completano la proprietà un funzionale locale lavanderia e un ampio box doppio al piano terra. Vivere l’Esterno La villa è abbracciata da un giardino privato, dove i porticati coperti diventano un’estensione naturale della zona giorno, ideali per il relax all'aperto. La cura dei dettagli prosegue nelle aree esterne, con camminamenti realizzati in eleganti autobloccanti posati a secco. Tecnologia al Servizio del Risparmio L’abitazione è progettata per il massimo risparmio energetico: Classe Energetica minima garantita A1 (93,45 kWh/m² anno). Impianto con pompa di calore e pannelli radianti a pavimento. Eccellente isolamento termico e perfetta esposizione solare. Totale accessibilità: assenza di barriere architettoniche per un comfort senza limiti. Nota sulle immagini: Le foto pubblicate sono puramente indicative e si riferiscono a ville simili già realizzate nel medesimo complesso residenziale, a testimonianza dell'alto livello delle finiture e della qualità costruttiva.
Dati principali
| Riferimento | 466 |
| Data annuncio | 16/11/2024 |
| Contratto | Vendita |
| Tipologia | Villa |
| Superficie | 228 m2 |
| Locali | 4 (3 camere da letto, 1 altro), 3 bagni, cucina a vista |
| Piano | 1 totali |
| Tipo di costruzione | Signorile |
| Box auto | Doppio |
| Numero posti auto | 1 |
| Arredamento | Assente |
Caratteristiche
Costi
| Prezzo | 595.000 € |
| Prezzo al m2 | 2.610 €/m2 |
Efficienza energetica
| Anno costruzione | 2027 |
| Stato | Nuovo |
| Riscaldamento | Autonomo |
| Classe energetica | A1 |
Planimetrie
Indirizzo e mappa
via Luigi Galvani, 26, Mornago
Calcolo mutuo
Prezzo di vendita:
Anticipo
20,00
Mutuo
80,00
Tasso: -+
Rata: 1.702 al mese
I risultati sono una stima indicativa basata sui dati inseriti e non costituiscono un’offerta finanziaria.
Inserzionista
Chiama
CONTATTA


